Sun-filled balcony with harbour and sea views, ideal coastal retreat.
Prominent Fore Street location, short walk to harbour and amenities
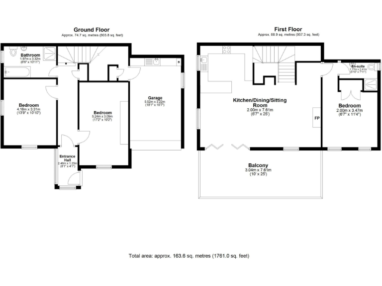
Placed prominently on Fore Street in historic Port Isaac, this substantial mid-19th-century home makes the most of its coastal position. Reverse-style living places a bright, vaulted open-plan kitchen/dining/sitting room on the first floor, where bi-fold doors open onto a generous sunny balcony with clear views across the village, harbour wall and out to sea. The room centres on a modern log burner, creating an attractive social heart for family life or holiday use.
The house offers three double bedrooms (one en-suite), a family bathroom and useful internal access to a large garage plus a private driveway for a single car. Practical features include a wood store, a small lawned front garden and patio. The property has propane (bottled) central heating and mains services throughout.
Buyers should note material practicalities alongside the location benefits: the plot is small, outdoor space is limited, and broadband speeds are slow. The property dates from circa 1850 and, while well presented, will show some age-related maintenance needs; image notes also indicate an aging exterior and a proximity to cliffs with potential for damp in parts. These are important considerations for long-term residential use or letting.
This home suits buyers seeking a characterful coastal house within easy walking distance of Port Isaac’s shops, eateries and harbour — ideal as a private coastal retreat, second home or rental in a sought-after holiday location. Viewing will best show how the layout, balcony views and garage space combine to offer a flexible seaside home with renovation potential.
3 bedroom terraced house for sale in 87 Fore Street, PL29 — £425,000 • 3 bed • 1 bath • 982 ft²
4 bedroom semi-detached house for sale in Edgehill, PL29 — £675,000 • 4 bed • 2 bath • 1197 ft²
3 bedroom detached house for sale in Middle Street, Port Isaac, PL29 3RH, PL29 — £575,000 • 3 bed • 1 bath • 967 ft²
3 bedroom house for sale in New Road, Port Isaac, PL29 — £350,000 • 3 bed • 2 bath • 1300 ft²
3 bedroom cottage for sale in Cor Anglais, PL29 — £465,000 • 3 bed • 1 bath • 615 ft²
3 bedroom terraced house for sale in Varley View, Port Isaac, PL29 — £375,000 • 3 bed • 2 bath • 868 ft²














































































