Value renovation opportunity with rental upside close to town amenities.
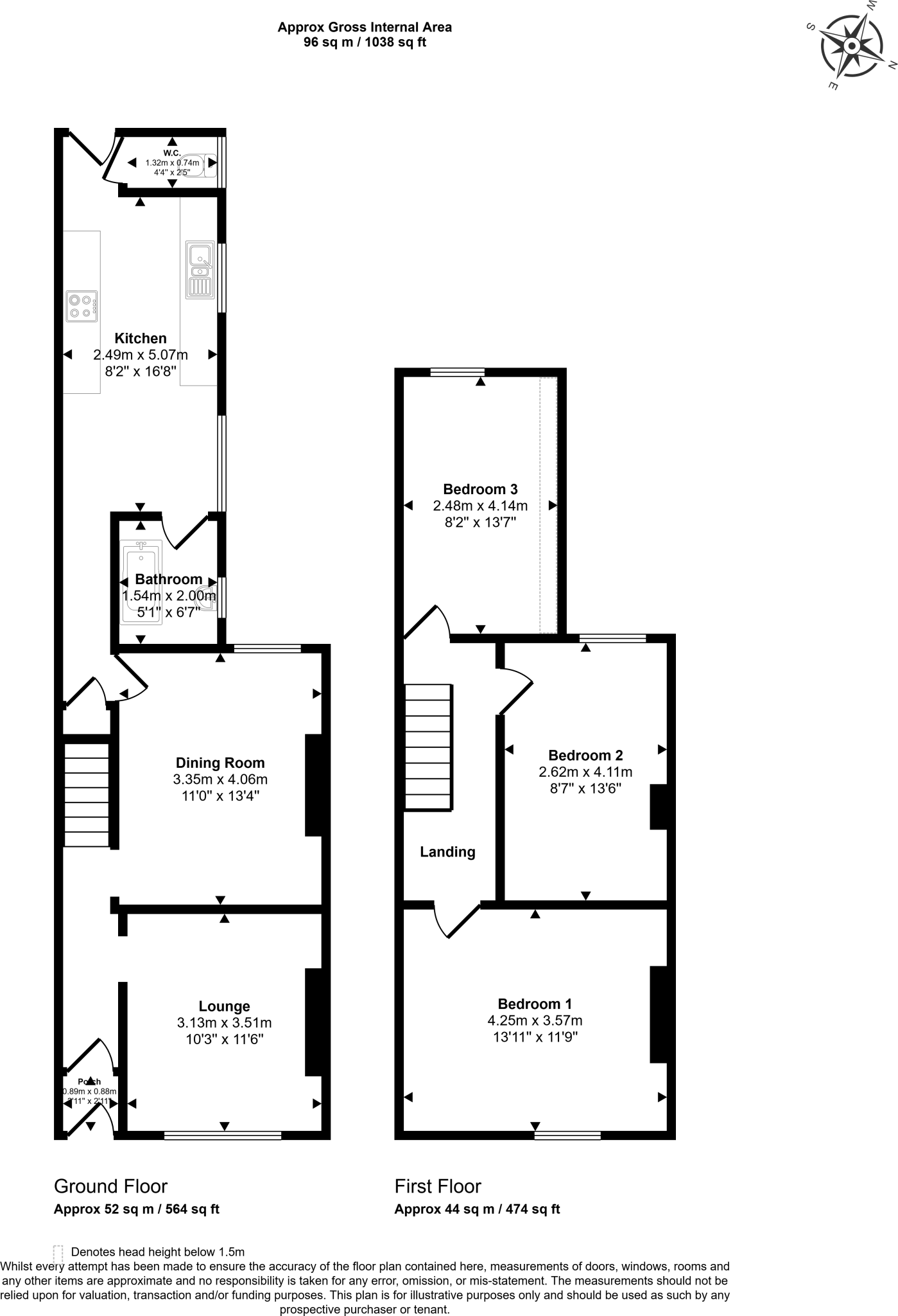
- Freehold Victorian end-terrace with three bedrooms
- Two reception rooms and enclosed small rear garden
- Sold at auction; administration fee £3,600 on exchange
- Requires renovation; buyers should budget for remedial works
- Potential let at c. £700pcm; HMO conversion possible STP
- Area: very deprived with high local crime — lettings risk
- Mains gas boiler and radiators; double glazing present
- Council Tax Band A; very low guide price
An end-terraced Victorian house offered at auction with clear short-term rental potential once renovated. The property is freehold, double-glazed and has mains gas heating; layout includes two reception rooms, three bedrooms and an enclosed rear garden. At the guide price this presents a value-led purchase for investors or a hands-on buyer comfortable with refurbishment.
The house needs renovation — cosmetic and likely some services checks — but has well-proportioned rooms and scope to let at around £700pcm once works are complete. There is further potential, subject to planning and licence, for conversion to multiple-let accommodation which the seller estimates could increase gross income substantially.
Important practical points: the property will be sold at auction, vacant on completion, and there is an administration fee of £3,600 payable on exchange. The area is very deprived with high local crime rates, so buyers should factor location-related management and lettings risks into valuations.
Positive liveability factors include nearby town-centre amenities, good local primary and secondary schools, fast broadband and very low flood risk. Prospective purchasers should review the legal pack, arrange their own surveys, and allow budget for refurbishment and any required statutory checks before bidding.
3 bedroom terraced house for sale in 244 Heneage Road, Grimsby DN32 9NR, DN32 — £15,000 • 3 bed • 1 bath • 978 ft²
3 bedroom terraced house for sale in 237 Heneage Road, Grimsby DN32 9JE, DN32 — £10,000 • 3 bed • 1 bath • 1024 ft²
2 bedroom end of terrace house for sale in 84 Welholme Road, Grimsby, Lincolnshire DN32 0NF, DN32 — £19,000 • 2 bed • 1 bath • 937 ft²
3 bedroom terraced house for sale in 104 Park Street, Grimsby DN32 7NT, DN32 — £20,000 • 3 bed • 1 bath • 1201 ft²
3 bedroom terraced house for sale in 104 Lord Street, Grimsby DN31 2NG, DN31 — £15,000 • 3 bed • 1 bath • 958 ft²
3 bedroom terraced house for sale in 221 Durban Road, Grimsby, Lincolnshire DN32 8AU, DN32 — £25,000 • 3 bed • 1 bath • 1098 ft²


















































































