Low-entry investment near town centre with strong rental potential.
Guide price £15,000, auction sale opening 17 Nov 2025
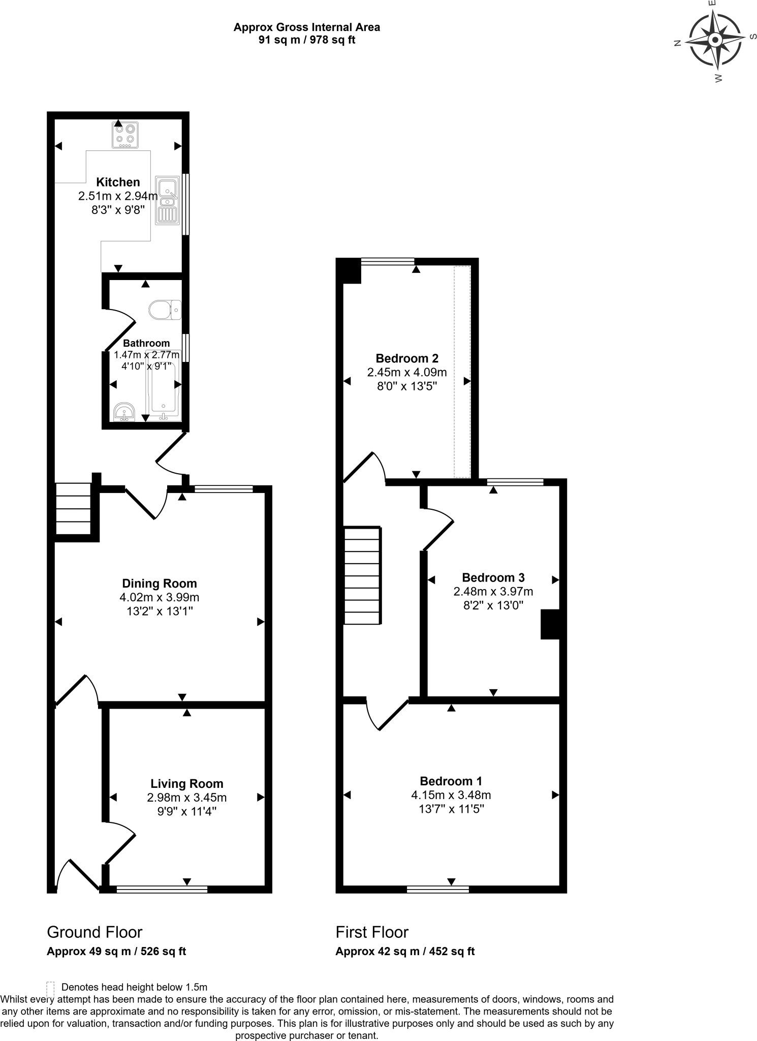
An affordable three-bedroom mid-terrace offered for auction as a renovation project. With a guide price of £15,000 and vacant possession, this freehold house sits close to Grimsby town centre and local amenities, making it a straightforward rebuild or rental opportunity for an investor or developer.
Accommodation includes two reception rooms, ground-floor bathroom, and a compact kitchen; the property benefits from uPVC double glazing, mains gas boiler heating and an enclosed rear garden. Constructed circa early 20th century with solid brick walls, the house totals about 978 sq ft and is Council Tax Band A.
The property requires a full programme of modernisation: visible mould and damp in the kitchen, dated fixtures, and assumed lack of wall insulation. EPC rating D. Potential is clear for a straightforward let once refurbished (guide rent estimated at £700pcm) or for conversion to an HMO subject to permissions, with higher possible returns if upgraded.
Important sale details: the property will be sold at an online unconditional auction opening 17 November 2025; an administration fee of £3,600 inc. VAT is payable on exchange. Buyers should consult the legal pack and carry out their own surveys and statutory checks before bidding.
3 bedroom terraced house for sale in 228 Heneage Road, Grimsby DN32 9NR, DN32 — £15,000 • 3 bed • 1 bath • 1038 ft²
3 bedroom terraced house for sale in 237 Heneage Road, Grimsby DN32 9JE, DN32 — £10,000 • 3 bed • 1 bath • 1024 ft²
3 bedroom terraced house for sale in 104 Lord Street, Grimsby DN31 2NG, DN31 — £15,000 • 3 bed • 1 bath • 958 ft²
3 bedroom terraced house for sale in 54 Hare Street, Grimsby DN32 9LA, DN32 — £20,000 • 3 bed • 1 bath • 988 ft²
2 bedroom end of terrace house for sale in 84 Welholme Road, Grimsby, Lincolnshire DN32 0NF, DN32 — £19,000 • 2 bed • 1 bath • 937 ft²
3 bedroom terraced house for sale in 40 Westerdale Way, Grimsby, Lincolnshire DN37 9BY, DN37 — £50,000 • 3 bed • 1 bath






























































































