Spacious five-bedroom home with character, garden and strong commuter links.
Grade II listed barn conversion — restrictions on alterations
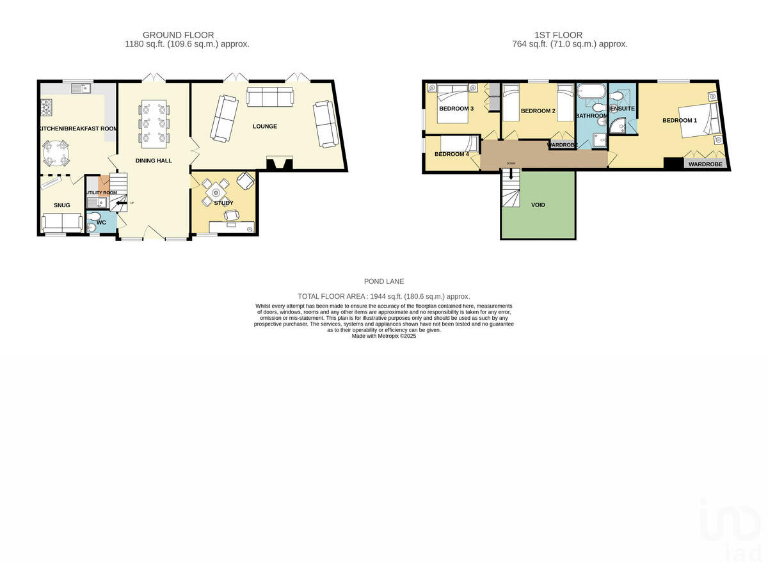
This Grade II listed barn conversion combines historic character with generous, family-sized accommodation across about 1,900 sq ft. A dramatic galleried entrance and exposed beams set a striking tone, while a 25ft lounge with brick fireplace, separate dining and study spaces, and a practical kitchen/breakfast room create a flexible layout for everyday family life and entertaining. The private, landscaped rear garden and large deck provide a peaceful outside retreat.
Practical details suit commuter lifestyles: excellent mobile signal, fast broadband, garage plus driveway parking and easy access to Stansted station and the airport. The home provides five bedrooms but only two bathrooms, which is worth noting for larger families or guests. Annual running costs include a £400 service charge for communal maintenance and a small £50 ground rent relating to the garage lease.
Buyers should be aware this property’s listed status means alterations will be restricted and could complicate extensions or modernisation. The barn’s period features—high ceilings, large windows and exposed beams—are a major appeal but also mean maintenance and specialist repairs may be needed. Overall, it’s a characterful, well-located family home offering both immediate comfort and potential for sympathetic updating where allowed.
4 bedroom barn conversion for sale in Parsonage Barns, Forest Hall Road, CM24 — £850,000 • 4 bed • 3 bath • 2216 ft²
4 bedroom detached house for sale in Braxted Road, Kelvedon, CO5 — £999,995 • 4 bed • 2 bath • 4467 ft²
4 bedroom barn conversion for sale in Barns Court, Harlow, CM19 — £750,000 • 4 bed • 4 bath • 2328 ft²
5 bedroom detached house for sale in St. Marys Mews, Broxted, CM6 — £1,000,000 • 5 bed • 4 bath • 4000 ft²
4 bedroom link detached house for sale in Bakers Farm Lane, Blackmore End, CM7 — £800,000 • 4 bed • 3 bath • 3000 ft²
3 bedroom detached house for sale in Hassobury, Farnham, Bishop's Stortford, Essex, CM23 — £800,000 • 3 bed • 2 bath • 2000 ft²






































































































































































































































































































