**Standout Features:**
- Vacant land suitable for development
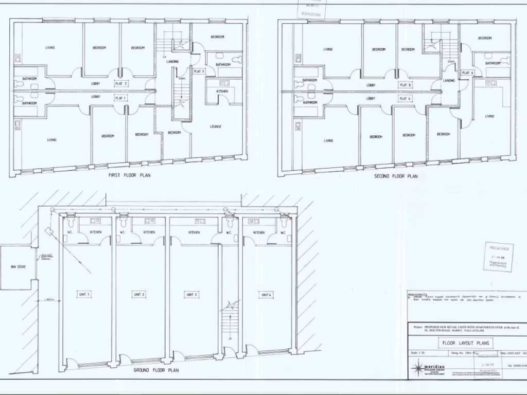
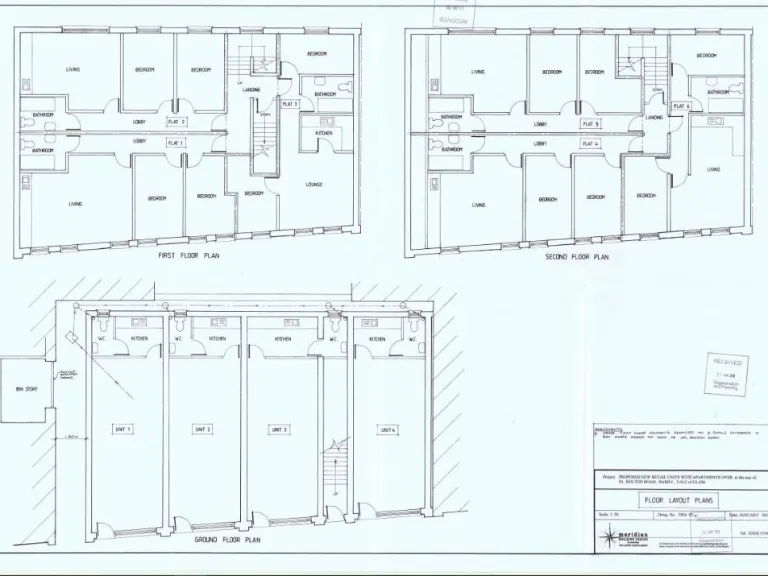
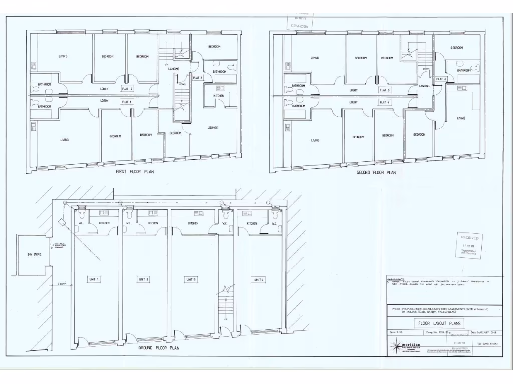
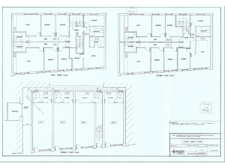
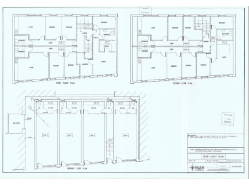
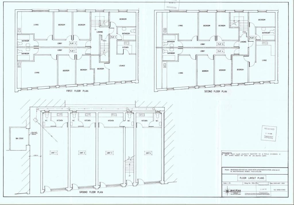
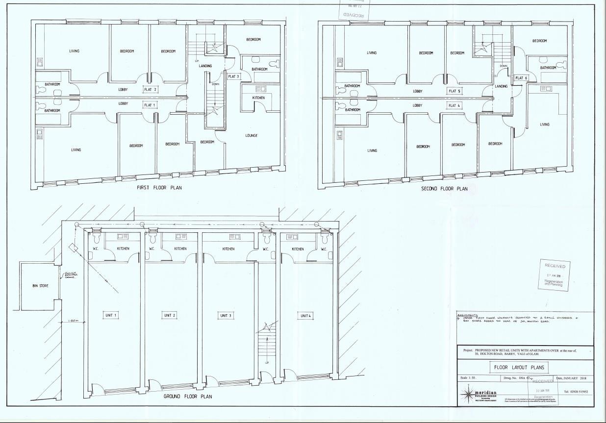
- Previous planning approval for 6 apartments and 4 retail units
- Large plot size in an urban setting
- Excellent accessibility and visibility for commercial potential
- Freehold tenure
**Notable Concerns:**
- Area with very high crime rates
- Local classification indicates considerable deprivation
Explore a prime investment opportunity with this vacant land located at the rear of 50 Holton Road in Barry. Boasting previous planning consent for the construction of six modern apartments and four retail units, this large plot offers tremendous potential for redevelopment in a vibrant urban locale.
Though the area is classified as very deprived with high crime rates, the site's excellent mobile signal and fast broadband availability make it an attractive proposition for future tenants and businesses alike. Surrounded by numerous amenities such as shops, cafés, and recreational facilities, this location is ideal for drawing in residents and customers once developed.
Don't miss the chance to transform this property into a sought-after residential and commercial space that complies with local planning regulations—get in touch to learn more about this unique opportunity!
Land for sale in Milton Road, Barry, CF62 — £65,000 • 1 bed • 1 bath • 7922 ft²
Land for sale in Development Site, Ffordd Y Mileniwm, Barry, CF63 3QQ, CF63 — POA • 1 bed • 1 bath
Industrial park for sale in Land at Hayes Road, Sully, CF64 — £1,717,500 • 1 bed • 1 bath
Land for sale in Cowbridge Road West, Cardiff, CF5 — £249,950 • 1 bed • 1 bath • 1453 ft²
Land for sale in Laura Street, CF63 — £330,000 • 4 bed • 2 bath • 1041 ft²
House for sale in 8 Park Road, Barry, CF62 6NU, CF62 — £900,000 • 1 bed • 1 bath • 22216 ft²


















































