**Standout Features:**
- Large land parcel (approximately 244 sqm / 0.06 acres)
- Full planning permission granted for a contemporary detached home
- Off-street parking for two vehicles
- Excellent transport links and proximity to local amenities
- Sustainable design with biodiversity enhancements
**Concerns:**
- Area classified as very deprived with above-average crime rates
- Higher council tax costs
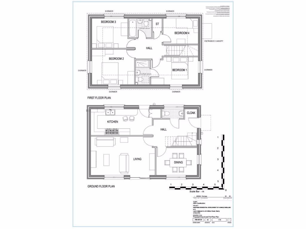
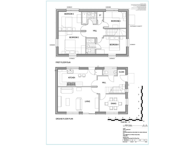
Unlock the potential of this generous plot of land in Barry’s prime location, perfect for self-builders and developers alike. With full planning permission for a modern two-storey detached dwelling, the approved designs showcase an open-plan layout flooded with natural light, complemented by stylish dormer windows and a thoughtful orientation that ensures privacy for neighbors. The site’s wildlife-friendly landscaping and sustainable design features enhance its appeal, promising an environmentally conscious investment.
Minutes from local shops, schools, parks, and excellent transport links, this location is ideal for families or those seeking an up-and-coming coastal community. Although the area shows above-average crime rates and higher council tax, the opportunity to create a bespoke home in such a desirable setting is rare. Don’t miss your chance to capitalize on this unique property; offers are invited, and your dream home could be just a proposal away.
Land for sale in Laura Street, CF63 — £330,000 • 4 bed • 2 bath • 1041 ft²
Residential development for sale in Holton Road, Barry, CF63 — £225,000 • 1 bed • 1 bath
Land for sale in Cowbridge Road West, Cardiff, CF5 — £249,950 • 1 bed • 1 bath • 1453 ft²
Plot for sale in Plot Adjacent to the Red Lion, Pendoylan, The Vale of Glamorgan CF71 7UJ, CF71 — £285,000 • 4 bed • 2 bath • 2000 ft²
Industrial park for sale in Land at Hayes Road, Sully, CF64 — £1,717,500 • 1 bed • 1 bath
Land for sale in Development Site, Ffordd Y Mileniwm, Barry, CF63 3QQ, CF63 — POA • 1 bed • 1 bath


























































