Immediate planning potential for a small housebuilder or investor seeking quick entry..
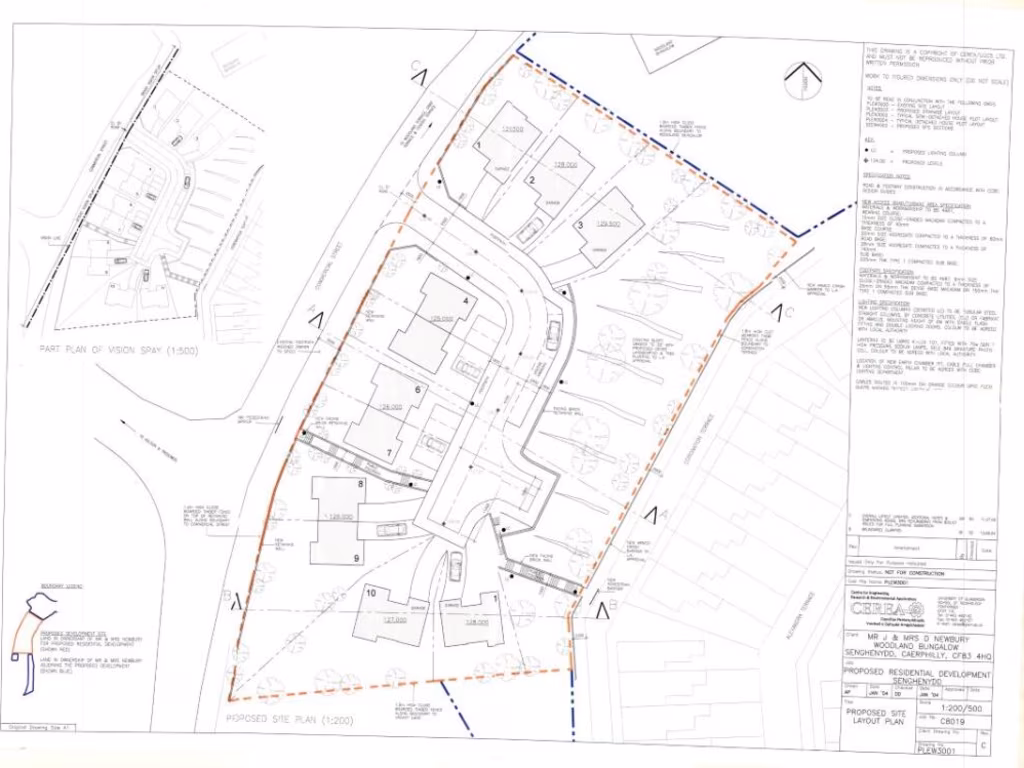
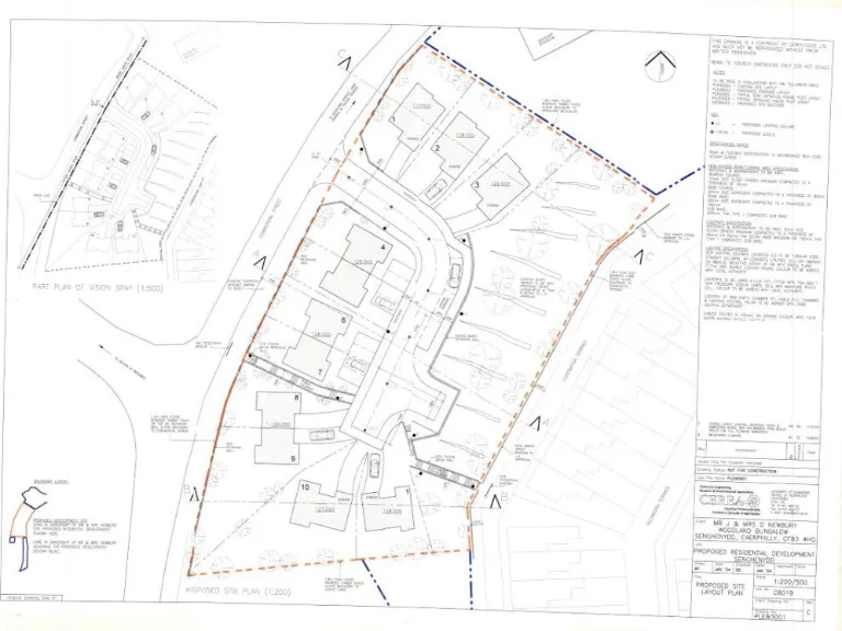
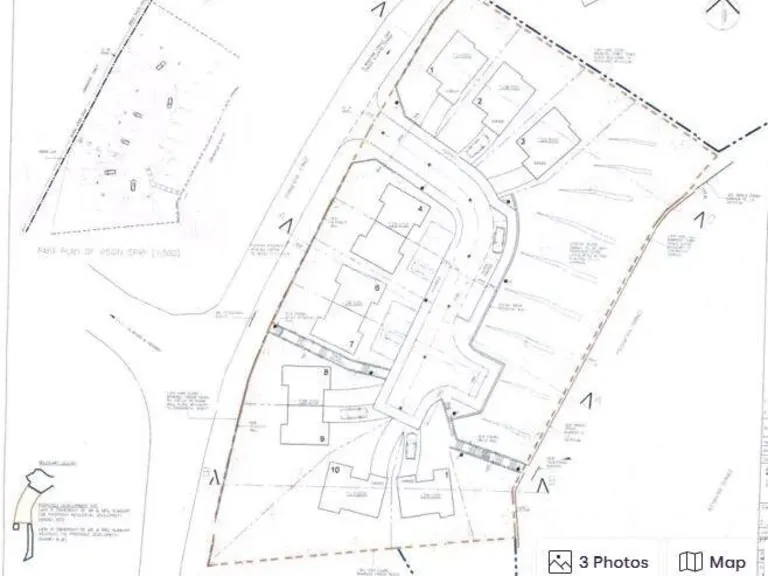
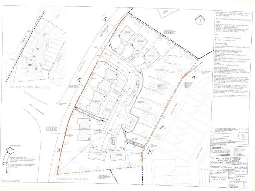
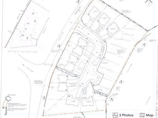
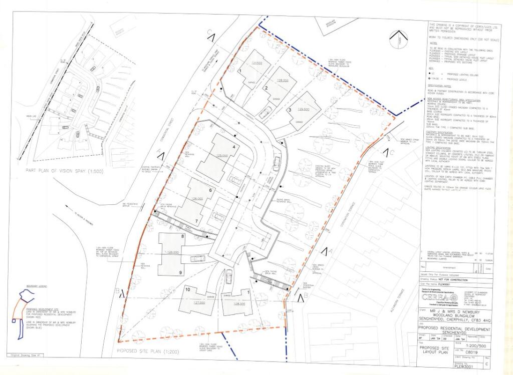
Outline planning for 11 dwellings (5 detached, 6 semi‑detached)
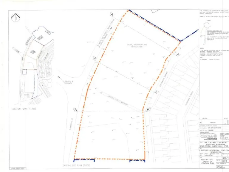
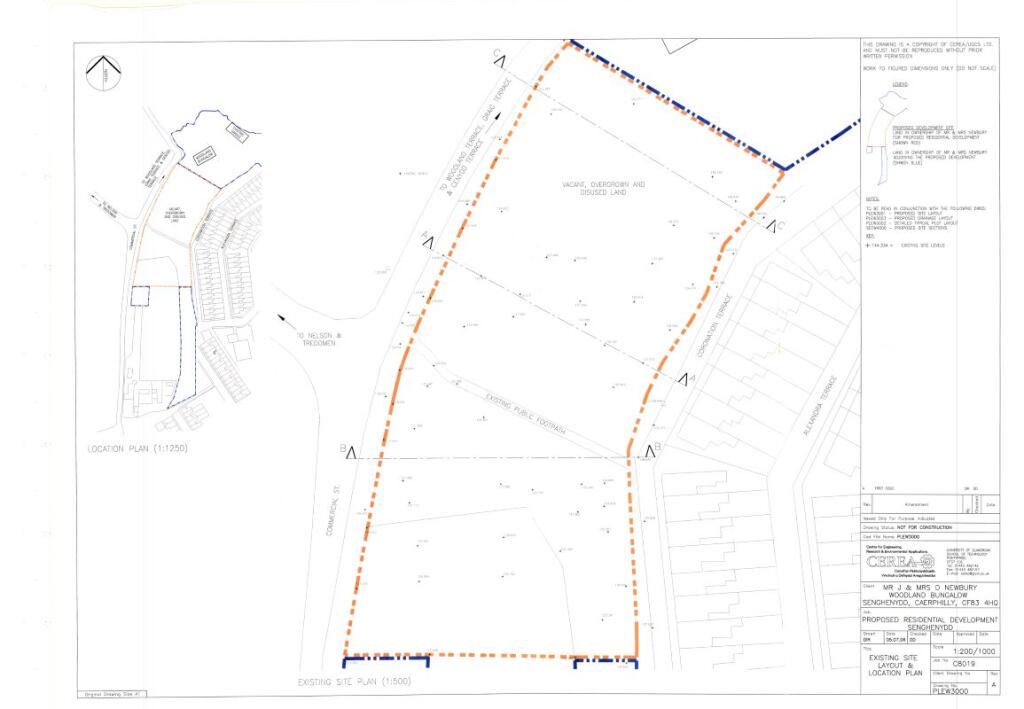
Approximately 1.9 acres of freehold land
Sold with vacant possession via online auction
Planning ref 20/0983/NCC, Caerphilly County Council
No identified flood risk; excellent mobile and fast broadband
Located in a popular residential area of Senghenydd
Area classified as very deprived; local market and demand constraints
Reserved matters, services and site works likely required before build
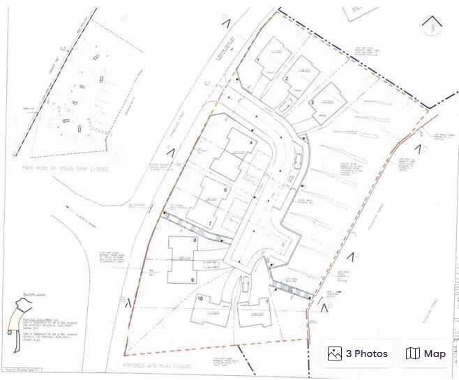
A substantial 1.9-acre development plot in Senghenydd with outline planning permission for 11 dwellings — five detached and six semi‑detached (planning ref 20/0983/NCC). The site is freehold, will be sold with vacant possession and is offered via online auction, making it a clear proposition for a small housebuilder or investor prepared to move quickly.
Outline consent reduces initial planning risk, but reserved matters, detailed design, and full building consents remain to be secured. The plot lies in a popular residential setting with good mobile and broadband connectivity and local amenities including bus links, a playground and woodland nearby. There is no identified flooding risk on the title information.
Buyers should factor in the local context: the wider area is economically deprived and described as challenged communities. That can affect sales values, affordable housing requirements, phasing and sales pace, and may influence lender appetite. Full on‑site infrastructure, utilities connections and detailed site remediation works are likely required before construction starts.
This lot suits developers or investors seeking a medium‑sized greenfield opportunity with immediate planning potential. The auction timetable and outline permission make it attractive for those able to progress designs and statutory approvals promptly; however, allow budget and time for detailed planning, services and local market constraints.
Land for sale in Land adjacent to, 6-8 Brynmair Road, Aberdare, Mid Glamorgan, CF44 6LR, CF44 — £90,000 • 1 bed • 1 bath • 6465 ft²
Land for sale in East Road, Tylorstown, Ferndale, CF43 — £60,000 • 1 bed • 1 bath
Land for sale in Land Adjacent to, 1 Cae Pen Y Graig, Caerphilly, CF83 2AD, CF83 — £80,000 • 1 bed • 1 bath
Plot for sale in Residential Development at Slip Road, Merthyr Tydfil, CF48 — £300,000 • 5 bed • 1 bath
Residential development for sale in The Old Granary, Farm Road , Aberman, Aberdare, CF44 — £350,000 • 1 bed • 1 bath
Land for sale in Millbrook Road, Pontllanfraith, Blackwood, NP12 — £350,000 • 1 bed • 1 bath










































































