Large serviced plot with outline consent near new residential development.
3.78 acres (1.532 ha) freehold employment site
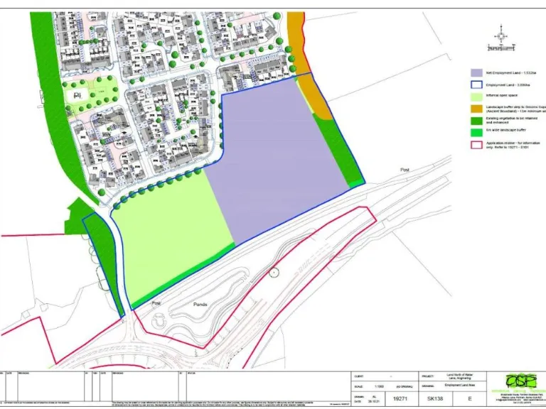
An unusually large freehold employment site of 3.78 acres (1.532 ha) on Water Lane, Angmering, offered with outline planning consent for up to 6,000 sq m (c.64,500 sq ft) of Class B1 floorspace. The parcel sits adjacent to a major new Cala Homes and Bellway residential development, with a planned single access point and significant Section 106-funded infrastructure improvements already committed. Road connections are strong: immediate access to the A259 and under two miles to the A27, linking to Worthing, Brighton and Chichester.
This is a strategic purchase for investors or owner-occupiers seeking a large, serviced employment plot within a growing mixed-use area. Cala Homes and Bellway are delivering the employment-zone roadworks to base course, with an indicative servicing completion around Q2 2023, which will materially reduce upfront infrastructure risk. The sale is freehold with vacant possession and the site is not elected for VAT; it is understood to be EPC exempt.
Buyers should note important constraints: consent is outline only and currently limited to Class B1 employment uses — B2 (general industrial) and B8 (storage/distribution) are not permitted under the existing consent. Broadband speeds on site are very slow and the location has a medium flood risk. The wider local area records pockets of deprivation despite low crime and good mobile signal. Offers are sought in excess of £2,000,000.
Warehouse for sale in South Plot, Land to the East of Darnel Road, Hambledon Road, Waterlooville, PO7 7FZ, PO7 — £975,000 • 1 bed • 1 bath
Land for sale in Plots A & B Hampton Park, Toddington Lane, Littlehampton, West Sussex, BN17 — POA • 1 bed • 1 bath
Property for sale in Lake Lane, Barnham, PO22 — £2,200,000 • 1 bed • 1 bath
Land for sale in The Bluebird Estate, Brighton Road, Bolney RH17 — £2,000,000 • 1 bed • 1 bath
Property for sale in Hoe Lane, Flansham, Bognor Regis, West Sussex, PO22 — £1,000,000 • 1 bed • 1 bath • 4100 ft²
Commercial development for sale in Adult Learning Centre, Brougham Road, Worthing, West Sussex BN11 2NU, BN11 — £1,500,000 • 1 bed • 1 bath • 27007 ft²










