Two-plots with unrivalled countryside and London skyline vistas.
Full planning permission for two contemporary 4,000 sq ft detached homes
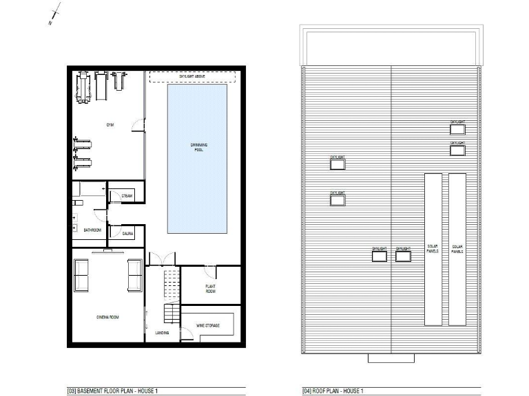
A rare 2-acre freehold parcel on The Ridgeway, Cuffley, with full planning permission for two contemporary 4,000 sq ft detached homes (optional 2,000 sq ft basements). The site occupies a premier, elevated position with uninterrupted Northaw Valley countryside views and clear sightlines to the London skyline, including Canary Wharf and the City.
This opportunity suits developers or buyers seeking a bespoke build in a highly desirable, well-connected location. Cuffley station is approximately one mile away with direct trains to Moorgate (around 35 minutes). Major road routes (M25, A1, A10) and nearby Potters Bar provide quick access to central London and regional transport links.
Full planning permission reduces upfront entitlement risk, but the purchase is for land requiring complete construction. Buyers should allow for significant build costs, lead times and detailed contractor procurement. Services, landscaping and any bespoke finishes will be at purchaser expense.
Set back behind a long private driveway, the plot offers privacy, substantial outdoor space and excellent broadband and mobile connectivity. The location benefits from highly regarded local schools and very low local crime, making the site attractive for high-end family homes or a premium development scheme.
5 bedroom detached house for sale in The Ridgeway, Cuffley, Hertfordshire, EN6 — £1,900,000 • 5 bed • 4 bath • 2809 ft²
Land for sale in East Ridgeway, Cuffley, Hertfordshire, EN6 — £850,000 • 1 bed • 1 bath • 619 ft²
5 bedroom detached bungalow for sale in The Ridgeway, Northaw, EN6 — £949,950 • 5 bed • 3 bath • 2971 ft²
5 bedroom detached house for sale in The Ridgeway, Northaw, EN6 — £1,495,000 • 5 bed • 3 bath • 3733 ft²
5 bedroom detached house for sale in Hanyards Lane, Cuffley, Hertfordshire, EN6 — £2,400,000 • 5 bed • 5 bath • 3699 ft²
5 bedroom house for sale in Hill Rise, Cuffley, EN6 — £1,600,000 • 5 bed • 4 bath • 2200 ft²






































