Auction sale with immediate rental income and strong commuter links..
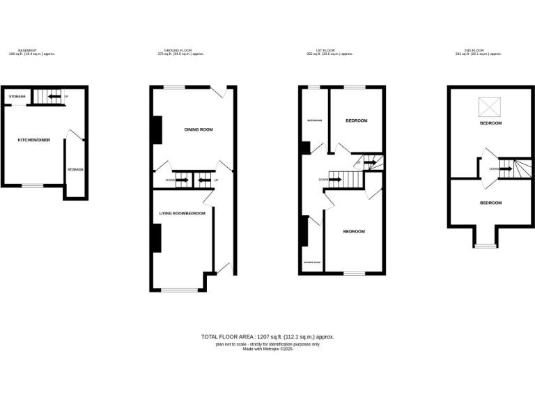
Four bedrooms across three floors, 1,207 sqft total
Tenants in situ generating £1,300 pcm rental income
Sold at auction 10 Dec 2025; guide price £165,000+
Requires renovation and modernisation throughout
Solid brick walls assumed without insulation; energy improvements needed
EPC rating D; Council Tax Band B (relatively cheap)
High local crime and very high area deprivation
Excellent mobile signal and fast broadband; close to transport
This Victorian mid-terrace offers four bedrooms across three floors and sits 1.5 miles from Leeds city centre. It is sold at auction with tenants in situ, producing a verified £1,300 pcm, making immediate rental income available to a new owner.
The interior retains period features such as a bay window and high ceilings but needs renovation and cosmetic updating throughout. The property has mains gas central heating, double glazing, and solid brick walls likely without insulation — expect spending on modernisation and thermal upgrades. EPC rating D and Council Tax Band B are noted.
Location suits buy-to-let portfolios: good transport links (Burley Park station nearby), fast broadband and excellent mobile signal, plus nearby shopping at Cardigan Fields and Kirkstall Bridge. Schools in the area have Good Ofsted ratings, supporting longer-term tenant demand.
Important negatives are clear: the area has high crime and very high deprivation, the plot is very small, and the house will be sold at auction (10th December 2025) with a guide price of £165,000+. Tenants are long-standing — plan around tenancy terms and potential eviction or succession costs when budgeting renovation.
5 bedroom terraced house for sale in Knowle Road, Leeds, West Yorkshire, LS4 — £270,000 • 5 bed • 1 bath • 1195 ft²
4 bedroom terraced house for sale in Hartley Grove, Leeds, West Yorkshire, LS6 — £175,000 • 4 bed • 1 bath • 1151 ft²
2 bedroom terraced house for sale in Woodside Place, Leeds, LS4 — £135,000 • 2 bed • 1 bath • 965 ft²
4 bedroom terraced house for sale in Haddon Avenue, Leeds, LS4 — £199,950 • 4 bed • 2 bath • 975 ft²
3 bedroom terraced house for sale in Vinery Mount, Leeds, West Yorkshire, LS9 9LY, LS9 — £100,000 • 3 bed • 1 bath • 887 ft²
5 bedroom terraced house for sale in Nowell Mount, Leeds, LS9 — £135,000 • 5 bed • 5 bath • 1346 ft²






















































