Bright maisonette near Victoria Park with strong transport links.
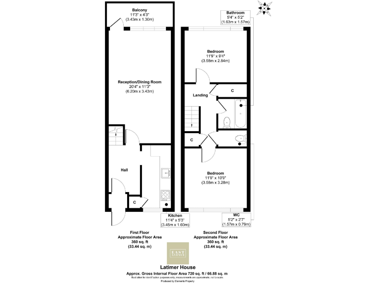
Chain‑free two‑bed maisonette, approx. 720 sq ft
Private balcony off the reception room for outdoor space
Two double bedrooms plus separate WC and family bathroom
Leasehold with ~89 years remaining — buyer to check terms
System‑built (1967–75) construction; no known wall insulation
High local crime rate and very deprived area classification
5‑minute walk to Homerton Overground; fast broadband and good mobile signal
This chain-free two-bedroom maisonette offers around 720 sq ft of flexible, house‑style living in the heart of Homerton. Arranged over two floors, the flat has a bright reception room that opens onto a private balcony, a separate kitchen, and two double bedrooms on the upper level — practical for sharers or a small family.
The location is a clear strength: a five‑minute walk to Homerton Overground, minutes from Well Street’s cafes and shops, and within easy reach of Victoria Park. Local schools include several rated Good or Outstanding, and frequent buses and fast broadband support everyday convenience and commuting.
Buyers should note material facts plainly: the property is leasehold with approximately 89 years remaining and is built as a 1967–75 system‑built structure with no known wall insulation. The area records higher crime rates and is classified as very deprived, which may affect resale and rental demand. Internal ceiling heights vary and the attic/upper spaces are low‑ceilinged.
This home suits a first‑time buyer or investor willing to be pragmatic about running costs and future works. It presents immediate occupancy with scope for energy upgrades and cosmetic improvement to increase comfort and long‑term value.
2 bedroom maisonette for sale in Morning Lane, E9 — £325,000 • 2 bed • 1 bath • 718 ft²
3 bedroom flat for sale in College Close, Hackney, E9 — £575,000 • 3 bed • 1 bath • 945 ft²
3 bedroom apartment for sale in Paragon Road, Hackney, E9 — £460,000 • 3 bed • 1 bath • 883 ft²
3 bedroom house for sale in Wick Road, London, E9 — £435,000 • 3 bed • 1 bath • 798 ft²
2 bedroom apartment for sale in Stevens Avenue, London, E9 — £425,000 • 2 bed • 1 bath • 697 ft²
2 bedroom apartment for sale in Mackintosh Lane, Hackney, E9 — £450,000 • 2 bed • 1 bath • 715 ft²














































































