Large five-bed house with south garden, sea views and modern energy perks.
South-facing large garden with patio and mature privacy planting
Sea views to Caldey Island from first-floor master suite
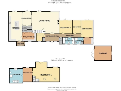
Five bedrooms; master ensuite and two ground-floor ensuites
Solar panels and EV charging point reduce energy costs
Double garage with water and electricity; extensive driveway parking
Built 1930–1949 with cavity walls likely uninsulated — retrofit may be needed
Council Tax Band G — relatively high running costs
Average broadband speeds; wider area has higher deprivation levels
Set on a very large plot in a tucked-away Tenby position, this substantial five-bedroom dormer bungalow offers generous family accommodation and notable coastal outlooks to Caldey Island. The ground floor’s open-plan flow — large modern kitchen, dining area and bright lounge with full-height glazing — opens directly onto a sunny south-facing patio and lawn, making indoor–outdoor living straightforward. Solar panels and an EV charging point reduce running costs and support low-carbon living.
Sleeping arrangements are flexible: four ground-floor bedrooms (two with ensuite access) and a first-floor master suite with dressing area, ensuite and Juliet balcony. Practical features include a large utility/boot room, double garage with water and electricity, and an extensive driveway capable of housing multiple vehicles, a caravan or boat. Mature planting and established boundaries give privacy from the lane.
Buyers should note a few material points: the house dates from 1930–1949 and has cavity walls that are assumed uninsulated, so additional insulation or energy-efficiency work may be beneficial despite the solar array. Council Tax is high (Band G) and the wider area scores as relatively deprived; broadband speeds are average. Overall the property suits families seeking roomy, well-presented coastal living with strong outdoor amenity and potential to refine energy performance over time.
5 bedroom detached house for sale in Haytor Gardens, Tenby, Pembrokeshire, SA70 — £650,000 • 5 bed • 4 bath • 3338 ft²
5 bedroom house for sale in North Cliffe, Tenby, SA70 — £1,375,000 • 5 bed • 3 bath • 2543 ft²
4 bedroom detached house for sale in Lady Park, Tenby, SA70 — £499,950 • 4 bed • 3 bath • 1377 ft²
4 bedroom detached bungalow for sale in Presely View, Pembroke Dock, SA72 — £550,000 • 4 bed • 3 bath • 2829 ft²
3 bedroom detached house for sale in Oakridge Acres, Tenby, Pembrokeshire, SA70 — £365,000 • 3 bed • 2 bath • 1404 ft²
5 bedroom detached house for sale in Marros, Pendine, Carmarthen, Carmarthenshire, SA33 — £890,000 • 5 bed • 4 bath • 2907 ft²






















































































































































