Spacious four-bedroom family home with sustainable extras and water views.
Direct estuary views from lounge and first-floor oriel window
Four double bedrooms including principal suite with freestanding bath
Solar panels and dedicated EV charging point installed
Immaculate modern kitchen, dining room with French doors
Large driveway parking for up to five cars plus electric garage
Enclosed rear garden with fruit trees, patio and raised beds
EPC rating C; cavity walls assumed uninsulated — upgrade potential
Area shows above-average crime and higher deprivation; council tax Band E
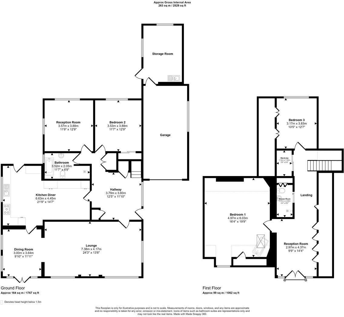
Set on a quiet no-through road with direct estuary views, this detached four-bedroom bungalow offers spacious, well-arranged family living across two levels. Immaculate décor, a modern fitted kitchen and contemporary bathrooms make it ready to move into, while the dual-aspect lounge and first-floor oriel window maximise the water outlook.
Practical, energy-conscious features include a solar panel array and a dedicated EV charger, plus Hive-controlled gas central heating with separate upstairs/downstairs zoning. The large driveway, electric-garage with workshop and enclosed rear garden with fruit trees and raised beds add family-friendly convenience and storage.
Buyers should note the property dates from the 1950s–60s and has cavity walls assumed without added insulation, so further insulation work could improve comfort and running costs. The EPC is C and council tax is above average (Band E). The location is convenient for local amenities and coastal access, though the wider area records higher-than-average deprivation and crime statistics.
Offered freehold and with no onward chain, this substantial riverside home suits families seeking a scenic, spacious base with room to personalise and improve energy efficiency.
4 bedroom detached house for sale in Ocean Way, Pennar, Pembrokeshire, SA72 — £580,000 • 4 bed • 4 bath • 3200 ft²
2 bedroom bungalow for sale in Church Road, Llanstadwell, Milford Haven, Pembrokeshire, SA73 — £325,000 • 2 bed • 2 bath • 937 ft²
5 bedroom detached house for sale in Heywood Lane, Tenby, SA70 — £895,000 • 5 bed • 3 bath • 3615 ft²
4 bedroom house for sale in St. Patricks Hill, Llanreath, Pembroke Dock, Pembrokeshire, SA72 — £310,000 • 4 bed • 3 bath • 1541 ft²
5 bedroom detached house for sale in Haven Drive, Pennar, Pembroke Dock, SA72 — £330,000 • 5 bed • 3 bath • 2386 ft²
5 bedroom detached house for sale in Marros, Pendine, Carmarthen, Carmarthenshire, SA33 — £890,000 • 5 bed • 4 bath • 2907 ft²


































































































































