Characterful two-bedroom cottage in Hayfield with village location and countryside access..
Grade II listed period stone cottage over three levels
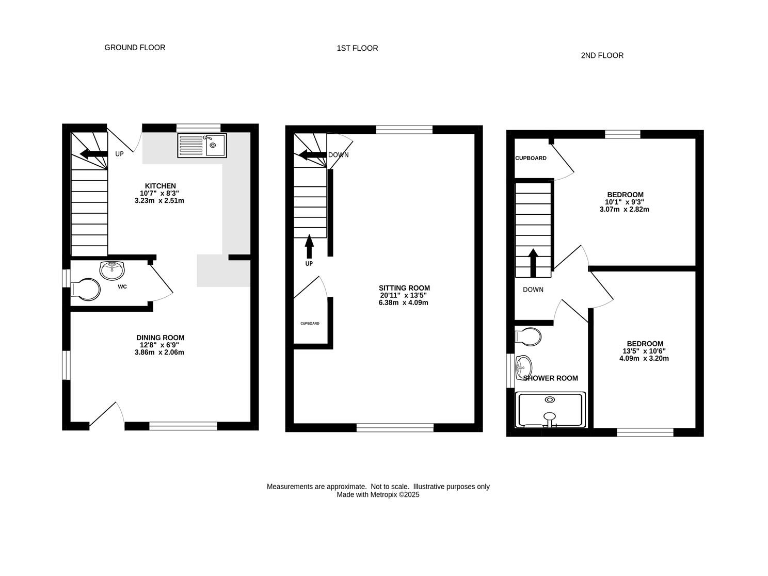
An attractive Grade II listed stone cottage arranged over three levels in the sought-after village of Hayfield. The house blends period character — exposed beams, mullion-style double glazing and a wood-burning stove — with practical updates such as a fitted kitchen with AGA, gas central heating and a modern bathroom.
Living space is unexpectedly generous for the plot: a ground-floor dining area open to the kitchen and a fabulous first-floor sitting room with a fire surround and distant views. Two generous double bedrooms occupy the top floor, making the layout comfortable for a couple or those downsizing who still want distinct living areas.
The property sits at the end of a quiet no-through road with small walled seating areas front and rear and convenient access to village amenities, bus routes and countryside walks including the Sett Valley Trail and Kinder Scout. Broadband and mobile signal are strong.
Important practical notes: the home is Grade II listed, which will restrict alterations and may complicate maintenance or refurbishment. The plot is very small, ceilings are lower in parts (kitchen/dining), and the stone walls are likely uninsulated — further insulation works could be limited by the listing.
4 bedroom cottage for sale in Market Street, Hayfield, High Peak, SK22 — £699,950 • 4 bed • 3 bath • 2011 ft²
3 bedroom terraced house for sale in New Mills Road, Hayfield, High Peak, Derbyshire, SK22 — £275,000 • 3 bed • 1 bath • 851 ft²
2 bedroom terraced house for sale in Glossop Road, Hayfield, High Peak, SK22 — £240,000 • 2 bed • 1 bath • 615 ft²
2 bedroom terraced house for sale in Mill Street, Hayfield, High Peak, SK22 — £265,000 • 2 bed • 1 bath • 585 ft²
4 bedroom house for sale in Market Street, Hayfield, High Peak, SK22 — £535,000 • 4 bed • 1 bath • 815 ft²
2 bedroom terraced house for sale in Kinder Road, Hayfield, High Peak, SK22 — £325,000 • 2 bed • 1 bath • 995 ft²


























































