Substantial gated house with annex, large garden and strong school links.
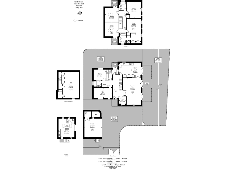
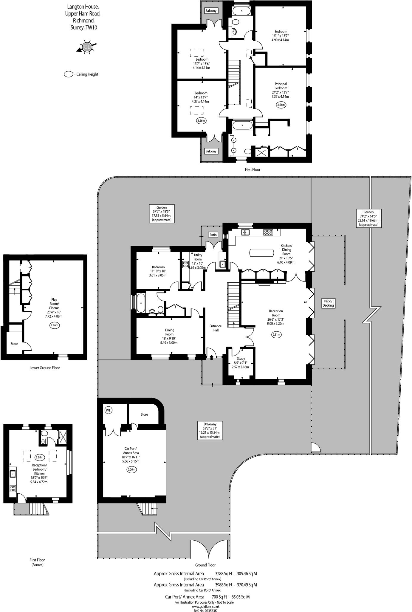
Six bedrooms plus lower-ground games/cinema room
Detached studio annex above carport — self-contained
Large wrap-around garden with extension potential (subject to consents)
Gated, set-back plot with long driveway and multiple parking spaces
Constructed 2003–2006; double glazing; mains gas boiler and radiators
Approx 3,995 sq ft of flexible lateral family living
Very expensive council tax band — higher running costs
Local area records above-average crime — consider security measures
Set well back from Ham Common behind gates, this substantial detached family house offers nearly 4,000 sq ft of flexible living across multiple floors. The house centres on generous reception spaces, a large kitchen/dining area opening to the garden, and a lower-ground games/cinema room — well suited to family life and entertaining. A separate studio annex above the carport provides self-contained accommodation ideal for guests, a live-in nanny or rental income.
The property sits on a sizeable wrap-around garden with room for extension or landscaping (subject to planning). Off-street parking for several cars is provided by a long driveway and carport. Location is a key draw: excellent local schools, fast broadband and strong commuter links make this attractive to families and professionals.
Be aware of material practicalities: the property carries a very expensive council tax band and the immediate area records above-average crime — both important for budgeting and security planning. While the house is modern in construction with double glazing and mains gas heating, parts may benefit from updating and the plot presents further potential for refurbishment or extension where permitted.
Overall, this is a substantial family home offering space, privacy and flexibility in a sought-after Richmond setting, best suited to a buyer looking for generous accommodation, annexed living and garden potential, who is prepared for higher running costs and some modernisation.
6 bedroom detached house for sale in Upper Ham Road, Richmond, TW10 — £2,950,000 • 6 bed • 4 bath • 3778 ft²
6 bedroom detached house for sale in Ham Farm Road, Richmond, TW10 — £4,950,000 • 6 bed • 6 bath • 4932 ft²
3 bedroom detached house for sale in Ham Street, Richmond, TW10 — £1,895,000 • 3 bed • 3 bath • 2592 ft²
4 bedroom detached house for sale in Lock Road, Richmond, TW10 — £1,700,000 • 4 bed • 3 bath • 2529 ft²
4 bedroom town house for sale in Ham Street, Richmond, TW10 — £1,350,000 • 4 bed • 3 bath • 1518 ft²
5 bedroom detached house for sale in Barrons Chase, Richmond, TW10 — £2,150,000 • 5 bed • 5 bath • 2740 ft²










































































