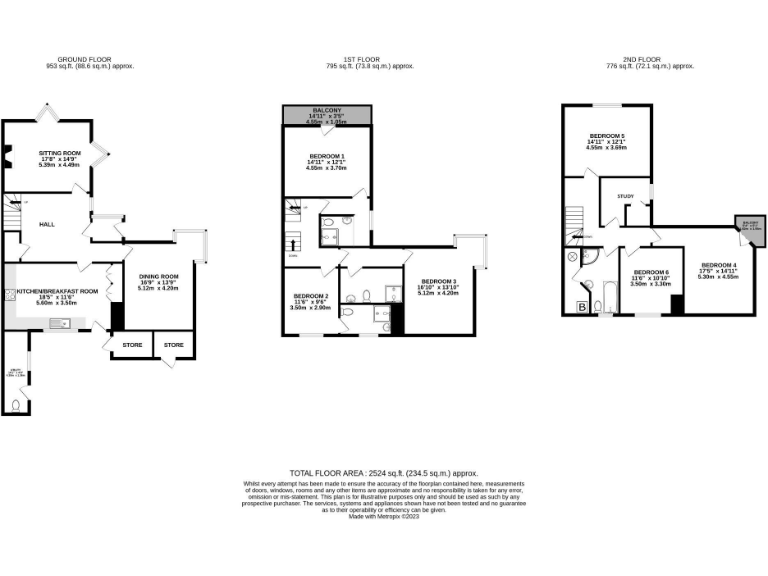
**Standout Features:**
- Charming 3-storey Victorian property with original period features.
- Spacious layout with 4 reception rooms and a large kitchen/dining area.
- 5 double bedrooms, 3 of which include en-suite bathrooms.
- Off-road parking for 2 vehicles.
- South-facing garden and private courtyard for outdoor living.
- Prime location just a short stroll to the town centre and seafront.
- Ideal for family living, a weekend retreat, or holiday rental.
- Available with no onward chain; fully furnished option negotiable.
This elegant Victorian townhouse, rich in character and original features, presents an incredible opportunity for families, holiday home buyers, or investors looking for a desirable rental. Spanning over 2,500 sq. ft., this three-story property boasts four versatile reception rooms, a spacious kitchen perfect for gatherings, and five double bedrooms that offer comfort and privacy with three having en-suite facilities.
The south-facing garden and enclosed courtyard provide a delightful outdoor space, ideal for barbecues and entertaining. Nestled in the welcoming seaside town of Hunstanton, you're just moments away from sandy beaches and local amenities. While the property is in good condition, potential buyers may wish to consider slight modernization to fully realize its impressive potential. With the added benefit of no onward chain, this property is poised for a quick sale—don’t miss out on securing your own stunning coastal retreat!
5 bedroom semi-detached house for sale in Lincoln Street, Hunstanton, PE36 — £550,000 • 5 bed • 3 bath • 2890 ft²
4 bedroom semi-detached house for sale in Crescent Road, Hunstanton, PE36 — £400,000 • 4 bed • 2 bath • 1106 ft²
4 bedroom end of terrace house for sale in Hunstanton, Norfolk, PE36 — £365,000 • 4 bed • 2 bath • 1356 ft²
4 bedroom semi-detached house for sale in York Avenue, HUNSTANTON, PE36 — £375,000 • 4 bed • 2 bath • 1680 ft²
5 bedroom terraced house for sale in Glebe Avenue, Hunstanton, PE36 — £375,000 • 5 bed • 2 bath • 1055 ft²
6 bedroom semi-detached house for sale in Alexandra Road, Hunstanton, PE36 — £475,000 • 6 bed • 2 bath • 2004 ft²


































































































