Large renovated home with separate annexe near the seafront.
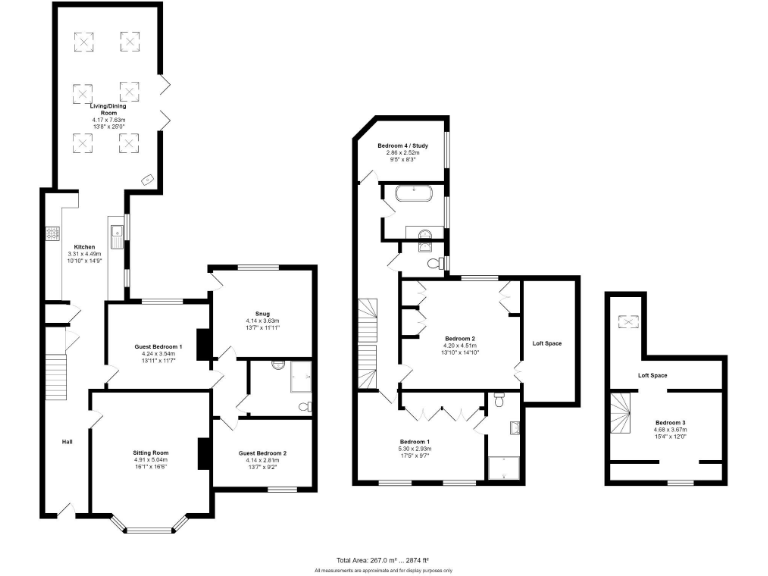
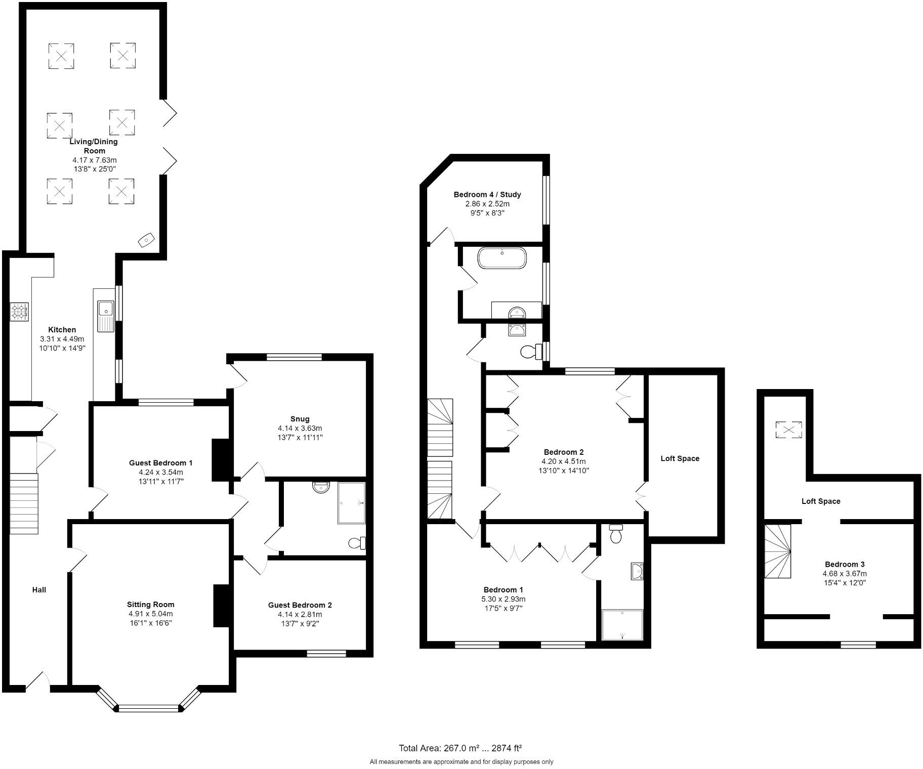
Nearly 2,900 sq ft of flexible Victorian accommodation
This substantial Victorian semi offers flexible living across three floors, recently renovated and extended to provide nearly 2,900 sq ft of versatile space. The ground floor includes a self-contained two-bedroom annexe with a private entrance — previously used successfully for holiday lets — while the main house provides generous reception rooms, five bedrooms and multiple loft storage areas.
The rear extension creates a bright open-plan kitchen/dining/living area with vaulted roof lights, bi-fold doors, underfloor heating and a contemporary wood-burning stove. High levels of insulation, replacement double glazing and energy-efficient fittings have been installed throughout, and the ground floor is arranged to be fully wheelchair accessible.
Outside, an enclosed garden with artificial lawn and an insulated, double-glazed summer house offers low-maintenance outdoor space and utility plumbing. The property is a short walk from Hunstanton’s seafront and town centre, making it well placed for seaside living, holiday rentals or multi-generational households.
Important practical points: the home was built before 1900 and prospective buyers should commission their own surveys and appliance/service checks. The sale is offered chain free and details such as the EPC and council tax band are available, but all measurements and service conditions should be independently verified.
5 bedroom town house for sale in Glebe Avenue, Hunstanton, PE36 — £550,000 • 5 bed • 4 bath • 2500 ft²
4 bedroom semi-detached house for sale in Crescent Road, Hunstanton, PE36 — £400,000 • 4 bed • 2 bath • 1106 ft²
4 bedroom end of terrace house for sale in Hunstanton, Norfolk, PE36 — £365,000 • 4 bed • 2 bath • 1356 ft²
4 bedroom semi-detached house for sale in Southend Road, Hunstanton, PE36 — £345,000 • 4 bed • 2 bath • 1131 ft²
4 bedroom detached house for sale in Northgate, Hunstanton, PE36 — £600,000 • 4 bed • 2 bath • 1716 ft²
4 bedroom terraced house for sale in Victoria Avenue, Hunstanton, PE36 — £420,000 • 4 bed • 2 bath • 1844 ft²


































































































