Spacious two-bedroom cottage with a 90ft south-facing garden and commuter links.
End-terrace cottage with period brickwork and chimney
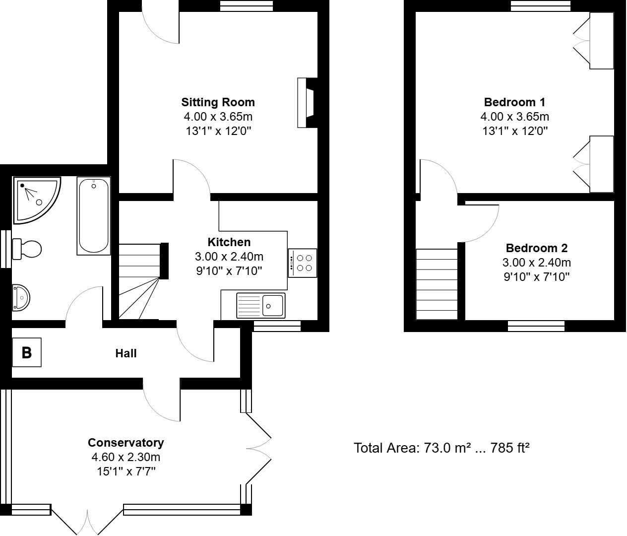
This deceptively spacious end-terrace cottage marries period charm with practical living in a quiet Norfolk village. The sitting room centres on a feature fireplace and wood-burning stove, while a fitted kitchen with oak worktops and a conservatory create sociable ground-floor space opening to a long, south-facing rear garden of about 90ft. Two generous double bedrooms sit on the first floor, the principal bedroom offering built-in wardrobes and ample proportions.
The property is chain-free and well placed for commuting, with easy access to the A10/A47 and nearby Watlington station. Services include mains water and electricity, oil-fired central heating to radiators, and a shared septic tank. The garden is fully enclosed, includes a patio and timber shed, and is accessed via a rear passage with gated entry shared by the terrace.
Buyers should note the cottage’s EPC rating of F and oil-fired heating, which will affect running costs and efficiency. The house has solid brick walls (no known insulation) and double glazing of unknown age, so there is scope for energy-efficiency improvements and cosmetic updating. Overall this is a characterful, well-located home suitable for first-time buyers or commuters willing to invest in efficiency upgrades.
2 bedroom semi-detached house for sale in Castle Road, Wormegay, Kings Lynn, Norfolk, PE33 — £200,000 • 2 bed • 1 bath • 613 ft²
5 bedroom detached house for sale in Bardolphs Way, Wormegay, King's Lynn, PE33 — £585,000 • 5 bed • 3 bath • 1736 ft²
3 bedroom semi-detached house for sale in Hill Estate, Wormegay, King's Lynn, PE33 — £269,500 • 3 bed • 2 bath • 894 ft²
5 bedroom detached house for sale in Substantial Family home in Rural Wormegay, PE33 — £585,000 • 5 bed • 4 bath • 2000 ft²
3 bedroom semi-detached house for sale in Shouldham Thorpe, PE33 — £300,000 • 3 bed • 1 bath • 1298 ft²
4 bedroom cottage for sale in Castle Road, Wormegay, King's Lynn, Norfolk, PE33 — £315,000 • 4 bed • 2 bath • 984 ft²


























































