Spacious, versatile home near parks and top-rated schools.
Approximately 2,299 sq ft over four floors
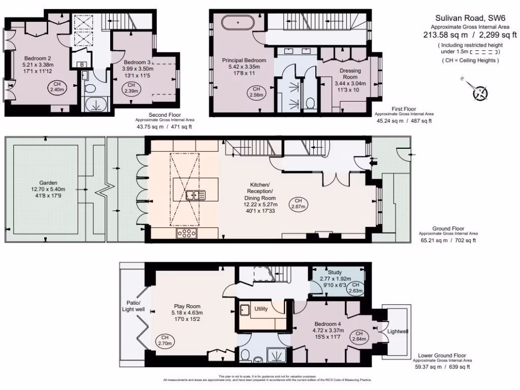
A rare, fully extended four-bedroom mid-terrace on Sulivan Road, arranged over four floors and offering approximately 2,299 sq ft of flexible family space. The ground floor presents a large, light-filled open-plan reception, dining and contemporary kitchen with central island and skylight, flowing directly to a substantial rear garden — excellent for family life and entertaining.
The lower-ground level adds practical versatility: a large playroom/cinema room with lightwell/patio, utility, study and a fourth bedroom with en-suite — ideal for home working, a guest suite or separate family zone. The principal bedroom suite on the first floor features a dressing room and steam room/en-suite, while two further double bedrooms with built-in storage and a family bathroom occupy the top floor. The house benefits from air conditioning throughout, mains gas heating with boiler and underfloor heating, and double glazing installed post-2002.
Important practical points: the property is a solid-brick terrace likely without wall insulation (as built), which could require upgrading for improved energy efficiency; council tax is described as quite expensive. The plot is a typical terrace footprint (small overall) despite a generous rear garden relative to neighbouring properties, and the wider ward shows signs of deprivation. Crime levels are average and flood risk is very low.
Location is a major selling point: situated near Hurlingham Club, Parsons Green amenities and good transport links (Parsons Green and Wandsworth Town stations). Strong local schools — including outstanding-rated secondaries — and abundant local leisure facilities make this a compelling family proposition for buyers seeking significant internal space in SW6 with scope to modernise further.
5 bedroom end of terrace house for sale in Sulivan Road, Fulham, SW6 — £2,000,000 • 5 bed • 3 bath • 2265 ft²
4 bedroom terraced house for sale in Basuto Road, London, SW6 — £2,650,000 • 4 bed • 4 bath • 2100 ft²
4 bedroom terraced house for sale in Campana Road,
Parsons Green, SW6 — £2,925,000 • 4 bed • 4 bath • 2357 ft²
4 bedroom terraced house for sale in Daisy Lane, London, SW6 — £2,950,000 • 4 bed • 4 bath • 2459 ft²
4 bedroom terraced house for sale in Fulham Park Gardens, London, SW6 — £3,250,000 • 4 bed • 3 bath • 2874 ft²
4 bedroom terraced house for sale in Lillie Road, London, SW6 — £1,350,000 • 4 bed • 3 bath • 1555 ft²






































































