Rare four-bedroom marina home with private mooring and gated security..
Private rear mooring with direct water access
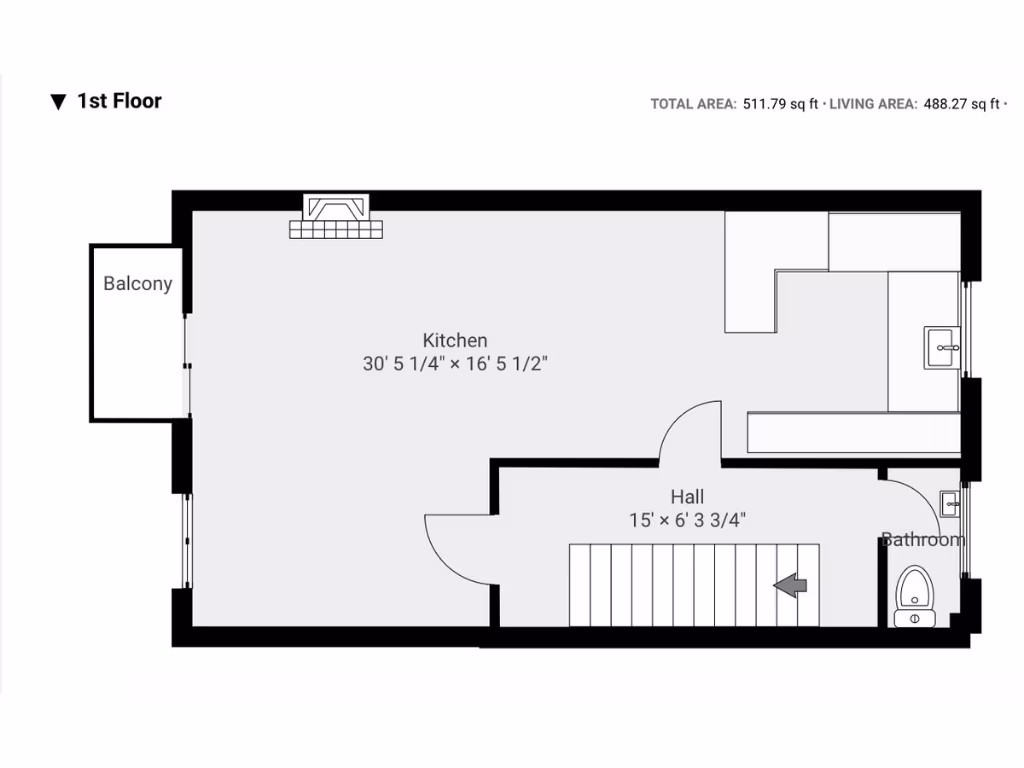
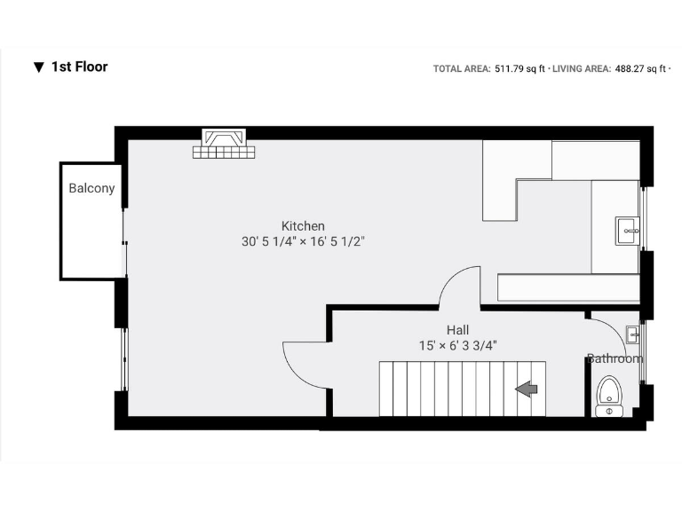
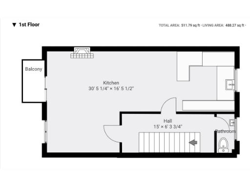
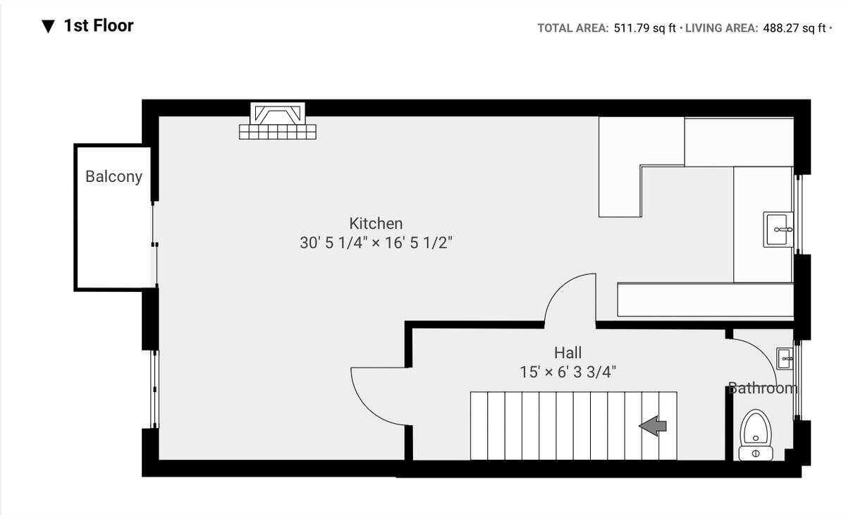
Recently fitted kitchen with integrated modern appliances
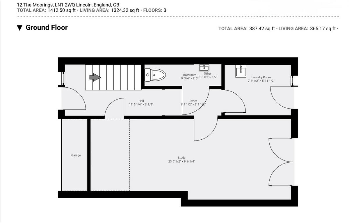
Ground-floor office/guest suite with en-suite conversion
West-facing landscaped garden with porcelain patio
Double-width block-paved driveway and off-street parking
Situated in 24/7 gated community with low local crime
High flood risk — specialist insurance and mitigation advised
Leasehold tenure (approx. 975 years remaining)
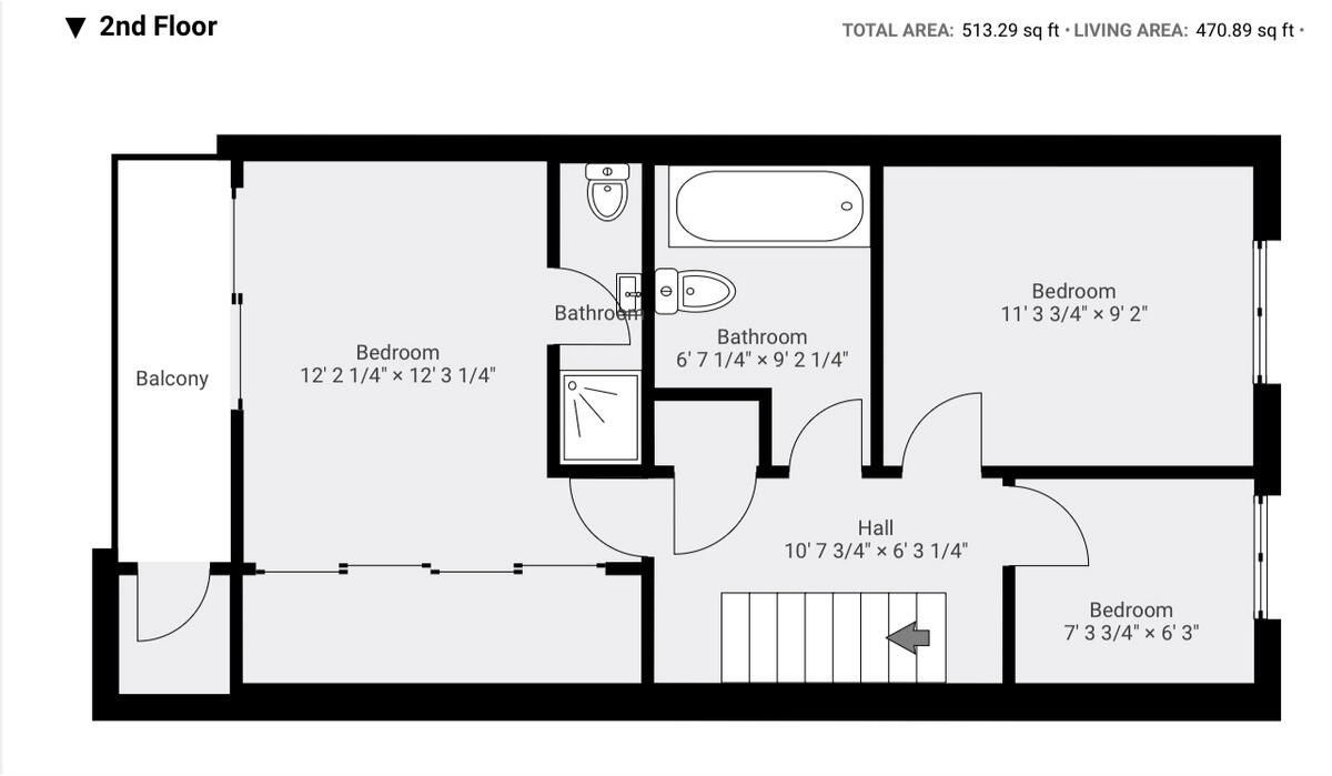
This four-bedroom, three-bathroom townhouse occupies a rare waterfront position within Burton Waters’ gated marina community. Bright, modern living spaces include a recently fitted kitchen and first-floor balcony with sweeping open-water views — ideal for family mornings or relaxed entertaining. The landscaped, west-facing rear garden steps down to a private mooring for small boats and watersports.
The house has been thoughtfully reconfigured: part of the original garage now serves as a home office or self-contained ground-floor bedroom with en-suite, giving flexible living options for guests, multigenerational use, or remote work. Practical features include a block-paved double-width driveway, double glazing, upgraded bathrooms, and fast broadband — useful for families and professionals.
Important practical notes: the property is leasehold (approximately 975 years remaining) and lies in a high flood-risk area; prospective buyers should seek specialist insurance and flood-prevention advice. The development is secure with 24/7 gated access, low local crime, and nearby amenities — restaurants, bars and shops are a five-minute walk.
Set four miles from historic Lincoln, this home suits buyers seeking a waterside lifestyle with flexible accommodation: a full-time family home, a lock-up-and-leave base, or a weekend retreat. The townhouse was built in the early 2000s and presents a largely low-maintenance package, though waterside living carries ongoing management and insurance considerations.
4 bedroom town house for sale in Marine Approach, Burton Waters, LN1 — £325,000 • 4 bed • 3 bath • 1507 ft²
3 bedroom town house for sale in The Quays, Burton Waters, Lincoln, LN1 — £340,000 • 3 bed • 2 bath • 864 ft²
4 bedroom town house for sale in Marine Walk, Burton Waters, Lincoln, LN1 — £359,500 • 4 bed • 3 bath • 1400 ft²
2 bedroom terraced house for sale in Burton Waters, Lincoln, LN1 — £230,000 • 2 bed • 1 bath • 845 ft²
3 bedroom semi-detached house for sale in Park Lane, Burton Waters, Lincoln, Lincolnshire, LN1 — £495,000 • 3 bed • 2 bath • 1850 ft²
4 bedroom town house for sale in Park Lane, Burton Waters, Lincoln, LN1 — £375,000 • 4 bed • 3 bath • 1484 ft²


































































































