Characterful family home near station and good schools.
Victorian period features: bay windows, high ceilings, original fireplaces
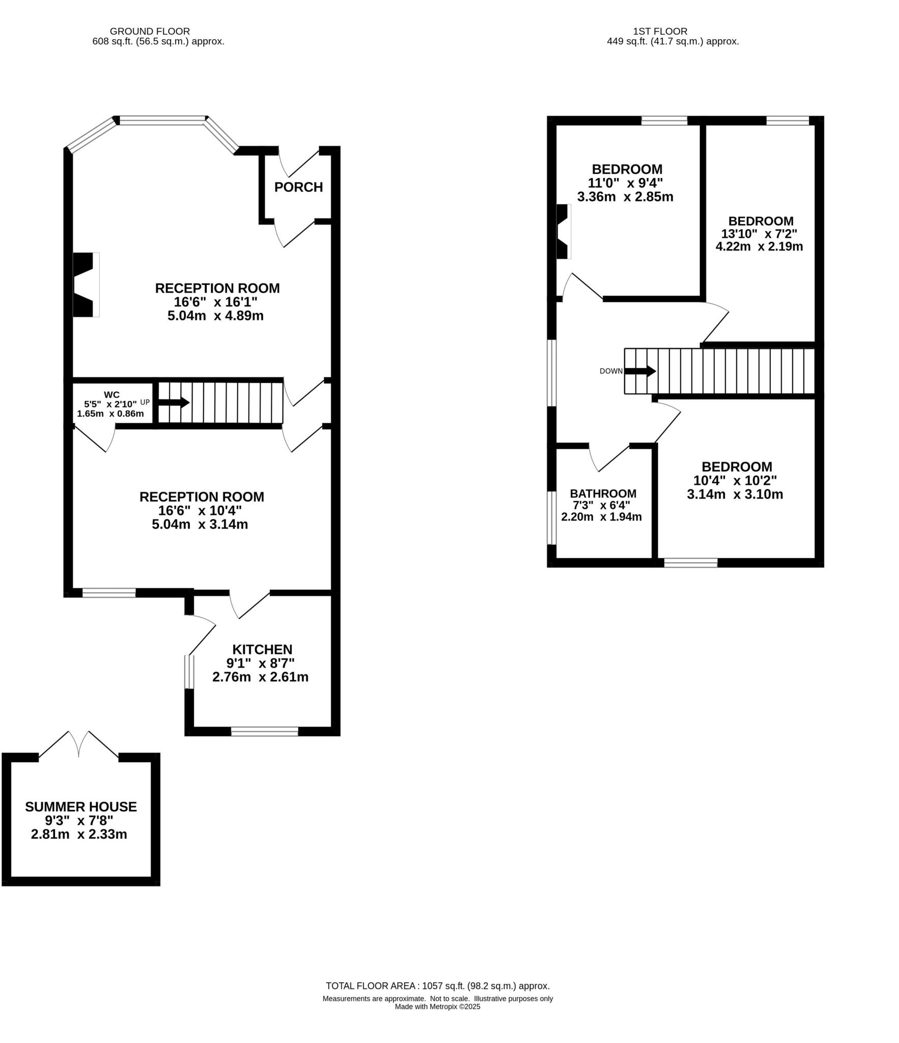
Three bedrooms with two reception rooms and fitted kitchen
Stylish bathroom with free‑standing bath; downstairs WC
Low‑maintenance rear garden, deck and detached summerhouse
Off‑street parking to the front of the property
Leasehold with long lease remaining (866 years)
Electric storage heaters; consider heating upgrade for efficiency
Slow broadband; cavity walls assumed uninsulated (upgrades advised)
This attractive Victorian semi-detached home combines period character with practical family living. High ceilings, bay windows and original fireplaces create a warm, characterful interior across three bedrooms and two reception rooms.
The fitted kitchen, stylish bathroom with free‑standing bath and downstairs WC support everyday family routines. Outside, off‑street parking and a low‑maintenance rear garden with decking and a detached summerhouse add usable outdoor space without heavy upkeep.
Be aware of a few practical considerations: the property is leasehold (long lease remaining, 866 years), heated by electric storage heaters and shows signs of uninsulated cavity walls (assumed) — upgrading insulation and heating would improve comfort and running costs. Broadband speeds are slow in the area.
Located off the beaten track in a very affluent, white suburban community, the house sits close to Woodley station and a range of good local schools and amenities, making it well suited to families seeking period charm with commuter links.
3 bedroom semi-detached house for sale in Kennerley Road, Davenport, SK2 — £435,000 • 3 bed • 2 bath • 1708 ft²
3 bedroom semi-detached house for sale in Mile End Lane, Stockport, Greater Manchester, SK2 — £375,000 • 3 bed • 1 bath • 962 ft²
3 bedroom semi-detached house for sale in Sherwood Road, Woodley, SK6 — £275,000 • 3 bed • 2 bath • 851 ft²
3 bedroom semi-detached house for sale in Islington Road, Great Moor, SK2 — £315,000 • 3 bed • 2 bath • 913 ft²
3 bedroom semi-detached house for sale in Linnet Close, Stockport, Cheshire, SK2 5JP, SK2 — £290,000 • 3 bed • 1 bath • 814 ft²
3 bedroom semi-detached house for sale in Werneth Road, Woodley, SK6 — £320,000 • 3 bed • 1 bath • 1284 ft²










































































