WF6 2LB - 3 bed extended three bed bungalow in Normanton, Pontefract…

View on Property Piper

3 bedroom semi-detached bungalow for sale in Altofts Lodge Drive, Altofts, WF6

Summary - 49, ALTOFTS LODGE DRIVE, NORMANTON WF6 2LB

3 bed 1 bath Semi-Detached Bungalow

Spacious kitchen-diner, garden room and driveway — ideal for family living or downsizing.
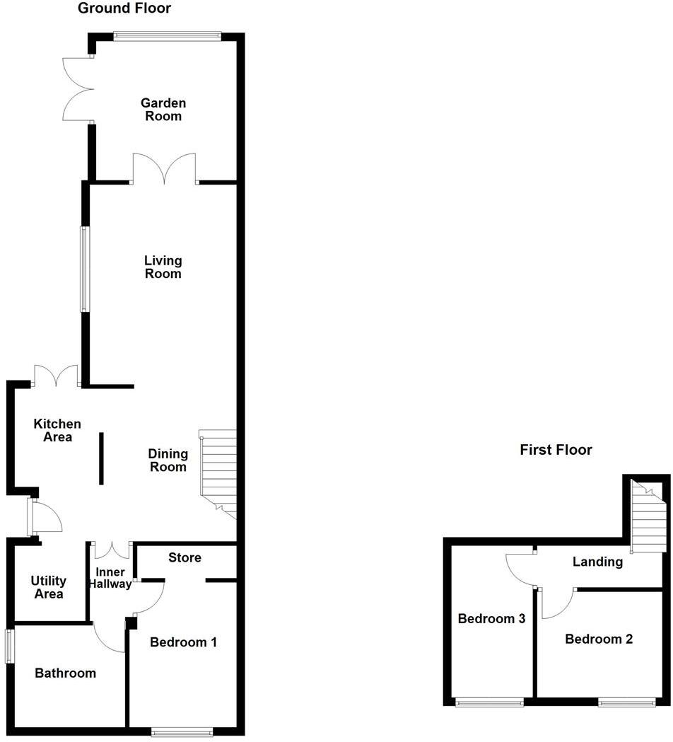
Three-bedroom semi-detached dormer bungalow with extended accommodation
This extended three-bedroom semi-detached dormer bungalow offers generous, well-arranged accommodation across ground and first floors. The open-plan kitchen-diner is the heart of the home, with bespoke units, a utility area and oak stairs leading to two first-floor bedrooms. A spacious living room with a multifuel burner flows into a bright garden room that opens onto a low-maintenance, fully enclosed rear garden and patio — ideal for outdoor dining and family use. A large 20ft x 8ft wooden shed adds useful storage.

Practical features include a newly fitted boiler, double glazing and a Block-paved driveway providing convenient off-street parking. The property sits on a small plot but benefits from a private rear aspect that backs onto fields, making it attractive for families with dogs or buyers seeking a quieter street within easy reach of local shops, schools and transport links to Normanton and Castleford.

Buyers should note this home has a single house bathroom and modest first-floor bedroom sizes; bedroom two in particular is compact. The house dates from the 1930s–1940s and external cavity walls are recorded with no known added insulation (assumed), which may be a consideration for buyers wanting to improve thermal performance. Overall the EPC is C69 and the tenure is freehold.

This property will suit buyers seeking a family home with flexible reception space or those looking to downsize without compromising on living space. Early viewing is recommended to appreciate the living flow, outdoor space and practical parking this bungalow offers.

Property Details

Brochure Descriptions

Image Descriptions

Floorplan Description

Rooms

Textual Property Features

Target Audience

AI Tags

Detected Visual Features

EPC Details

Nearby Schools

Nearest Bars And Restaurants

,,,,}

Nearest General Shops

,,}

Nearest Grocery shops

,,}

Nearest Supermarkets

,,}

Nearest Religious buildings

,,}

Nearest Medical buildings

,,,}

Nearest Airports

}

Nearest Leisure Facilities

,,,,}

Nearest Tourist attractions

,,}

Nearest Train stations

,,,,}

Nearest Bus stations and stops

,,,,}

Nearest Hotels

,,}

Tags

Local Market Stats

AirBnB Data

Similar Properties

Meta

High Res Images

Compatible Images

Low res Images

Thumbnails

Raw Images

High Res Floorplan Images

Compatible Floorplan Images

Low res Floorplan Images

FloorplanImages Thumbnail

Raw Floorplan Images