Character cottage with garage potential, off-street parking and private garden in Mutford village..
Detached period cottage dating from 1800
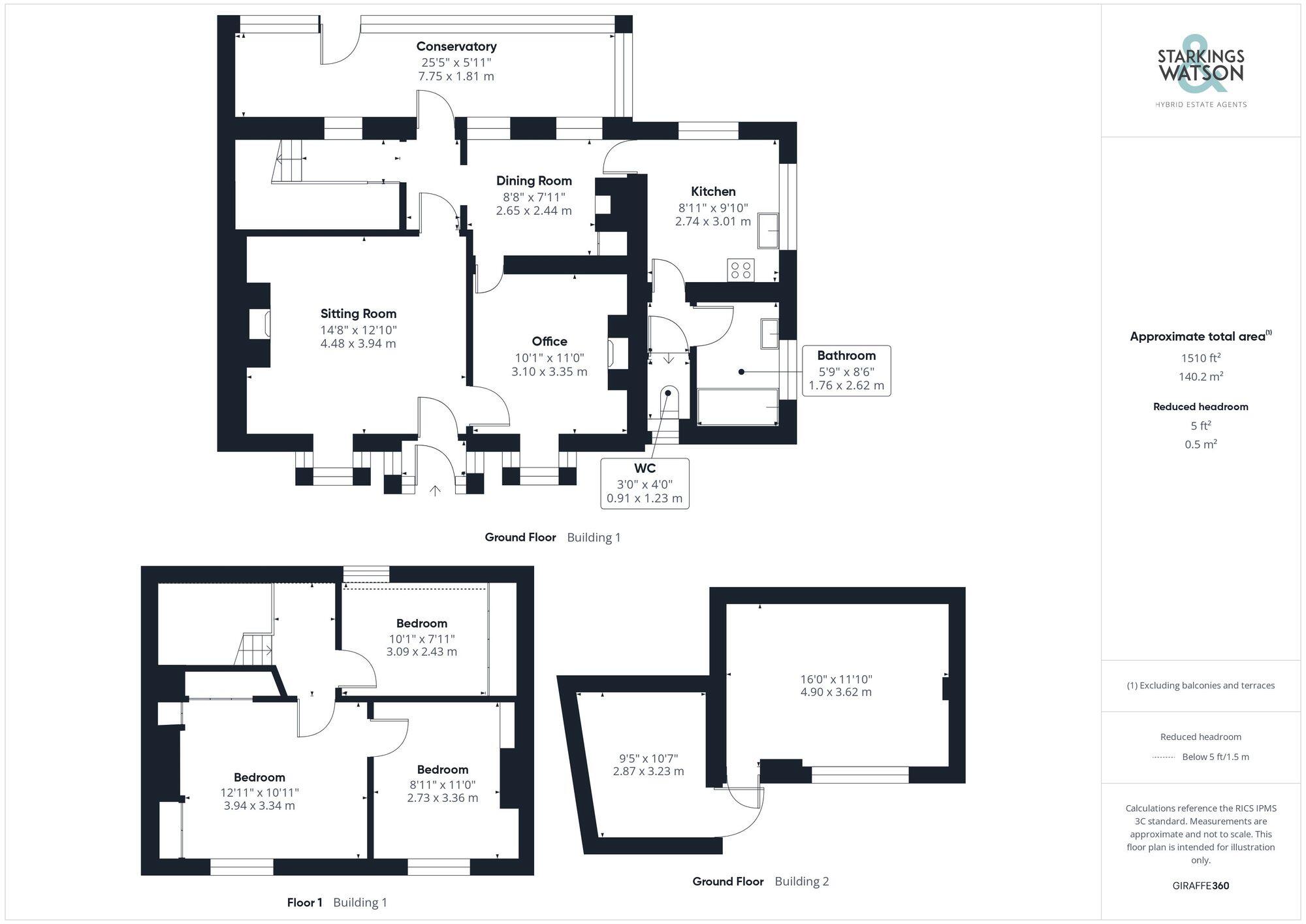
Three reception rooms plus conservatory
Separate kitchen/breakfast room
Three bedrooms; family bathroom and separate W/C
Off-street block-paved parking for several vehicles
Garage and powered workshop - conversion potential (stp)
Solid brick walls likely uninsulated; requires modernisation
Oil-fired boiler; EPC rating E
Dating from the 1800s, this detached former public house sits centrally in Mutford village and offers generous living space across 1,509 sq ft. The house retains period character — exposed beams, bay windows and fireplaces — and delivers three reception rooms plus a bright conservatory for flexible family living.
The ground floor includes a separate kitchen/breakfast room, study and a versatile layout that will suit families or those working from home. Three first-floor bedrooms provide comfortable sleeping accommodation; fitted storage is already in place. Outside there is off-street parking for several vehicles, a private enclosed rear garden and a garage with powered workshop offering conversion potential (stp).
Buyers should note the property requires updating in places: decor and fittings are dated, walls are solid brick (likely no wall insulation), and the heating is oil-fired with an EPC rating of E. The garage/workshop conversion would need planning permission and any works to modernise heating or insulation should be factored into budgets.
Overall this is a characterful, spacious village home with genuine scope to modernise and extend living space (subject to consents). It will suit families seeking a central village location or buyers after a period property with scope for improvement and creative adaptation.
3 bedroom detached house for sale in Mill Road, Mutford, NR34 — £390,000 • 3 bed • 2 bath • 1215 ft²
3 bedroom detached house for sale in Mill Road, Mutford, Beccles, Suffolk, NR34 — £390,000 • 3 bed • 2 bath • 1312 ft²
3 bedroom end of terrace house for sale in Newsons Avenue, Mutford, Beccles, NR34 — £195,000 • 3 bed • 2 bath • 726 ft²
3 bedroom house for sale in Mill Road, Mutford, Beccles, NR34 — £250,000 • 3 bed • 1 bath • 958 ft²
4 bedroom detached bungalow for sale in Hulver Road, Mutford, Beccles, NR34 — £625,000 • 4 bed • 4 bath • 2950 ft²
3 bedroom detached house for sale in Mill Road, Mutford, NR34 — £350,000 • 3 bed • 1 bath • 991 ft²










































































































































