Three-bedroom semi-detached home with garden and strong scope to modernise.
Private driveway with single integral garage
Set on a private driveway with an integral garage, this semi-detached dormer bungalow offers a flexible three-bedroom layout across two levels. The ground floor presents a welcoming hall, bright living/dining room, separate family room (or ground-floor bedroom) and a practical kitchen/breakfast room with rear porch. Upstairs are two well-lit bedrooms and a spacious family bathroom. The house totals about 940 sq ft and sits on a decent plot with a secluded lawned rear garden framed by mature shrubs.
The property has clear scope for modernisation and value enhancement: interiors display dated fittings and décor, so updating the kitchen, bathrooms and finishes will unlock considerable potential. The mid-century brick exterior and good kerb appeal mean improvements could be phased, and there may be scope to extend or reconfigure subject to planning.
Location is a key strength. Holmer Green provides village amenities, highly regarded local schools and easy access into High Wycombe, Amersham and Beaconsfield for rail links to London. Broadband speeds are fast, crime is low and the area is affluent — attractive for families or buyers seeking a quieter commuter base.
Practical points: the property is freehold, around 940 sq ft, Council Tax band E and stands in a no flood-risk area. Buyers should note the home will benefit from modernisation and should budget accordingly for updating and any desired extensions.
3 bedroom bungalow for sale in Hogg Lane, Holmer Green, Buckinghamshire, HP15 — £625,000 • 3 bed • 1 bath • 1012 ft²
3 bedroom bungalow for sale in Browns Road, Holmer Green, High Wycombe, Buckinghamshire, HP15 — £600,000 • 3 bed • 1 bath • 940 ft²
3 bedroom bungalow for sale in Sanctuary Road, Hazlemere, Buckinghamshire, HP15 — £625,000 • 3 bed • 2 bath • 1143 ft²
3 bedroom detached house for sale in Shepherds Fold, Holmer Green, High Wycombe, Buckinghamshire, HP15 — £700,000 • 3 bed • 2 bath • 1563 ft²
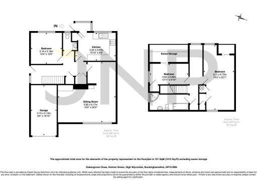
3 bedroom bungalow for sale in Oakengrove Close, Holmer Green, High Wycombe, Buckinghamshire, HP15 — £550,000 • 3 bed • 1 bath • 939 ft²
2 bedroom bungalow for sale in Orchard Way, Holmer Green, High Wycombe, Buckinghamshire, HP15 — £550,000 • 2 bed • 1 bath • 754 ft²














































