Single-level living on a generous plot with strong renovation potential.
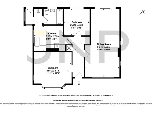
Detached two-bedroom bungalow on a large, secluded plot
Through lounge/diner with patio doors to generous rear garden
Double-length garage plus side driveway for multiple vehicles
Two double bedrooms; single bathroom only
Requires full modernisation throughout; cosmetic and systems work likely
Slow broadband speeds; consider for home working needs
EPC band D and Council Tax band E (above average)
Freehold and offered chain free
This detached two-bedroom bungalow offers a single-level layout ideal for those looking to downsize without compromise. A spacious through lounge and dining room opens via sliding patio doors onto a generous, well-screened rear garden — a peaceful outdoor space with lawn, patio and timber shed.
The property sits on a large plot with a side driveway and a double-length garage, providing substantial parking and storage. Two well-proportioned double bedrooms and a rear kitchen with lobby give straightforward, practical accommodation that can be adapted to suit a visitor room or home office.
The bungalow requires modernisation throughout, presenting a clear opportunity to personalise finishes and add value. Practical considerations include slow broadband speeds, an EPC band D, and Council Tax band E; these are factual conditions that buyers should factor into plans and budgets.
Sold freehold and offered with no onward chain, the home will suit downsizers or buyers seeking a renovation project in a desirable Holmer Green location close to good schools, low local crime and excellent mobile signal. The plot size and detached form make this a rare single-storey opportunity with scope for improvement.
3 bedroom bungalow for sale in Hogg Lane, Holmer Green, Buckinghamshire, HP15 — £625,000 • 3 bed • 1 bath • 1012 ft²
3 bedroom bungalow for sale in Browns Road, Holmer Green, High Wycombe, Buckinghamshire, HP15 — £600,000 • 3 bed • 1 bath • 940 ft²
3 bedroom bungalow for sale in Oakengrove Close, Holmer Green, High Wycombe, Buckinghamshire, HP15 — £550,000 • 3 bed • 1 bath • 939 ft²
2 bedroom detached bungalow for sale in The Rosary, Holmer Green, HP15 — £499,950 • 2 bed • 1 bath • 770 ft²
1 bedroom semi-detached bungalow for sale in Earle Howe Road, Holmer Green (no Chain), HP15 — £260,000 • 1 bed • 1 bath • 623 ft²
3 bedroom bungalow for sale in Sanctuary Road, Hazlemere, Buckinghamshire, HP15 — £625,000 • 3 bed • 2 bath • 1143 ft²










































