Chain-free, large rear garden and short walk to Silver Street station.
Chain-free three-bedroom Victorian mid-terrace with large rear garden
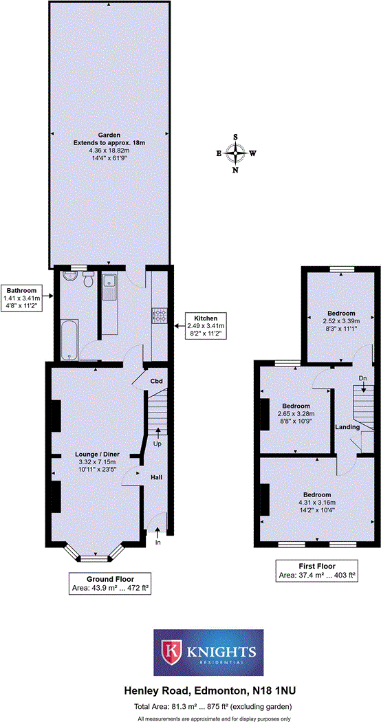
This mid-terrace Victorian property on Henley Road is offered chain-free and ready for a buyer wanting space and potential close to transport. The house has three double bedrooms, a through lounge, a spacious kitchen and a large rear garden — practical benefits for everyday family life or rental income.
The property needs modernisation throughout and exterior upkeep; original solid-brick walls likely lack cavity insulation and the double glazing appears to be pre-2002. The single ground-floor bathroom and an EPC rating of D reflect current condition and running-cost considerations.
Location is a strong selling point: it’s within walking distance of Silver Street station, close to Pymmes Park, and near several Ofsted-rated “Good” schools including The Latymer School. Broadband and mobile signal are strong and council tax is described as affordable.
There is potential to develop further subject to planning permission (STPP), offering scope to add value for a first-time buyer or investor prepared to renovate. Be aware the wider area has higher deprivation levels and the plot is relatively small, so weigh location benefits against refurbishment costs.
3 bedroom house for sale in Henley Road, London, N18 — £445,000 • 3 bed • 1 bath • 868 ft²
3 bedroom house for sale in Lopen Road, London, N18 — £375,000 • 3 bed • 1 bath • 927 ft²
3 bedroom house for sale in Victoria Road, London, N18 — £625,000 • 3 bed • 2 bath • 1189 ft²
3 bedroom terraced house for sale in Pretoria Road North, Edmonton Tottenham , London, N18 — £440,000 • 3 bed • 1 bath • 1001 ft²
3 bedroom house for sale in York Road, London, N18 — £460,000 • 3 bed • 1 bath • 928 ft²
3 bedroom house for sale in Hawthorn Road, London, N18 — £450,000 • 3 bed • 1 bath • 967 ft²






































































