Three-bed Victorian terrace opposite Pymmes Park — ready to move in with renovation potential..
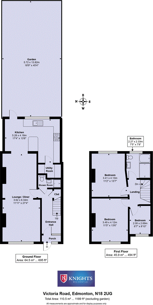
Three bedrooms, two bathrooms—practical family layout
Extended contemporary kitchen with integrated appliances
Private rear garden with side/rear access
Opposite Pymmes Park; short walk to Silver Street station
Freehold; approx. 1,189 sq ft, mid-terrace 1930s build
EPC D and likely no wall insulation; further upgrades possible
High local crime rate and very deprived area — consider safety
Small plot size and moderate council tax (Band D)
A flexible three-bedroom mid-terrace on Victoria Road, directly opposite Pymmes Park. The house offers comfortable family living across two floors with a through lounge, extended contemporary kitchen, and a private rear garden with rear access — attractive for families and buy-to-let buyers seeking solid rental potential.
Practical benefits include two bathrooms (ground-floor shower and first-floor family bathroom), double glazing, gas central heating and fast broadband. The property is freehold, spans around 1,189 sq ft and is ready to move into while offering scope for further improvement or personalization.
Important considerations: this is an older 1930s solid-brick build likely without wall insulation, EPC rating D, and it sits in an area with high crime and marked deprivation. The plot is small and the council tax band is D. Buyers seeking a quieter, high‑amenity suburb should weigh these local factors against the property's strong transport links and park-side location.
3 bedroom house for sale in Henley Road, London, N18 — £445,000 • 3 bed • 1 bath • 868 ft²
3 bedroom terraced house for sale in Warwick Road, Edmonton, N18 — £440,000 • 3 bed • 1 bath • 1032 ft²
3 bedroom terraced house for sale in Haselbury Road, Edmonton, N18 — £415,000 • 3 bed • 1 bath • 835 ft²
3 bedroom house for sale in Alston Road, London, N18 — £399,995 • 3 bed • 1 bath • 364 ft²
2 bedroom house for sale in Lopen Road, London, N18 — £450,000 • 2 bed • 2 bath • 1067 ft²
3 bedroom house for sale in Bromley Road, London, N18 — £540,000 • 3 bed • 1 bath • 1107 ft²






































































































