Second-floor home near Kilburn Park tube and communal gardens.
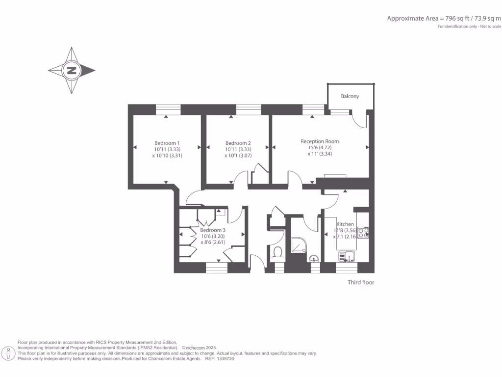
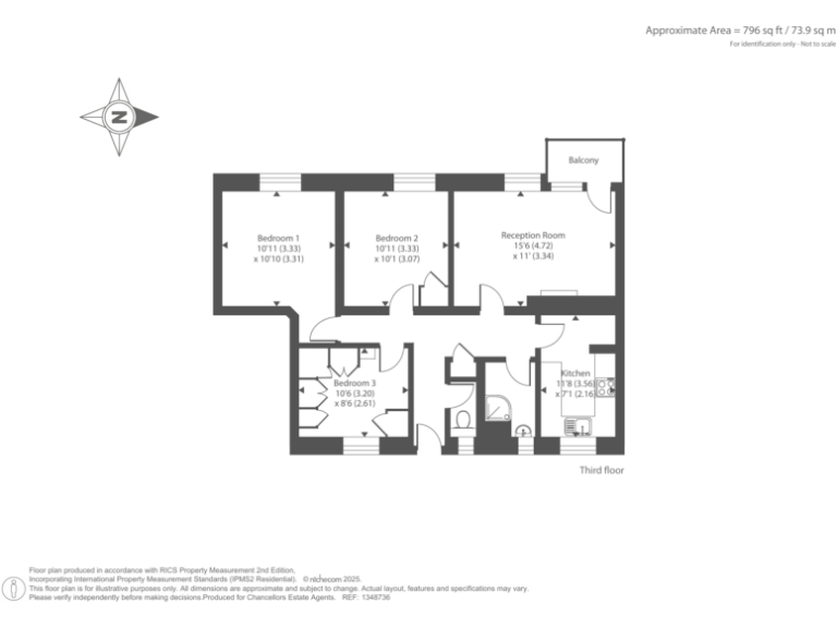
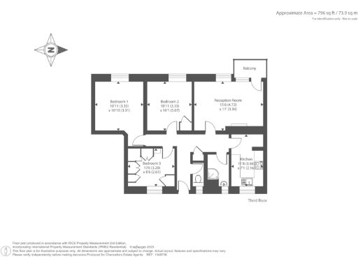
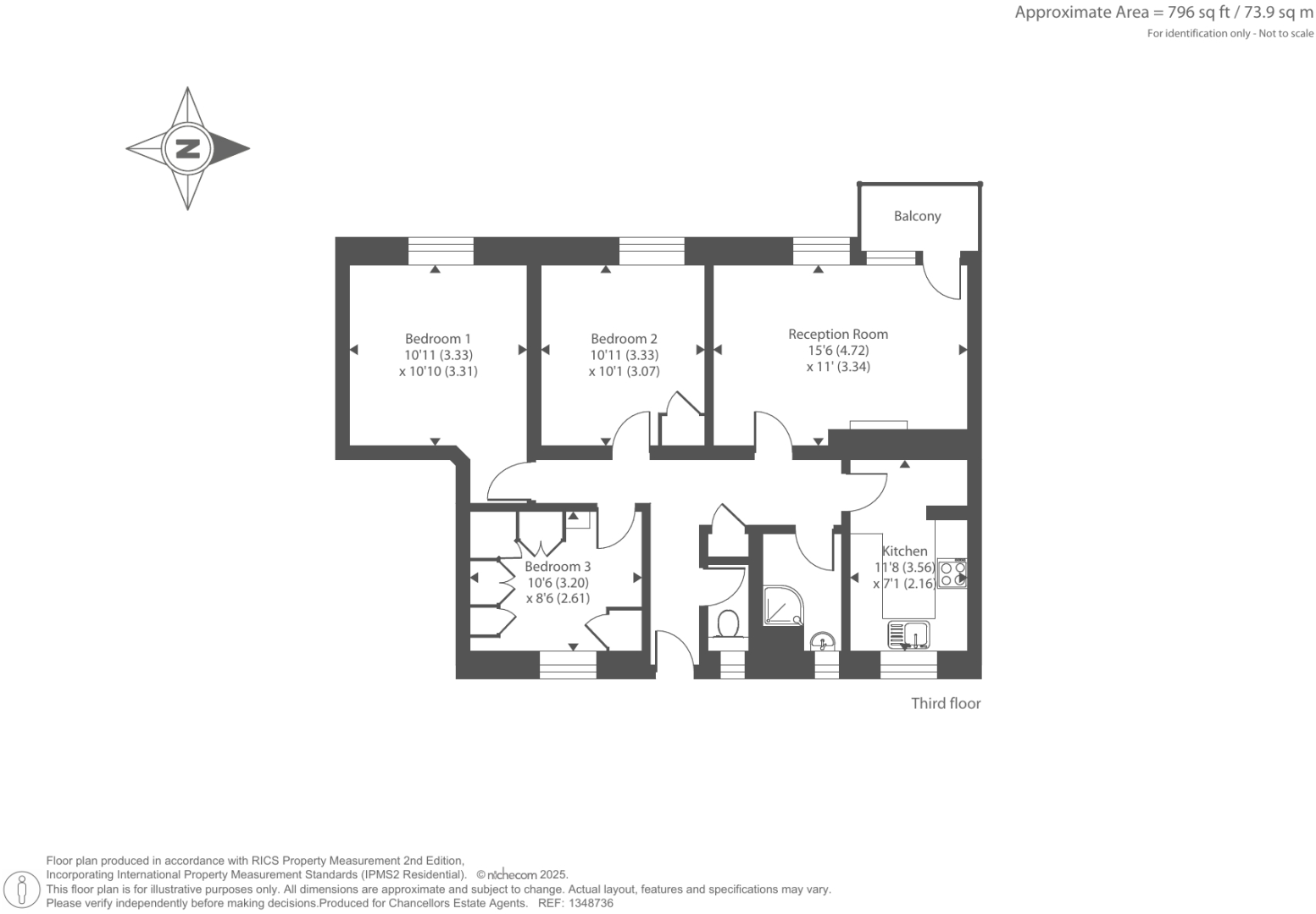
Three double bedrooms and bright living room with balcony
This second-floor flat in Marrick House offers three double bedrooms and a private balcony, ideal for families seeking space close to central transport. The apartment benefits from lift access, communal gardens and a separate kitchen, with bright living rooms and large windows that bring generous natural light into the main reception.
Practical details matter: the property is leasehold with approximately 88–89 years remaining (125-year lease from 19/06/1989), and the building dates from the 1930s–1940s with solid brick walls likely without cavity insulation. Heating is mains gas via a boiler and radiators; windows are double glazed though install date is unknown. Broadband speeds are fast and mobile signal is excellent — good for working from home.
Location is a strong draw: Kilburn Park Tube is nearby and the neighbourhood is inner-city cosmopolitan with many local amenities including shops, cafés, healthcare and green space. Schools nearby include good and outstanding options for primary and secondary ages, making the area suitable for families. Buyers should note the wider area shows some deprivation metrics and average local crime levels.
Important verifications are recommended before viewing: records supplied conflict on bathroom count (sources list either one or two bathrooms), and the limited remaining lease term will affect mortgage and resale considerations. The flat presents an attractive, well-located family home with potential for updating where desired.
2 bedroom flat for sale in Kilburn Park Road, Kilburn Park, NW6 — £575,000 • 2 bed • 2 bath • 749 ft²
1 bedroom flat for sale in Mortimer Crescent, Hampstead, NW6 — £475,000 • 1 bed • 1 bath • 526 ft²
2 bedroom flat for sale in Cambridge Avenue, London, NW6 — £470,000 • 2 bed • 1 bath • 691 ft²
3 bedroom flat for sale in Mortimer Crescent, Maida Vale, London, NW6 — £575,000 • 3 bed • 2 bath • 787 ft²
2 bedroom flat for sale in Willesden Lane, London, NW6 — £495,000 • 2 bed • 2 bath • 735 ft²
3 bedroom flat for sale in Shoot Up Hill, Cricklewood, London, NW2 — £725,000 • 3 bed • 2 bath • 1178 ft²














































































