Modern five-bedroom detached family home with en-suites, garden and NHBC protection.
5 bedroom detached new build with 10-year NHBC warranty
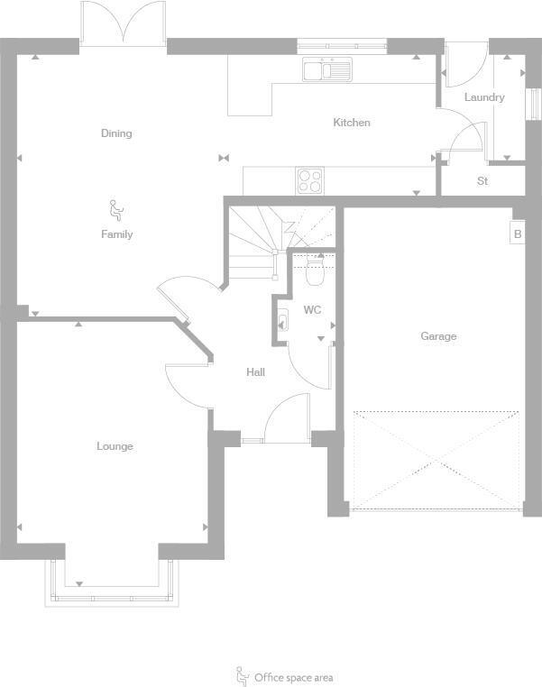
Open-plan kitchen, family and dining area with French doors to garden
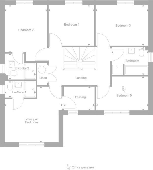
Principal bedroom with dressing room and en-suite; bedroom 2 also en-suite
Extended single garage and garden; parking and storage provision
Energy-efficient design with solar panels; lower running costs expected
Service charge £69 per year; freehold tenure (Plot information supplied)
Slow broadband speeds in the area — may affect home working
Council tax band F — relatively expensive ongoing cost
This five-bedroom detached new build (The Thetford) is designed for family living with generous flexible space across two floors. The ground floor features a bay-fronted lounge and an L-shaped family/dining area that flows into an ergonomically designed kitchen and separate laundry — French doors open onto the rear garden for easy indoor-outdoor living and play.
Sleeping accommodation includes a principal bedroom with dedicated dressing room and en-suite, a second bedroom with en-suite, plus three further bedrooms and a family bathroom. The layout suits families needing home working space or a playroom, and the approximate 15-room count gives scope for flexible use.
Built with energy-efficient measures and covered by a 10-year NHBC warranty, the home benefits from modern construction and lower running costs. An extended single garage provides parking and storage; the plot is freehold with a modest annual service charge of £69.
Notable practical points: broadband speeds in the area are reported slow, and the property sits in council tax band F which will increase annual costs. Promotional purchase incentives (assisted move, deposit paid offers) apply only to selected homes and carry terms. A £500 reservation fee applies.
5 bedroom detached house for sale in Off Baldovan Road,
Strathmartine,
Angus,
DD3 0PG, DD3 — £382,000 • 5 bed • 1 bath
4 bedroom detached house for sale in Off Baldovan Road,
Strathmartine,
Angus,
DD3 0PG, DD3 — £359,000 • 4 bed • 1 bath
4 bedroom detached house for sale in Off Baldovan Road,
Strathmartine,
Angus,
DD3 0PG, DD3 — £345,000 • 4 bed • 1 bath
4 bedroom detached house for sale in Off Baldovan Road,
Strathmartine,
Angus,
DD3 0PG, DD3 — £315,000 • 4 bed • 1 bath
4 bedroom detached house for sale in Off Baldovan Road,
Strathmartine,
Angus,
DD3 0PG, DD3 — £345,000 • 4 bed • 1 bath
5 bedroom detached house for sale in Off Baldovan Road,
Strathmartine,
Angus,
DD3 0PG, DD3 — £375,000 • 5 bed • 1 bath


















































































































































































