Modern family home with garden, two en-suites and garage in a quiet new development.
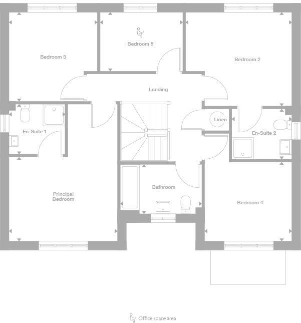
- Five-bedroom detached new build with 10-year NHBC warranty
- Open-plan kitchen/family/dining area with French doors to garden
- Principal bedroom plus second bedroom both have en-suites
- Separate lounge with traditional bay window and bright stairwell
- Extended single garage and driveway parking included
- Broadband speeds reported as slow locally
- Annual service charge £69; council tax band listed as expensive
- Reservation fee £500; selected purchase incentives available
This five-bedroom new-build detached house offers spacious family living across a traditional two-storey layout. The ground floor features a large open-plan kitchen, dining and family area with French doors to the garden, plus a separate lounge with a bay window. Two bedrooms have en-suite facilities and there is a dedicated laundry room — practical for busy households.
Built with a 10-year NHBC warranty and finished to contemporary standards, the home includes an extended single garage and driveway parking. The plot sits within a quiet modern development in a rural white-collar area, offering good mobile signal and a pleasant suburban setting well suited to families seeking space and low maintenance exteriors.
Buyers should note a few practical considerations: broadband speeds in the area are reported as slow, and council tax is rated as expensive. There is a modest annual service charge of £69. The property is sold as a new build freehold (plot 74) with a £500 reservation fee and comes with optional purchase incentives on selected homes.
Overall this property will suit growing families wanting modern layouts, en-suite convenience and covered parking, while buyers who work from home or stream heavily should check broadband availability before committing.
5 bedroom detached house for sale in Off Baldovan Road,
Strathmartine,
Angus,
DD3 0PG, DD3 — £375,000 • 5 bed • 1 bath
5 bedroom detached house for sale in Off Baldovan Road,
Strathmartine,
Angus,
DD3 0PG, DD3 — £412,000 • 5 bed • 1 bath
4 bedroom detached house for sale in Off Baldovan Road,
Strathmartine,
Angus,
DD3 0PG, DD3 — £345,000 • 4 bed • 1 bath
4 bedroom detached house for sale in Off Baldovan Road,
Strathmartine,
Angus,
DD3 0PG, DD3 — £359,000 • 4 bed • 1 bath
4 bedroom detached house for sale in Off Baldovan Road,
Strathmartine,
Angus,
DD3 0PG, DD3 — £365,000 • 4 bed • 1 bath
4 bedroom detached house for sale in Off Baldovan Road,
Strathmartine,
Angus,
DD3 0PG, DD3 — £345,000 • 4 bed • 1 bath


































































































































































































