Entry-price home with good transport and nearby schools.
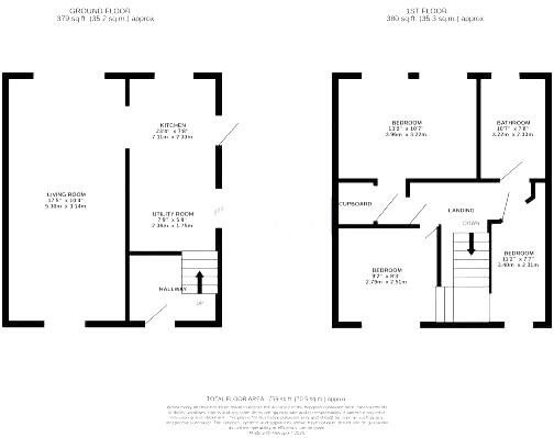
3 bedrooms, living room, kitchen, utility and updated family bathroom
A compact three-bedroom semi-detached home on Stanks Lane North, offered freehold and priced for buyers seeking an affordable entry into Leeds. The layout across two storeys provides a living room, kitchen, utility room and a recently updated family bathroom, with three bedrooms upstairs and a private rear garden. Broadband and mobile signal are strong, and the property sits within easy reach of local shops, bus routes and several good-rated schools.
The house is modest in size (approximately 750 sq ft) and sits on a decent-sized plot that benefits from a front and rear garden — the rear requires some maintenance. Built in the mid-20th century with filled cavity walls and double glazing (installation date unknown), the property offers basic mains gas central heating via boiler and radiators. On-street parking is available but there is no private driveway.
Buyers should note material local considerations: the neighbourhood is classed as very deprived with high crime levels, and surrounding housing is predominantly hard-pressed rented terraces. There are also sale conditions: an exclusivity fee and separate processing fee are stated as part of the purchase process. Prospective purchasers are advised to arrange their own surveys and enquiries to confirm condition and services.
For first-time buyers or those seeking a renovation project with good transport links into Leeds, this house represents an affordable, practical option. The size and local context suit buyers who prioritise value, connectivity and the chance to personalise a home rather than those seeking extensive private outdoor space or a low-crime location.
3 bedroom semi-detached house for sale in Mill Green Place, Leeds, West Yorkshire, LS14 — £150,000 • 3 bed • 1 bath • 943 ft²
3 bedroom semi-detached house for sale in The Oval, Leeds, LS14 — £230,000 • 3 bed • 1 bath • 711 ft²
3 bedroom semi-detached house for sale in Primo Place, Leeds, LS8 — £240,000 • 3 bed • 1 bath
3 bedroom semi-detached house for sale in Cartmell Drive, Leeds, West Yorkshire, LS15 — £220,000 • 3 bed • 2 bath • 729 ft²
3 bedroom semi-detached house for sale in Hansby Avenue, Leeds, LS14 — £215,000 • 3 bed • 1 bath • 846 ft²
3 bedroom semi-detached house for sale in Queenswood Gardens, Leeds, LS6 — £260,000 • 3 bed • 1 bath • 915 ft²






























































































