Six acres and period charm for equestrian or smallholding living near Aberystwyth.
6 acres of private land suitable for smallholding or paddocks
Grade II listed—consent needed for most alterations or extensions
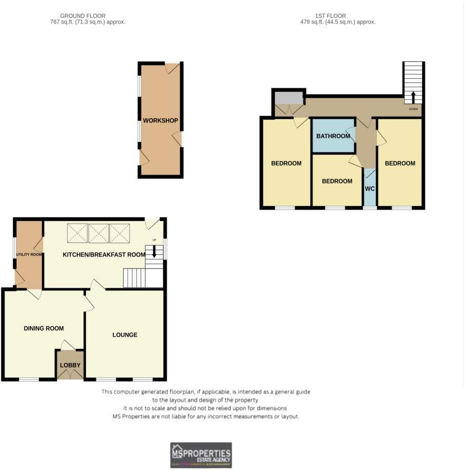
Three bedrooms, one bathroom in approximately 1,246 sq ft
Vaulted kitchen/breakfast room and gallery landing with character features
Large plot offers privacy and panoramic rural views
No flood risk; fast broadband but average mobile signal
Located ~9 miles from Aberystwyth—rural village setting
Local area classified as very deprived; remote community access limitations
Set on roughly six acres of private land, this Grade II listed link‑detached house offers genuine smallholding and equestrian potential close to Aberystwyth. The property blends traditional Victorian character—sash windows, exposed beams and a gabled porch—with generous living spaces, a vaulted kitchen/breakfast room and a gallery landing. The large plot provides scope for paddocks, grazing or a productive smallholding.
Practical realities are clear: the listed status restricts alterations and will require consent for many changes, which could complicate renovation or extension plans. The house has three bedrooms and one bathroom across about 1,246 sq ft, so buyers seeking more modern layout or additional bathrooms should factor in limitations and costs. Broadband is fast and there’s no flood risk, but the local area is remote with average mobile signal and a very deprived community profile.
This property suits buyers who value seclusion, land and rural lifestyle — equestrian enthusiasts, small‑scale farmers or those wanting a countryside retreat within a reasonable drive of Aberystwyth (about nine miles). Expect to invest time and budget into sensitive maintenance or updating within the constraints of listed‑building regulations; the rewards are considerable for the right buyer who wants character, space and complete privacy.
Detached house for sale in Bronant, SY23 — £700,000 • 1 bed • 1 bath • 1249 ft²
5 bedroom smallholding for sale in Llanafan , Aberystwyth, SY23 — £489,000 • 5 bed • 2 bath • 2369 ft²
3 bedroom detached house for sale in Ysbyty Ystwyth, Ystrad Meurig, Ceredigion, SY25 — £425,000 • 3 bed • 1 bath
3 bedroom detached house for sale in Bryn Villa, Ystrad Meurig, SY25 — £595,000 • 3 bed • 1 bath • 1098 ft²
4 bedroom detached house for sale in Lledrod, Aberystwyth, Ceredigion, SY23 — £700,000 • 4 bed • 1 bath • 1497 ft²
3 bedroom detached house for sale in Pontrhydygroes, Ystrad Meurig, Ceredigion, SY25 — £300,000 • 3 bed • 3 bath • 1005 ft²






























































