Private gardens, annexe potential and easy access to Berkhamsted.
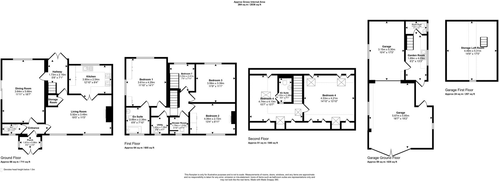
4 bedrooms and 3 reception rooms offering flexible family living
Two en-suite bathrooms plus separate family shower room
Large covered entertaining area and private front and rear gardens
Generous garage with potential to convert to annexe (subject to regs)
Potential to extend further, subject to planning permission (STPP)
Built 1930–1949 on solid brick walls; likely no wall insulation
EPC rated D — energy upgrades likely needed
Very slow broadband speeds; connectivity improvements required
Set on a quiet in-and-out road with just four neighbouring houses, this extended 1930s semi-detached home suits a growing family seeking private outdoor space and flexible living. The layout provides three reception rooms, four bedrooms and two ensuite bathrooms, arranged over multiple storeys for clear family zones and guest privacy.
The rear includes a large covered entertaining area and private gardens front and back, ideal for children, pets and year-round outdoor use. A generous garage sits to the side and could be converted into a self-contained annexe or home office subject to building regulations and planning — offering extra living space or potential income.
There is scope to enlarge the house further (potential to extend STPP) if you want to create more internal space. Practical considerations: the home sits on solid brick walls with no known insulation, has an EPC rating of D, and broadband speeds are very slow — buyers should factor in improvement costs for energy efficiency and connectivity.
Internally the house is well proportioned but overall floor area is modest (around 624 sq ft), so families should view to judge room sizes. Good local schools and easy driving access to Berkhamsted town and station make the location strong for school runs and commuting, while the large plot retains a countryside feel despite being close to town amenities.
4 bedroom house for sale in Lyme Avenue, Northchurch, Berkhamsted, Hertfordshire, HP4 — £675,000 • 4 bed • 2 bath • 1331 ft²
4 bedroom semi-detached house for sale in The Vale, Hawridge, HP5 — £795,000 • 4 bed • 3 bath • 2006 ft²
5 bedroom detached house for sale in Cross Oak Road, Berkhamsted, Hertfordshire HP4 — £1,750,000 • 5 bed • 3 bath • 2272 ft²
5 bedroom detached house for sale in Shootersway, Berkhamsted, HP4 — £1,795,000 • 5 bed • 2 bath • 3851 ft²
4 bedroom semi-detached house for sale in Ashley Drive, Penn, HP10 — £690,000 • 4 bed • 1 bath • 1465 ft²
4 bedroom detached house for sale in Torwood Close, Berkhamsted, Hertfordshire, HP4 — £1,265,000 • 4 bed • 2 bath • 2185 ft²










































































































































