Waterside new build with garage, gardens and sustainable heating.
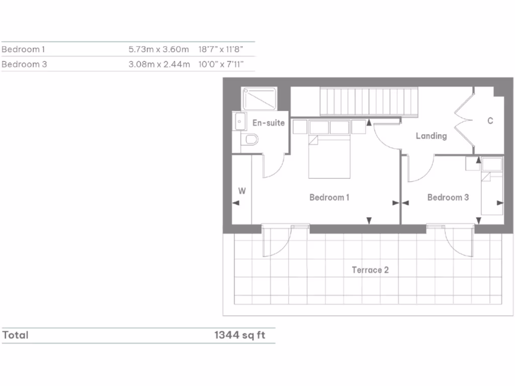
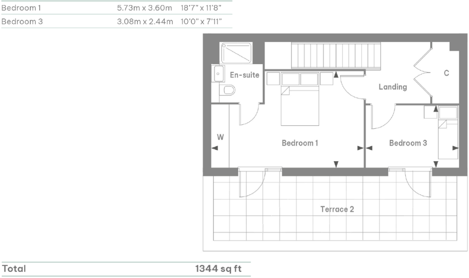
Three double bedrooms, principal with fitted wardrobe and en suite
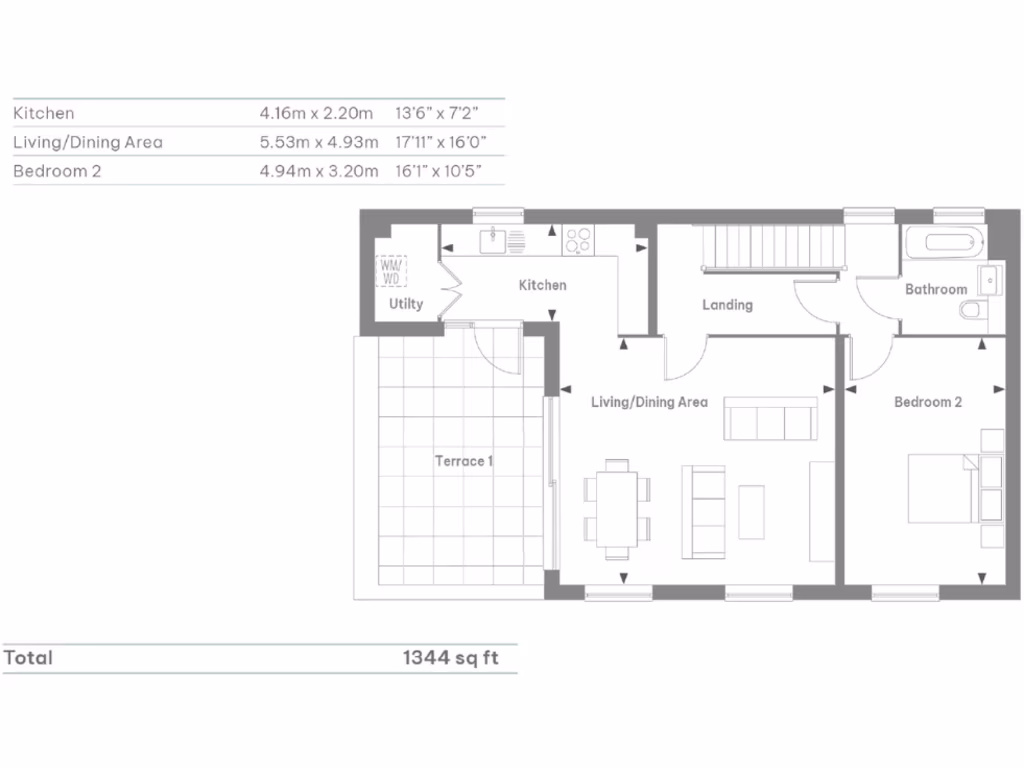
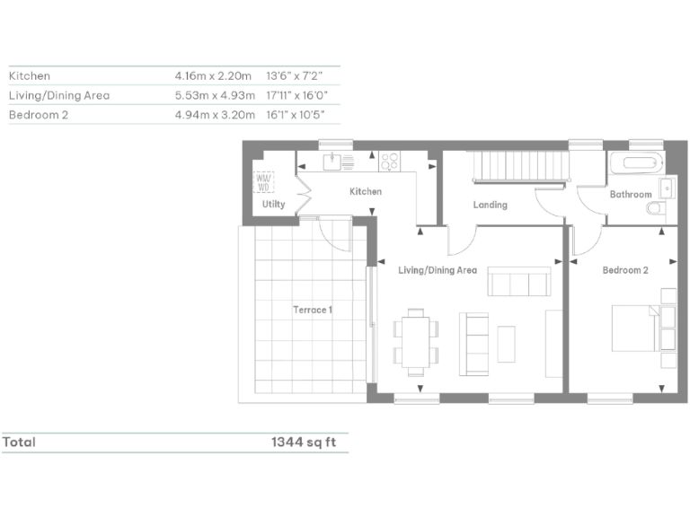
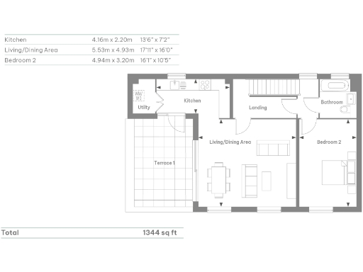
This contemporary three-bedroom end-of-terrace offers spacious, light-filled living across approximately 1,344 sq ft. Two terraces plus a private courtyard and an integral garage create flexible outdoor and storage options for family life and hobbies. The kitchen includes integrated Bosch appliances and a wine cooler, while the main bedroom benefits from a fitted wardrobe and en suite.
Built as part of a larger waterside community, the home is designed for low running costs with an air source heat pump, underfloor heating throughout, LED lighting and EV charging. The development includes new shops, cafés, schools, a health centre and a transport hub with regular buses to Waterbeach station and Cambridge city centre — under half an hour away. A dedicated A10 pedestrian, cycle and equestrian bridge is planned to open in spring 2026, improving direct links to Cambridge Science Park and regional colleges.
Practical protections include a 10-year Premier Guarantee plus a two-year Stonebond Customer Care warranty. The home is freehold and sold as a new build, so finish and fittings are modern and consistent throughout. Broadband speeds are average and local crime levels are described as average; these are worth considering if fast home working or low-crime neighbourhood priorities are critical to you.
This property will suit families seeking contemporary, low-maintenance living with strong transport links to Cambridge and a growing local community. Buyers should note the wider development is being delivered in phases and some community features and the bridge are still under construction, so neighbourhood facilities will continue to evolve.
4 bedroom detached house for sale in Denny End Road,
Waterbeach,
Cambridge,
CB25 9QE, CB25 — £825,000 • 4 bed • 1 bath • 1762 ft²
3 bedroom detached house for sale in Denny End Road,
Waterbeach,
Cambridge,
CB25 9QE, CB25 — £650,000 • 3 bed • 1 bath • 1323 ft²
4 bedroom house for sale in Denny End Road,
Waterbeach,
Cambridge,
CB25 9QE, CB25 — £650,000 • 4 bed • 3 bath • 1757 ft²
4 bedroom house for sale in Denny End Road,
Waterbeach,
Cambridge,
CB25 9QE, CB25 — £610,000 • 4 bed • 2 bath • 1805 ft²
4 bedroom house for sale in Denny End Road,
Waterbeach,
Cambridge,
CB25 9QE, CB25 — £599,995 • 4 bed • 3 bath • 1757 ft²
4 bedroom house for sale in Denny End Road,
Waterbeach,
Cambridge,
CB25 9QE, CB25 — £599,995 • 4 bed • 3 bath • 1757 ft²


































































