Spacious contemporary family living beside parkland and waterside amenities.
Ready-to-move-in show home with curtains, light fittings and artwork included
Four bedrooms across three floors; fitted wardrobe in principal bedroom
Underfloor heating, air source heat pump and superior insulation included
Garage, EV charging point and landscaped rear garden on a large plot
23-acre lake, green spaces and new community amenities nearby
Local facilities still being built; area is a phased development
Average broadband speeds; offers and £30,000 gift subject to T&Cs
Freehold new build with 10-year Premier Guarantee and 2-year warranty
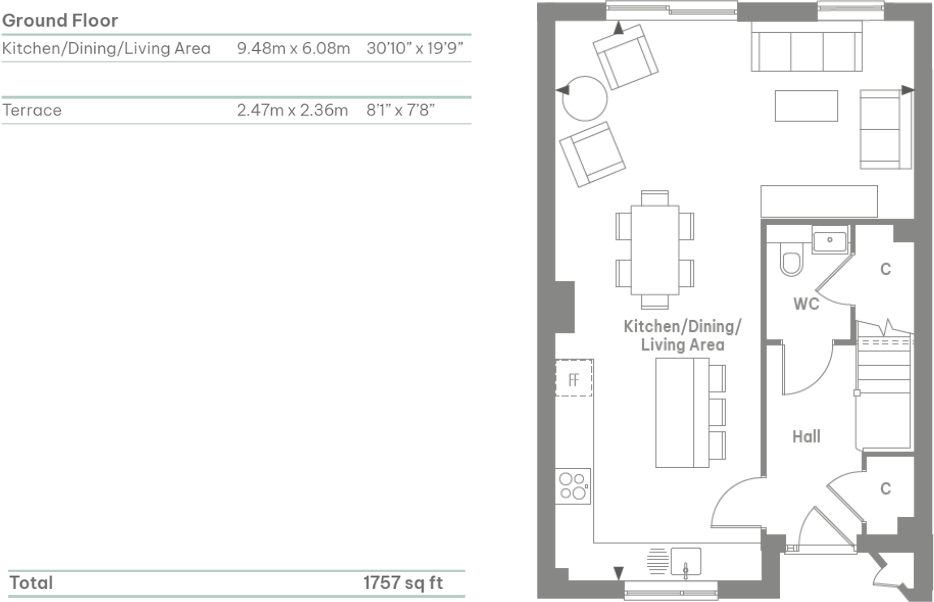
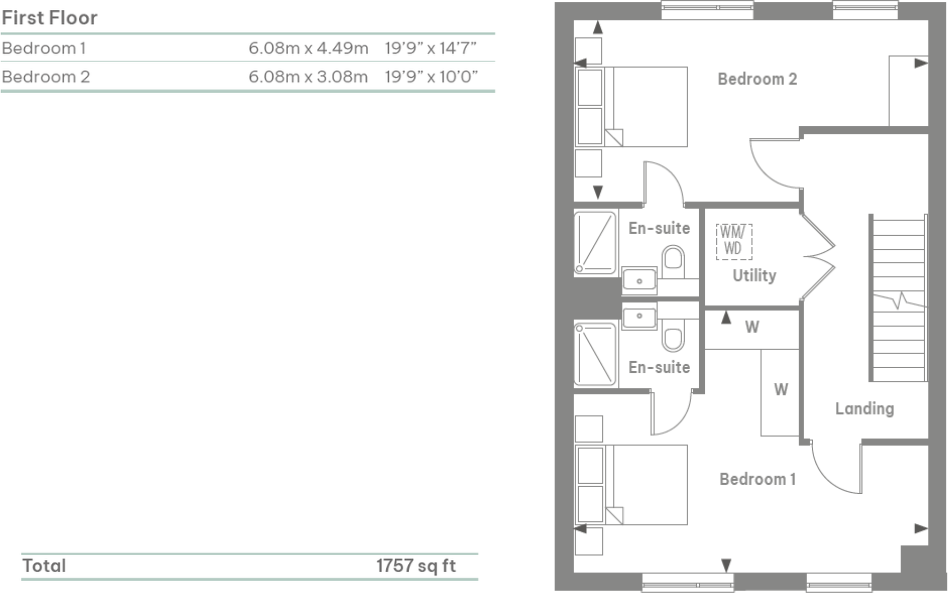
Step into The Beckett, a three-storey, four-bedroom new build ready to move into with curtains, light fittings and selected artwork included. The home’s open-plan kitchen and dining area features Bosch integrated appliances, a wine cooler and stone worktops; underfloor heating and air source heat pump deliver modern, lower-carbon comfort. A fitted wardrobe to the principal bedroom and a garage with EV charging add practical daily conveniences.
Set within the wider Stonebond at Waterbeach development, the plot sits beside extensive green spaces and a 23-acre lake, offering easy access to walking and cycling routes. Local infrastructure is still being completed—new shops, schools, a health centre and a transport hub are planned or opening in phases, and an A10 pedestrian/cycle bridge is due Spring 2026. These improvements will broaden amenities but mean the neighbourhood is still evolving.
The home includes a 10-year Premier Guarantee and a 2-year customer care warranty. Energy-saving measures — superior insulation, LED lighting, aerated taps and underfloor heating — may lower running costs compared with older houses. Note broadband speeds are reported as average and some promotional extras and the £30,000 festive gift are subject to terms and conditions and selected plots only.
This is a spacious family-orientated property on a large plot designed for contemporary living and sustainable running costs. Viewings of the show home are available to assess finishes and room proportions in person.
4 bedroom house for sale in Denny End Road,
Waterbeach,
Cambridge,
CB25 9QE, CB25 — £599,995 • 4 bed • 3 bath • 1757 ft²
4 bedroom detached house for sale in Denny End Road,
Waterbeach,
Cambridge,
CB25 9QE, CB25 — £825,000 • 4 bed • 1 bath • 1762 ft²
4 bedroom house for sale in Denny End Road,
Waterbeach,
Cambridge,
CB25 9QE, CB25 — £610,000 • 4 bed • 2 bath • 1805 ft²
4 bedroom house for sale in Denny End Road,
Waterbeach,
Cambridge,
CB25 9QE, CB25 — £599,995 • 4 bed • 3 bath • 1757 ft²
4 bedroom town house for sale in Gillyflower Lane, Stonebond At Waterbeach, Cambridge, CB25 — £650,000 • 4 bed • 3 bath • 1767 ft²
3 bedroom end of terrace house for sale in Denny End Road,
Waterbeach,
Cambridge,
CB25 9QE, CB25 — £500,000 • 3 bed • 2 bath • 1344 ft²






















































































