**Standout Features:**
- Beautifully presented three-bedroom mid-terrace home
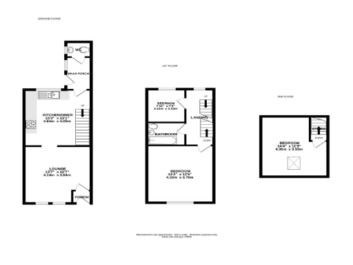
- Accommodation spanning three floors, enhancing living space
- Modern kitchen with cottage-style design, and stylish bathroom
- Significant recent improvements: new boiler (2023), insulation, fascias, guttering, windows, and front door (2024)
- Shared low-maintenance rear garden
- Convenient town center location near amenities, schools, and local attractions
**Potential Concerns:**
- Compact overall size (776 sq ft) may be limiting for some families
- Shared garden may not appeal to those preferring private outdoor space
This charming mid-terrace home is a fantastic opportunity for first-time buyers or small families seeking comfort in a vibrant town. Split over three floors, the layout includes a cozy lounge and a modern kitchen/dining area, perfect for hosting guests. On the first floor, you’ll find a beautifully designed bathroom alongside two well-sized bedrooms, followed by a generous double bedroom with skylight on the top floor. The property's recent upgrades paired with energy-efficient features ensure a modern living experience and peace of mind. Located in the heart of Chapel-en-le-Frith, close to schools, cafes, and shops, this home offers both convenience and character. Don’t miss this rare chance to own a slice of history in a desirable community—book your viewing today before it's gone!
2 bedroom terraced house for sale in Burrfields Road, Chapel-En-Le-Frith, High Peak, SK23 — £195,000 • 2 bed • 1 bath • 773 ft²
4 bedroom terraced house for sale in Smithy Brook Fold, Chapel-En-Le-Frith, High Peak, SK23 — £299,950 • 4 bed • 2 bath • 1108 ft²
3 bedroom terraced house for sale in Terrace Road, Chapel-En-Le-Frith, High Peak, SK23 — £199,950 • 3 bed • 1 bath • 895 ft²
3 bedroom terraced house for sale in Westbrook Close, Chapel-En-Le-Frith, SK23 — £240,000 • 3 bed • 1 bath • 904 ft²
2 bedroom terraced house for sale in Market Street, Chapel-En-Le-Frith, SK23 — £195,000 • 2 bed • 1 bath • 541 ft²
2 bedroom terraced house for sale in Beresford Avenue, Chapel-En-Le-Frith, High Peak, SK23 — £219,950 • 2 bed • 1 bath • 547 ft²


























































