**Standout Features:**
- Two double bedrooms
- Modern kitchen and bathroom
- Stone-built, Victorian cottage
- Enclosed low-maintenance rear yard
- Convenient location near town center amenities
- Gas central heating with a boiler under warranty
- Freehold tenure
**Summary:**
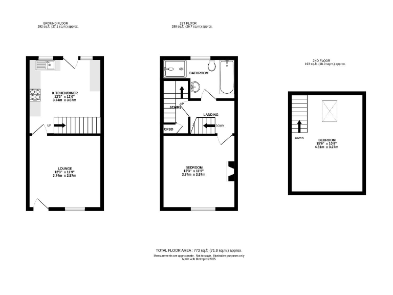
Discover the charm of this well-presented two-bedroom stone cottage in the heart of Chapel-en-le-Frith, known as 'The Capital of the Peak.' Perfect for first-time buyers or investors, this cozy home features a modern kitchen-diner equipped with stylish gloss units, a comfortable lounge with an attractive fireplace, and a family bathroom with both a bath and shower cubicle. The second bedroom on the upper level boasts lovely views over the town and countryside, offering a serene escape.
Enjoy the convenience of nearby local shops, cafes, and schools, catering to families and retirees alike. While the property is in excellent condition with recent updates and a low-maintenance yard, potential buyers should be aware of the average mobile signal and slow broadband speeds, which could affect connectivity. This charming freehold property is an ideal opportunity in an affluent area, but it won’t last long—secure your place in this picturesque community today!
2 bedroom terraced house for sale in Market Street, Chapel-En-Le-Frith, SK23 — £195,000 • 2 bed • 1 bath • 541 ft²
2 bedroom end of terrace house for sale in Market Street, Chapel-En-Le-Frith, High Peak, SK23 — £225,000 • 2 bed • 1 bath • 690 ft²
3 bedroom terraced house for sale in Terrace Road, Chapel-En-Le-Frith, High Peak, SK23 — £199,950 • 3 bed • 1 bath • 895 ft²
3 bedroom terraced house for sale in Market Street, Chapel-En-Le-Frith, High Peak, SK23 — £219,999 • 3 bed • 1 bath • 776 ft²
2 bedroom terraced house for sale in Beresford Avenue, Chapel-En-Le-Frith, High Peak, SK23 — £219,950 • 2 bed • 1 bath • 547 ft²
2 bedroom semi-detached house for sale in Hayfield Road, Chapel-En-Le-Frith, SK23 — £240,000 • 2 bed • 1 bath • 951 ft²






















































