Ideal for first-time buyers or landlords needing commuter links and quick completion.
Spacious rear garden, well maintained and private
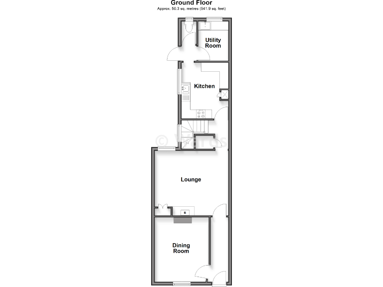
A well-proportioned two-bedroom mid-terrace offering practical living space and a generous rear garden. The house retains period character such as sash-style windows and a traditional brick façade while providing modern comforts like double glazing and mains gas central heating. Two reception rooms, a downstairs toilet and a useful utility room add flexibility for family life or rental layout.
The property is presented as a comfortable, move-in option with no onward chain, making it suitable for buyers wanting a quick completion. It is close to Strood town centre, schools and the mainline station, which is attractive to commuters and investors seeking steady rental demand.
Important practical points: the terrace dates from the early 20th century and has solid brick walls with assumed no cavity insulation, so energy efficiency may be lower than modern builds. The exterior will benefit from some maintenance and the interior would suit selective modernisation to reach its full potential. The local area shows higher-than-average crime statistics and indicators of deprivation, which should be considered alongside transport and schooling benefits.
2 bedroom terraced house for sale in Montfort Road, Strood, Rochester, Kent, ME2 — £172,000 • 2 bed • 1 bath • 894 ft²
2 bedroom end of terrace house for sale in Smith Street, Strood, Rochester, Kent, ME2 — £250,000 • 2 bed • 1 bath • 765 ft²
2 bedroom terraced house for sale in Glanville Road, Rochester, ME2 — £250,000 • 2 bed • 1 bath • 991 ft²
2 bedroom end of terrace house for sale in Smith Street, Strood, Rochester, Kent, ME2 — £165,500 • 2 bed • 1 bath • 765 ft²
3 bedroom terraced house for sale in Martin Road, Rochester, Kent, ME2 — £260,000 • 3 bed • 1 bath • 1083 ft²
2 bedroom terraced house for sale in Roberts Road, Rainham, Gillingham, Kent, ME8 — £260,000 • 2 bed • 1 bath • 646 ft²






















































