Affordable retirement home near shops and station.
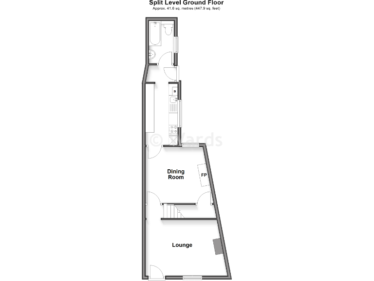
Two double bedrooms and separate lounge and dining room
A compact Victorian end-terrace with two double bedrooms, set within easy walking distance of Strood town centre and the railway station. The layout includes a lounge, separate dining room and a small rear garden — straightforward accommodation well suited to someone seeking a low-maintenance home close to transport and shops.
The property is offered freehold and is being promoted as suitable for over-60s via a Home for Life Lifetime Lease option; a guide Lifetime Lease price is £165,500 (market value £250,000) depending on age and circumstances. This plan lets eligible buyers purchase a share of the property value (up to 50%) to reduce upfront cost.
Buyers should note material drawbacks: the area records very high crime, significant deprivation and a high flood risk. The house generally requires modernisation — the kitchen is dated, the walls are likely uninsulated solid brick and some renovation work is probable to improve comfort and energy efficiency.
For someone downsizing or seeking an investment with redevelopment potential, this property offers a modest footprint (c. 765 sq ft) and close proximity to local amenities, schools and public transport. The small garden and side access add practical value, but factor in remediation and safety considerations before purchase.
2 bedroom end of terrace house for sale in Smith Street, Strood, Rochester, Kent, ME2 — £250,000 • 2 bed • 1 bath • 765 ft²
3 bedroom end of terrace house for sale in Grove Road, Strood, Rochester, Kent, ME2 — £198,500 • 3 bed • 1 bath • 1066 ft²
1 bedroom terraced house for sale in Tintagel Gardens, Rochester, Kent, ME2 — £139,000 • 1 bed • 1 bath • 410 ft²
2 bedroom end of terrace house for sale in The Tideway, Rochester, Kent, ME1 — £198,500 • 2 bed • 2 bath • 829 ft²
2 bedroom semi-detached house for sale in Woodstock Road, Strood, Rochester, Kent, ME2 — £208,500 • 2 bed • 1 bath • 743 ft²
2 bedroom terraced house for sale in Lower Boxley Road, Maidstone, Kent, ME14 — £155,500 • 2 bed • 1 bath • 776 ft²


















































