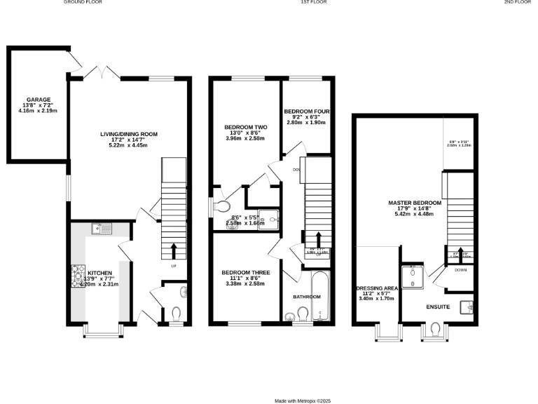
Modern three-storey semi‑detached townhouse, built c.2003–2006
This modern three‑storey semi‑detached townhouse offers efficient family living across 1,141 sq ft. The top‑floor master suite with dressing area and ensuite creates a private retreat, while the ground‑floor living/dining room opens to a landscaped rear garden with decking — ideal for family relaxation or entertaining. The fitted kitchen includes integrated appliances and good natural light.
Practical features include a single garage, driveway parking for one to two cars, and two further bedrooms plus a guest bedroom with ensuite on the first floor. Built c.2003–2006 with double glazing and mains gas central heating, the house is presented in good condition throughout and suits first‑time buyers or growing families looking for a ready‑to‑move‑into home.
Location is a strong selling point for commuters: quick road access to the M3/M4 and rail links to London from Bracknell and Martins Heron. Several well‑rated primary and secondary schools are nearby, adding family appeal. Broadband and mobile signal are reported as good.
Be clear on the limits: the internal space is modest for a four‑bedroom home and the plot is small, so outdoor space and storage are limited compared with larger suburban properties. Local crime levels are reported as high for the area — buyers should check local safety statistics and service provision. Overall this is a practical, modern family home with commuter convenience and low immediate maintenance needs, but with compact living space and local area cautions to consider.
3 bedroom semi-detached house for sale in Hopper Vale, Bracknell, RG12 — £425,000 • 3 bed • 2 bath • 807 ft²
3 bedroom terraced house for sale in Hopper Vale, Bracknell, Berkshire, RG12 — £425,000 • 3 bed • 2 bath • 909 ft²
2 bedroom terraced house for sale in Hopper Vale, Bracknell, Berkshire, RG12 — £365,000 • 2 bed • 2 bath • 710 ft²
4 bedroom terraced house for sale in Russell Chase, Binfield, Bracknell, Berkshire, RG42 — £500,000 • 4 bed • 2 bath • 1093 ft²
3 bedroom end of terrace house for sale in Somerville Rise, Bracknell, RG12 — £425,000 • 3 bed • 3 bath • 951 ft²
4 bedroom house for sale in Tempest Mews, Bracknell, Berkshire, RG12 — £485,000 • 4 bed • 2 bath • 1413 ft²






























































