RG12 7GH - 3 bedroom terraced house for sale in Hopper Vale, Bracknell…

View on Property Piper

3 bedroom terraced house for sale in Hopper Vale, Bracknell, Berkshire, RG12

Summary - 34, Hopper Vale RG12 7GH

3 bed 2 bath Terraced

**Standout Features:**
- No onward chain
- Modern townhouse in Sovereign Fields
- New carpets and freshly painted throughout
- Integral garage and parking for two cars
- 3 well-sized bedrooms, including an en suite master
- Low maintenance rear garden

**Summary:**
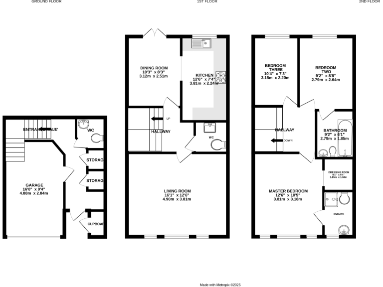
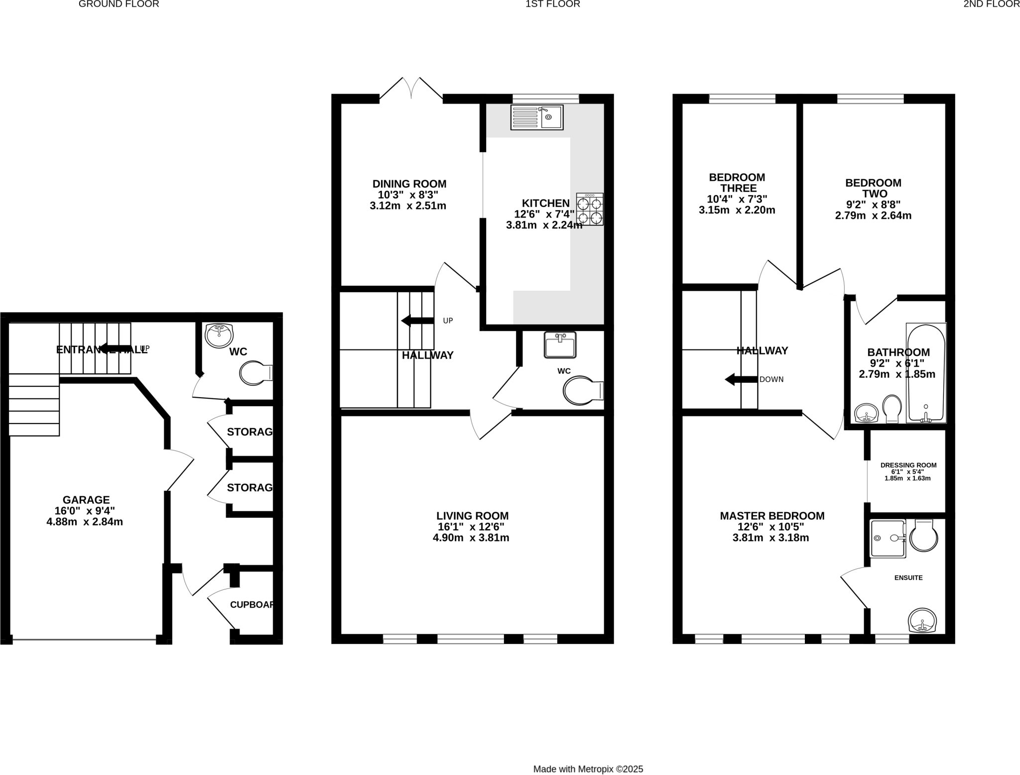
This modern, three-story mid-terrace townhouse in the desirable Sovereign Fields development is perfect for first-time buyers and families alike. Boasting a fresh interior with new carpets and vibrant paint, the home features a spacious living room, a well-appointed kitchen with dining space, and a convenient cloakroom on the ground floor. The second floor houses three generously-sized bedrooms, including a master suite with a walk-in wardrobe and en suite bathroom, ensuring ample personal space for the whole family.

With an integral garage and driveway parking for two cars, practical living is prioritized. The low maintenance rear garden is ideal for leisurely weekends, while the surrounding area offers excellent access to local schools—many rated 'Good' or 'Outstanding'—as well as parks and convenient transport links. Don’t miss this opportunity to move into a chain-free property that blends comfort, modernity, and family-friendly living—all in one appealing package.

Property Details

Brochure Descriptions

Image Descriptions

Floorplan Description

Rooms

Textual Property Features

Detected Visual Features

EPC Details

Nearby Schools

Nearest Bars And Restaurants

,,,,}

Nearest General Shops

,,}

Nearest Grocery shops

,,}

Nearest Supermarkets

,,}

Nearest Religious buildings

,,}

Nearest Medical buildings

,,,}

Nearest Airports

}

Nearest Leisure Facilities

,,,,}

Nearest Tourist attractions

,,}

Nearest Train stations

,,,,}

Nearest Bus stations and stops

,,,,}

Nearest Hotels

,,}

Tags

Local Market Stats

Similar Properties

Meta

High Res Images

Compatible Images

Low res Images

Thumbnails

Raw Images

High Res Floorplan Images

Compatible Floorplan Images

Low res Floorplan Images

FloorplanImages Thumbnail

Raw Floorplan Images