**Standout Features:**
- Expansive rural holding of over 70 acres
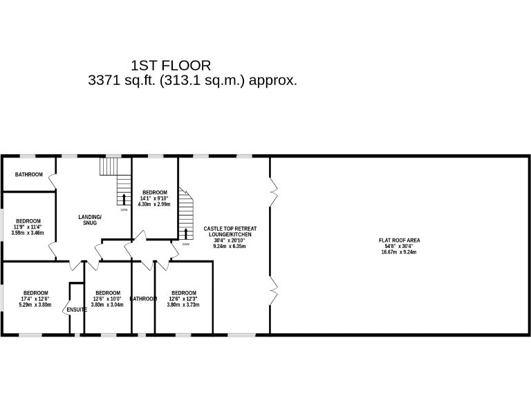
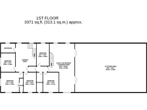
- Main two-bedroom residence with exceptional views
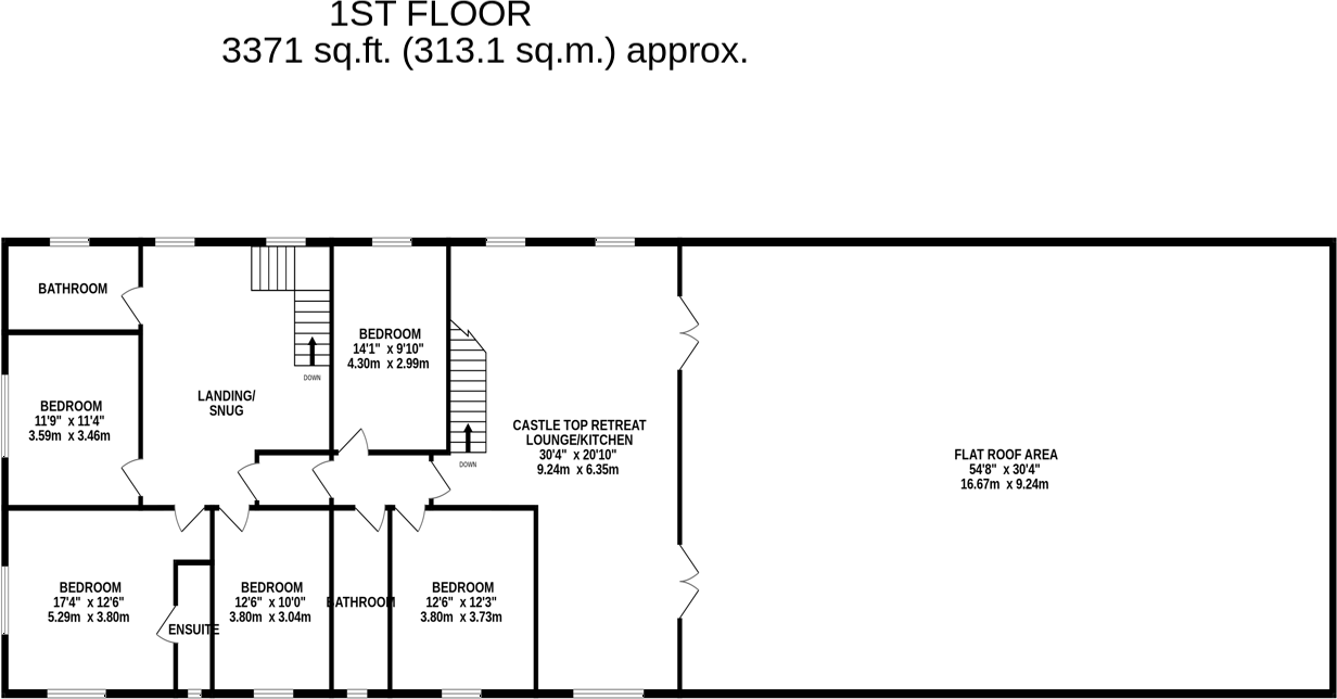
- Two successful holiday lets (five & three bedrooms) each with outdoor space, including hot tubs and saunas
- Three cabins with potential for guest accommodation or office space
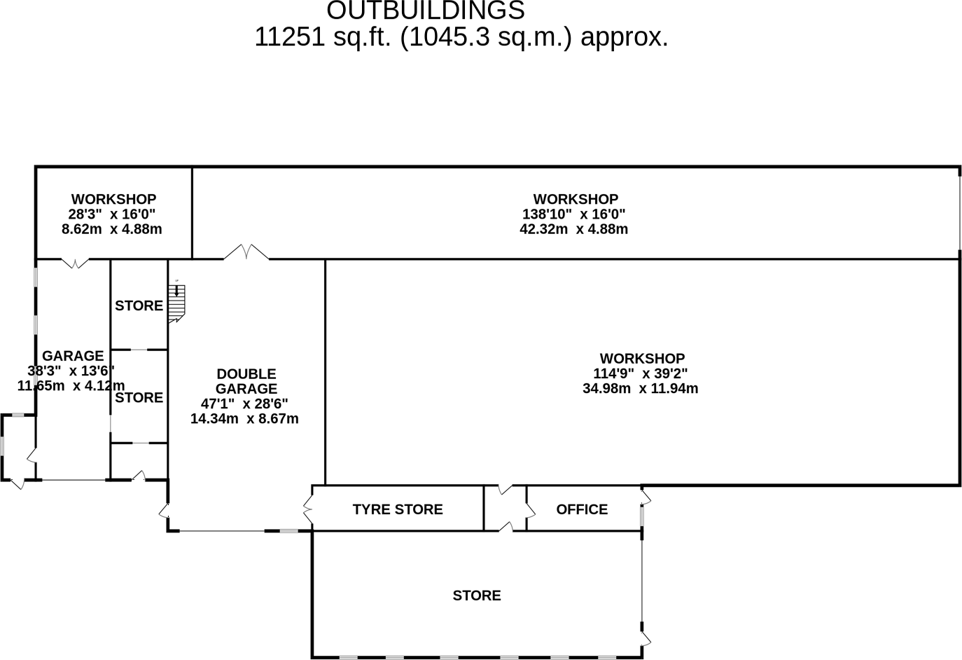
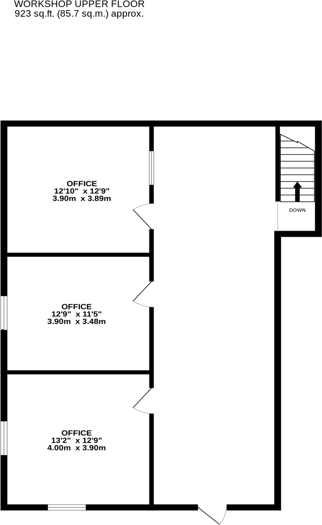
- Large commercial building for workshop/storage with overhead crane
- Landscaped grounds including a tennis court and barbecue hut
- Direct access to Viking Way walking route
- Low crime area, private yet connected to nearby towns
**Summary Description:**
Discover Castle Top, a remarkable rural estate nestled in the picturesque Lincolnshire Wolds. Spanning over 70 acres, this multifaceted property features a spacious two-bedroom main residence characterized by a charming castle-like facade and stunning countryside views. Two established holiday lets—The Retreat and The Haven—come fully equipped with outdoor spaces and hot tubs, offering lucrative income potential.
With an additional three cabins ready for conversion into guest quarters or workspace and a large commercial building perfect for storage or business purposes, Castle Top presents an exceptional investment opportunity. Enjoy a wealth of outdoor amenities including a tennis court and barbecue hut, while having the tranquility of rural living just minutes from the market towns of Caistor and Market Rasen.
Though the property offers unique character and substantial potential, note that some buildings may require updates or renovations. This is a rare chance to secure a versatile holding with ample scope for both private enjoyment and profitable enterprise in one of the region's most scenic locales—act quickly as opportunities like this don’t last long!
5 bedroom detached house for sale in Church Way, Nettleton, Lincolnshire, LN7 — £700,000 • 5 bed • 4 bath • 3720 ft²
7 bedroom detached house for sale in Cabourne, Market Rasen, LN7 — £795,000 • 7 bed • 3 bath • 4068 ft²
7 bedroom farm house for sale in South Cockerington, LN11 — £700,000 • 7 bed • 3 bath • 3400 ft²
6 bedroom detached house for sale in Moortown Road, Nettleton, Market Rasen, LN7 — £425,000 • 6 bed • 5 bath • 4846 ft²
Commercial property for sale in Moortown Road, Nettleton, Market Rasen, LN7 — £425,000 • 6 bed • 5 bath • 4600 ft²
Commercial property for sale in Exclusive Countryside Wedding/Event Venue - Lincolnshire [LN7 6JT], LN7 — £1,050,000 • 3 bed • 1 bath






























































































































































































































































