CF5 3HY - Plot for sale in Mccale Avenue, Cardiff, CF5

View on Property Piper

Plot for sale in Mccale Avenue, Cardiff, CF5

Summary - 15, McCale Avenue, CARDIFF CF5 3HY

1 bed 1 bath Plot

**Standout Features:**
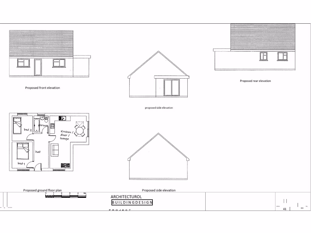
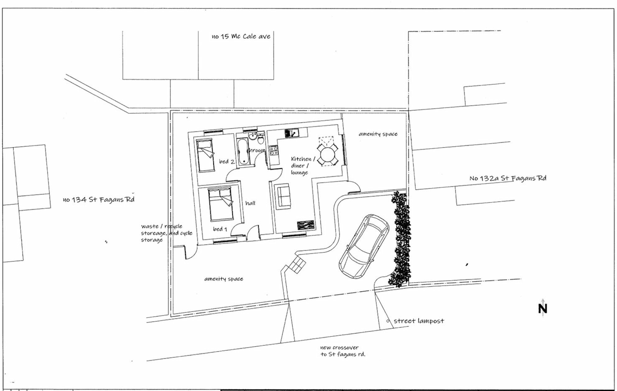
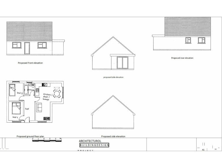
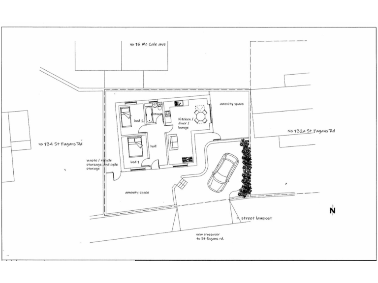
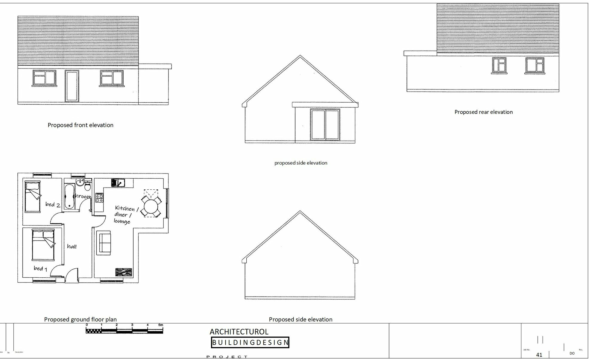
- Freehold building plot with planning permission for a detached bungalow
- Proposed layout includes 2 bedrooms, an L-shaped lounge, a kitchen/diner, bathroom, and ample garden space
- Excellent transport access, only 30m from the nearest bus stop and 200 yards from Fairwater Green
- Off-street parking available
- Well-suited for downsizers or those looking for a low-maintenance living solution
- EPC rating: C

**Concise Summary:**
Discover a rare investment opportunity in Mccale Avenue, Cardiff, CF5. This expansive freehold plot comes with approved planning permission to build a detached bungalow, designed with a practical layout that features two bedrooms, an inviting L-shaped lounge, and a spacious kitchen/diner. The property boasts a modest garden and off-street parking, ensuring comfort and convenience. Its prime location offers excellent transport links, making it ideal for first-time buyers or investors looking to create a desirable residence in a peaceful suburban setting.

Potential buyers should be aware of the current socio-economic context of the area, which is marked by above-average crime rates and notable deprivation. However, the area's urban vibrancy, with local amenities just a short walk away, provides a balanced lifestyle opportunity. Capitalize on this unique chance to design your dream home or kickstart a profitable development project!

Property Details

Brochure Descriptions

Image Descriptions

Floorplan Description

Rooms

Textual Property Features

Detected Visual Features

EPC Details

Nearest Bars And Restaurants

,,,,}

Nearest General Shops

,,}

Nearest Grocery shops

,,}

Nearest Supermarkets

,,}

Nearest Religious buildings

,,}

Nearest Medical buildings

,,,}

Nearest Airports

}

Nearest Leisure Facilities

,,,,}

Nearest Tourist attractions

,,}

Nearest Train stations

,,,,}

Nearest Bus stations and stops

,,,,}

Nearest Hotels

,,}

Tags

Local Market Stats

AirBnB Data

Similar Properties

Meta

High Res Images

Compatible Images

Low res Images

Thumbnails

Raw Images

High Res Floorplan Images

Compatible Floorplan Images

Low res Floorplan Images

FloorplanImages Thumbnail

Raw Floorplan Images