Well-located home with recent major updates and low-maintenance garden.
Three double bedrooms including attic bedroom with WC
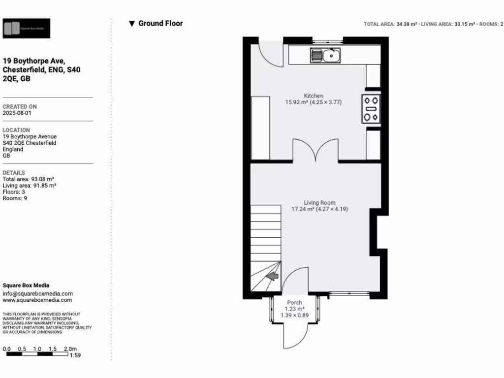
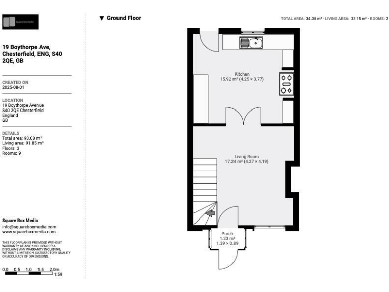
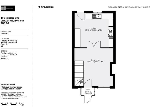
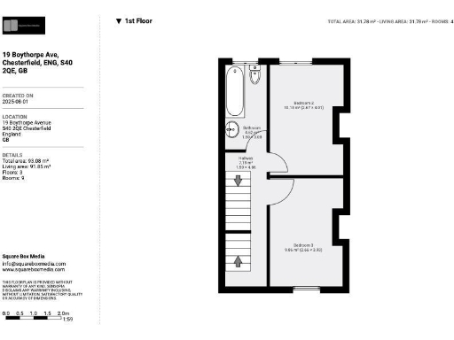
This Victorian semi-detached home on Boythorpe Avenue pairs classic character with recent mechanical upgrades. The house has three double bedrooms, including an attic bedroom with its own WC, a kitchen-diner with space for an American-style fridge freezer, and a lounge accessed via a practical porch. New roof (2023), new combi boiler (2024) and a new electric consumer unit (2023) reduce immediate maintenance costs and bring the mains services up to date.
Outside, off-street parking and a low-maintenance rear garden with hot and cold taps suit busy owners or those seeking easier upkeep. The property is well placed for Chesterfield town centre, local shops, train links and Queens Park sports facilities, making everyday journeys and leisure straightforward.
Buyers should note the neighbourhood scores high on local deprivation and recorded crime is above average; prospective purchasers may want to investigate local security measures and insurance costs. The house has solid brick walls (likely no cavity insulation), so energy-efficiency improvements such as wall insulation could be considered to reduce heating bills further.
Overall this freehold house offers an affordable entry to Chesterfield with modern essential services already updated and clear scope for improving comfort and efficiency. It will suit downsizers, first-time buyers, or small families wanting a well-located, low-upkeep home with period charm and sensible recent refurbishments.
3 bedroom semi-detached house for sale in Boythorpe Avenue, Chesterfield, S40 — £205,000 • 3 bed • 1 bath • 926 ft²
3 bedroom semi-detached house for sale in Compton Street, Chesterfield, S40 — £240,000 • 3 bed • 1 bath • 1144 ft²
5 bedroom semi-detached house for sale in Avondale Road, Chesterfield, S40 — £400,000 • 5 bed • 3 bath • 1679 ft²
4 bedroom semi-detached house for sale in Cromwell Road, Chesterfield, S40 — £395,000 • 4 bed • 1 bath • 1606 ft²
3 bedroom detached house for sale in Boythorpe Road, Boythorpe, Chesterfield, Derbyshire S40 — £270,000 • 3 bed • 1 bath • 1148 ft²
2 bedroom terraced house for sale in Vincent Crescent, Brampton, Chesterfield, S40 — £149,000 • 2 bed • 1 bath • 791 ft²


















































































