Create a spacious family home minutes from Lee station and highly rated schools.
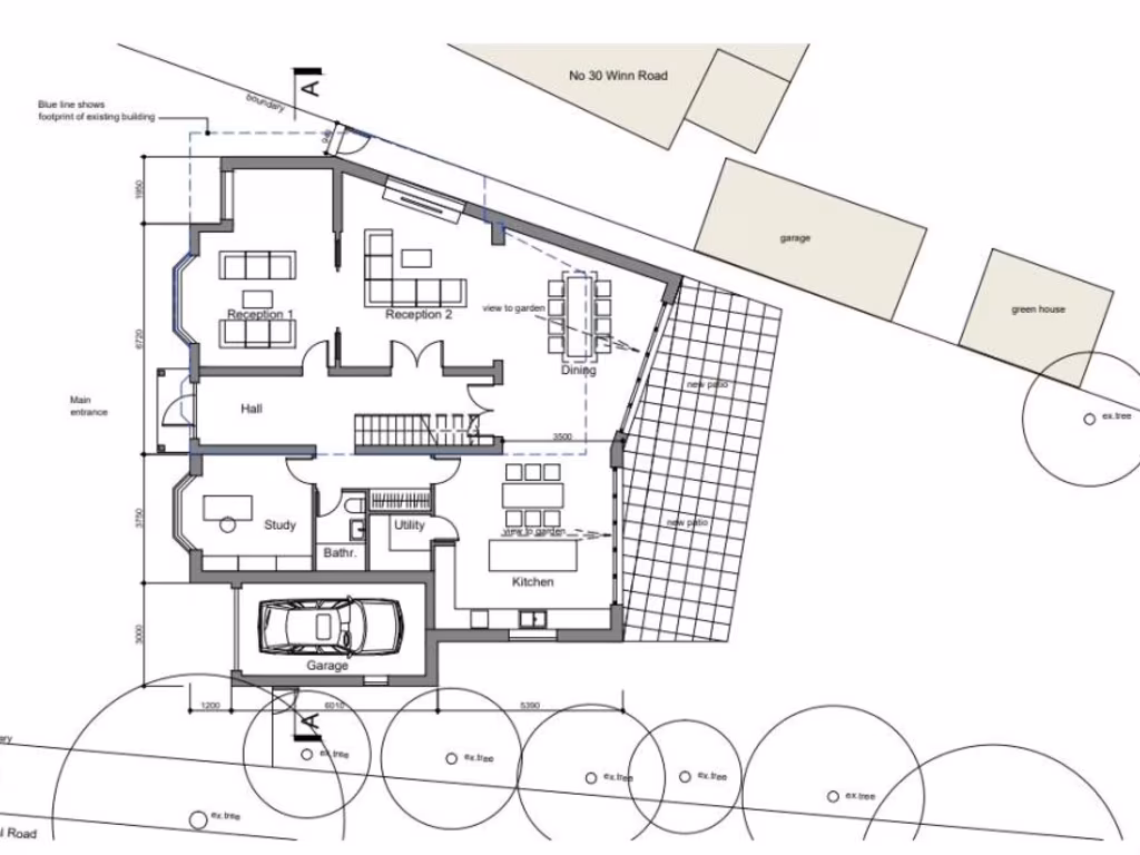
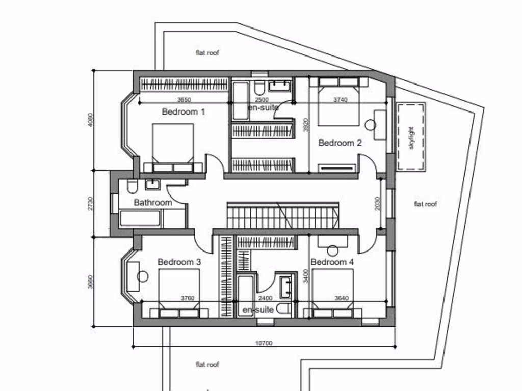
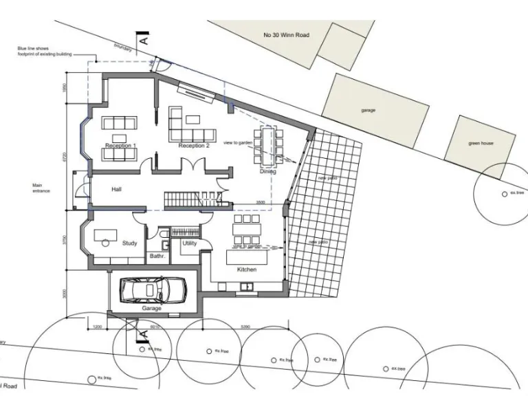
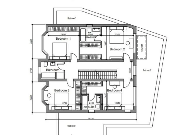
Detailed planning granted for 5-bed detached house (Lewisham ref DC/25/139810)
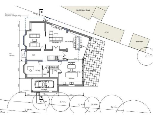
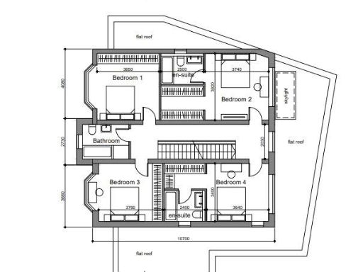
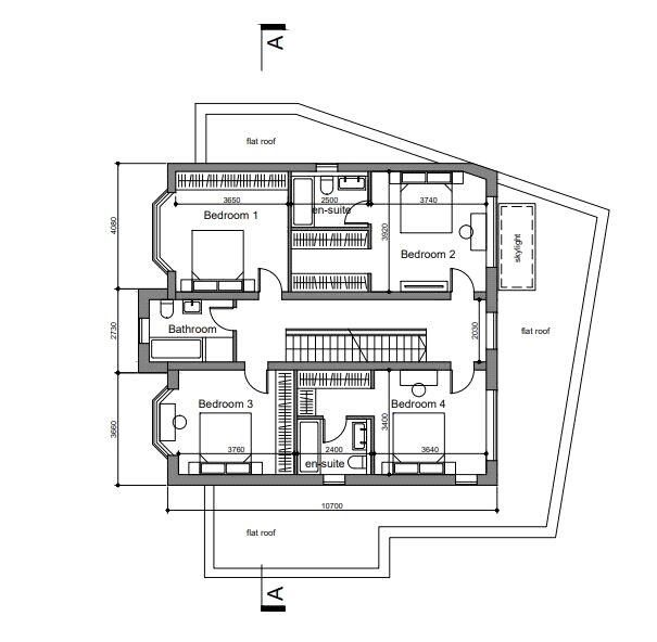
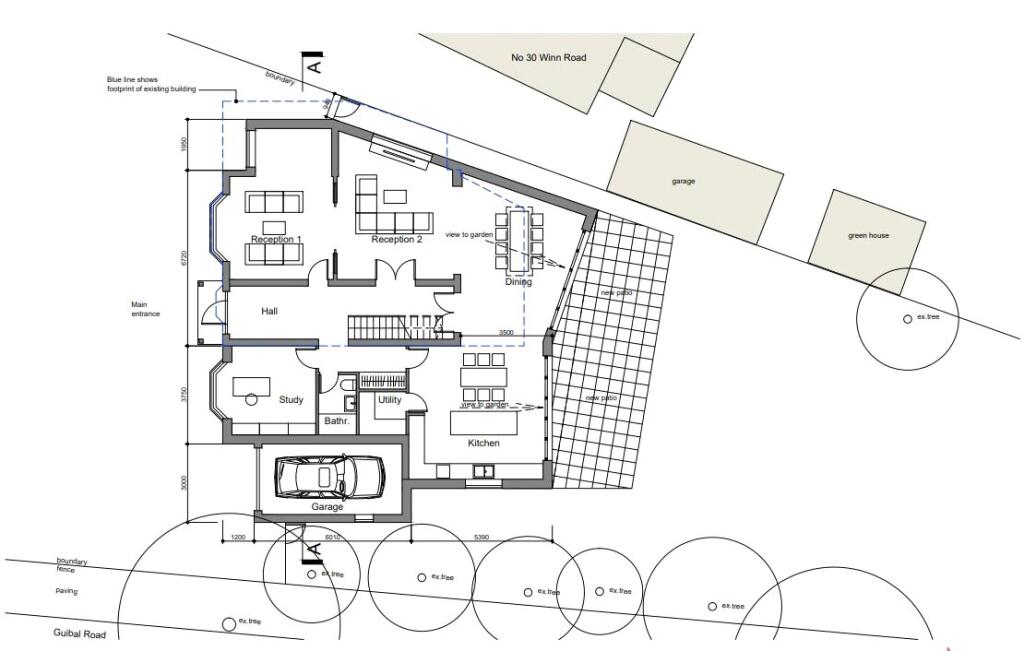
A rare vacant plot in SE12 with detailed planning permission for a large, modern five-bedroom detached home. Lewisham Council has granted planning (ref DC/25/139810) for a 3,070 sqft GIA property over three floors; the previous dwelling has already been demolished and the site cleared, ready for construction. The scheme includes a garden and garage parking, suitable for a spacious family layout with contemporary features and energy-efficient options.
The location is well connected: Lee station is approximately 0.6 miles away with fast services to central London, and Lewisham DLR offers easy access to Canary Wharf. Several highly regarded schools are within walking distance, including Eltham College and Colfe’s, plus strong local amenities and green space nearby. Broadband and mobile signal are both good, and the area records low crime and very affluent indicators.
Buyers should budget for build and procurement costs; planning is granted but construction and specification remain to be completed. Council Tax is Band F (expensive), and as a cleared plot the site will require a contractor, building programme and associated fees. The property is offered freehold, with no flood risk recorded.
This plot will suit a family seeking a turnkey design brief to create a large, modern home in a well‑connected London suburb, or an investor/developer who can deliver the approved scheme. The cleared site and permission reduce planning uncertainty, but realistic cost planning for construction, professional fees and higher council tax is essential.
4 bedroom detached house for sale in Winn Road, Lee, London, SE12 — £1,500,000 • 4 bed • 2 bath • 1928 ft²
3 bedroom detached house for sale in Woodyates Road, London, SE12 — £800,000 • 3 bed • 2 bath • 1341 ft²
Land for sale in Land to the Rear of Ravensbourne Road, Lewisham, London, SE6 4UX, SE6 — £195,000 • 1 bed • 1 bath • 969 ft²
Plot for sale in Half Moon Lane, North Dulwich, SE24 — £1,295,000 • 4 bed • 1 bath • 3000 ft²
5 bedroom semi-detached house for sale in Guibal Road, Lee, SE12 — £1,000,000 • 5 bed • 3 bath • 2382 ft²
6 bedroom detached house for sale in Holbrook Lane, Chislehurst, BR7 — £3,850,000 • 6 bed • 4 bath • 10000 ft²














































