**Standout Features:**
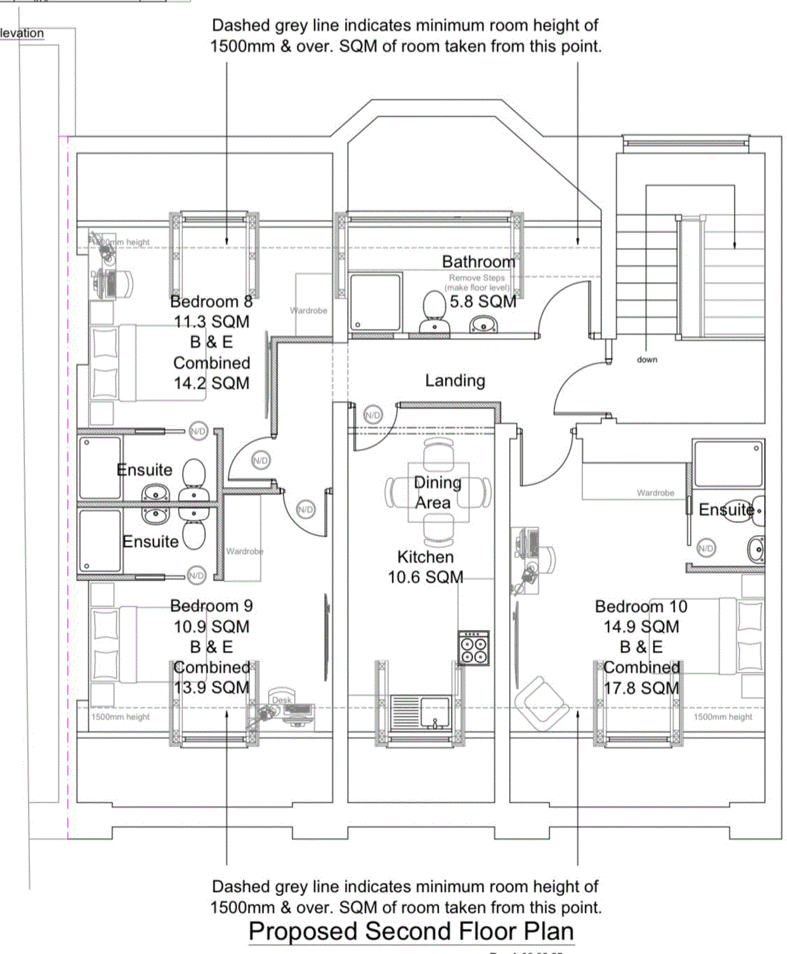
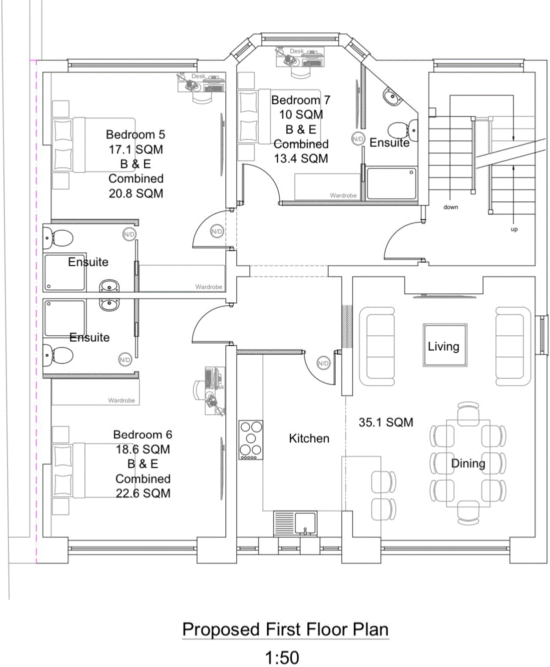
- **Zoned for a 10-bedroom HMO:** Full planning permission (Ref: FUL/353785/24) granted.
- **Prime Central Location:** Close to Oldham Town Centre and easy transport access to M60 and M62.
- **Substantial Size:** Impressive 3,875 square feet spread over three stories.
- **Development Potential:** Architectural plans for en-suite bedrooms and shared living spaces available.
- **Low Crime Rate:** Situated in a safe neighborhood.
**Summary:**
This extraordinary residential development opportunity in Oldham presents a three-story mid-terrace property boasting full planning permission for a 10-bedroom House in Multiple Occupation (HMO). Ideal for investors and developers, this centrally located asset spans a generous 3,875 square feet, featuring an Edwardian stone facade that promises spacious, well-lit interiors. With en-suite bedroom layouts, communal kitchens, and living areas planned, it is perfectly suited for professional tenants, students, or supported living schemes.
Positioned just a short stroll from Oldham Central Tram Stop and major amenities, this property offers excellent connectivity and a vibrant urban lifestyle. Its unique potential for high yields in a constrained neighbourhood makes it a rare find. While the area does exhibit some deprivation, ongoing development and the availability of local services enhance its appeal for future tenants. Don't miss your chance to secure this promising investment in a sought-after location—request planning documents today and start envisioning the possibilities!
Residential development for sale in Old Street, Ashton-Under-Lyne, OL6 — £375,000 • 10 bed • 5 bath
Commercial development for sale in Stretford Road, Manchester, Greater Manchester, M16 — £550,000 • 1 bed • 1 bath • 1885 ft²
5 bedroom end of terrace house for sale in Langham Road, Salford, Greater Manchester, M6 — £280,000 • 5 bed • 3 bath • 1511 ft²
Commercial property for sale in Manchester Road, Oldham, OL9 — £195,000 • 1 bed • 1 bath • 1311 ft²
High street retail property for sale in 53 Union Street, Oldham, OL1 — £369,950 • 1 bed • 1 bath • 2674 ft²
Commercial development for sale in 1 Wellington Road South, Stockport, SK4 1AA, SK4 — £700,000 • 1 bed • 1 bath • 9165 ft²


















































