SK4 1AA - Commercial development for sale in 1 Wellington Road South,…

View on Property Piper

Commercial development for sale in 1 Wellington Road South, Stockport, SK4 1AA, SK4

Summary - THE ARCHES, 1, WELLINGTON ROAD SOUTH SK4 1AA

1 bed 1 bath Commercial Development

**Standout Features:**
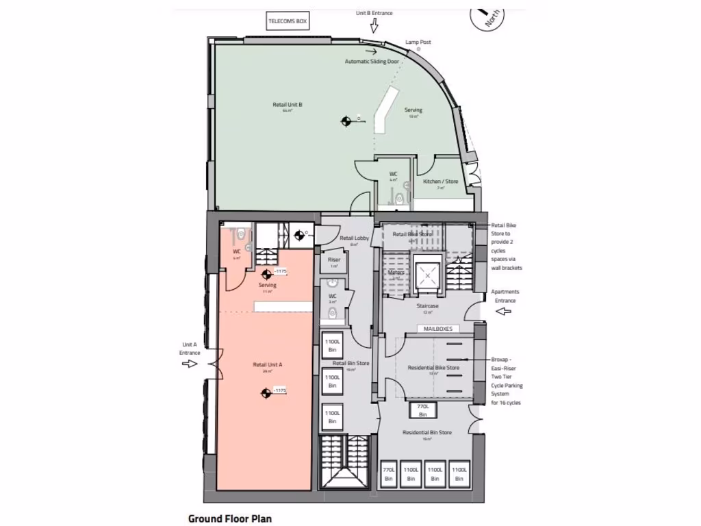
- Mixed-use development opportunity with planning approved for 14 residential units (5 x 1-bed & 9 x 2-bed apartments).
- Spacious property at 9,165 sq.ft across five stories, situated in a prime Stockport location.
- Close proximity to Stockport Interchange bus station and Merseyway shopping centre; just 0.3 miles from M60 and 7 miles to Manchester.
- Strong infrastructure support with a £420k Brownfield Infrastructure Grant available.
- Freehold tenure with mains services including gas, electricity, water, and drainage.

**Summary:**
This prime mixed-use development site at 1 Wellington Road South offers an exceptional opportunity for investors or developers looking to capitalize on Stockport's regeneration. With planning permission secured for creating 14 modern residential units within a large five-story building, this property presents significant potential for rental income or future resale. The site’s ideal urban setting is just a short walk from vibrant shopping, dining, and public transport, catering to young professionals and families alike.

Despite the building’s redevelopment needs, including partial demolition, the large scale and excellent location make it a standout investment in a rapidly evolving area. The planned residential units promise modern living spaces that cater to the demand for affordable housing, providing potential buyers with exciting options in a thriving community. Don't miss this chance to unlock the potential of this substantial site in the heart of Stockport—properties like this are in high demand and won't last long!

Property Details

Brochure Descriptions

Image Descriptions

Floorplan Description

Rooms

Textual Property Features

Detected Visual Features

Nearby Schools

Nearest Bars And Restaurants

,,,,}

Nearest General Shops

,,}

Nearest Grocery shops

,,}

Nearest Supermarkets

,,}

Nearest Religious buildings

,,}

Nearest Medical buildings

,,,}

Nearest Airports

}

Nearest Leisure Facilities

,,,,}

Nearest Tourist attractions

,,}

Nearest Train stations

,,,,}

Nearest Bus stations and stops

,,,,}

Nearest Hotels

,,}

Tags

Local Market Stats

AirBnB Data

Similar Properties

Meta

High Res Images

Compatible Images

Low res Images

Thumbnails

Raw Images

High Res Floorplan Images

Compatible Floorplan Images

Low res Floorplan Images

FloorplanImages Thumbnail

Raw Floorplan Images