Large private plot with countryside outlook ideal for family living.
Four double bedrooms; flexible two-floor family layout
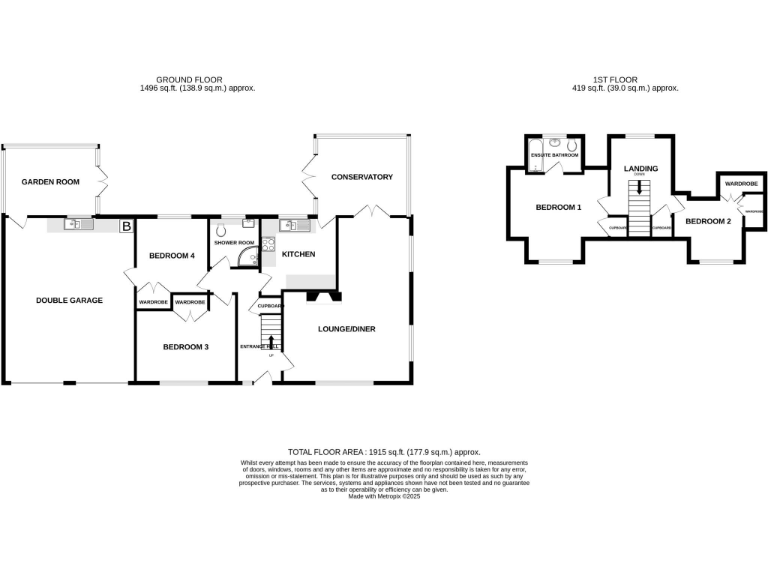
Set on the edge of a South Somerset village, this four-bedroom detached chalet bungalow offers flexible family living over two floors with open countryside views to the front and woodland to the rear. The triple-aspect lounge with wood burner flows into a large conservatory, creating generous social space, while the fitted kitchen and separate utility support everyday family life. A ground-floor shower room and two ground-floor bedrooms make single-level living or multi-generational arrangements straightforward.
The property stands on a large plot with gardens to all four sides, paved seating areas, ponds, mature planting and a gated driveway leading to a double garage with electric roll-up doors. A garden room/potting shed and additional outbuildings add hobby or storage space. Practical features include double glazing (post-2002) and underfloor heating served by an oil boiler.
Important points: heating is oil-fuelled (not a community supply), broadband speeds are average for the area, and the EPC is D. The house was completed in the mid-2000s and is generally well presented, but buyers should note typical upkeep for extensive gardens and potential future costs associated with oil heating and a mid-range energy rating.
This home will suit families seeking space, privacy and countryside outlooks with easy access to village amenities and local schools. Viewings are recommended to appreciate the layout, external space and adaptable accommodation.
4 bedroom chalet for sale in West Coker Road, Yeovil, Somerset, BA20 — £389,000 • 4 bed • 2 bath • 988 ft²
4 bedroom bungalow for sale in Wambrook, Chard, Somerset, TA20 — £499,000 • 4 bed • 2 bath • 1171 ft²
4 bedroom detached bungalow for sale in Broadshard, Crewkerne, TA18 — £425,000 • 4 bed • 2 bath • 2176 ft²
3 bedroom detached house for sale in Chardleigh Green, Wadeford, Chard, Somerset, TA20 — £475,000 • 3 bed • 2 bath • 1375 ft²
4 bedroom bungalow for sale in Whitegate, Forton, Chard, Somerset, TA20 — £695,000 • 4 bed • 3 bath • 2081 ft²
4 bedroom detached house for sale in Court Mill Lane, Wadeford, Chard, TA20 — £575,000 • 4 bed • 1 bath • 2340 ft²


































































































































