Quiet cul-de-sac home with garage, garden and excellent local schools.
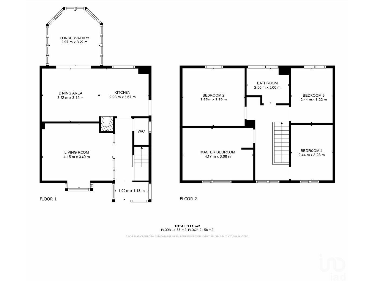
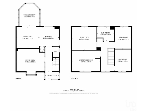
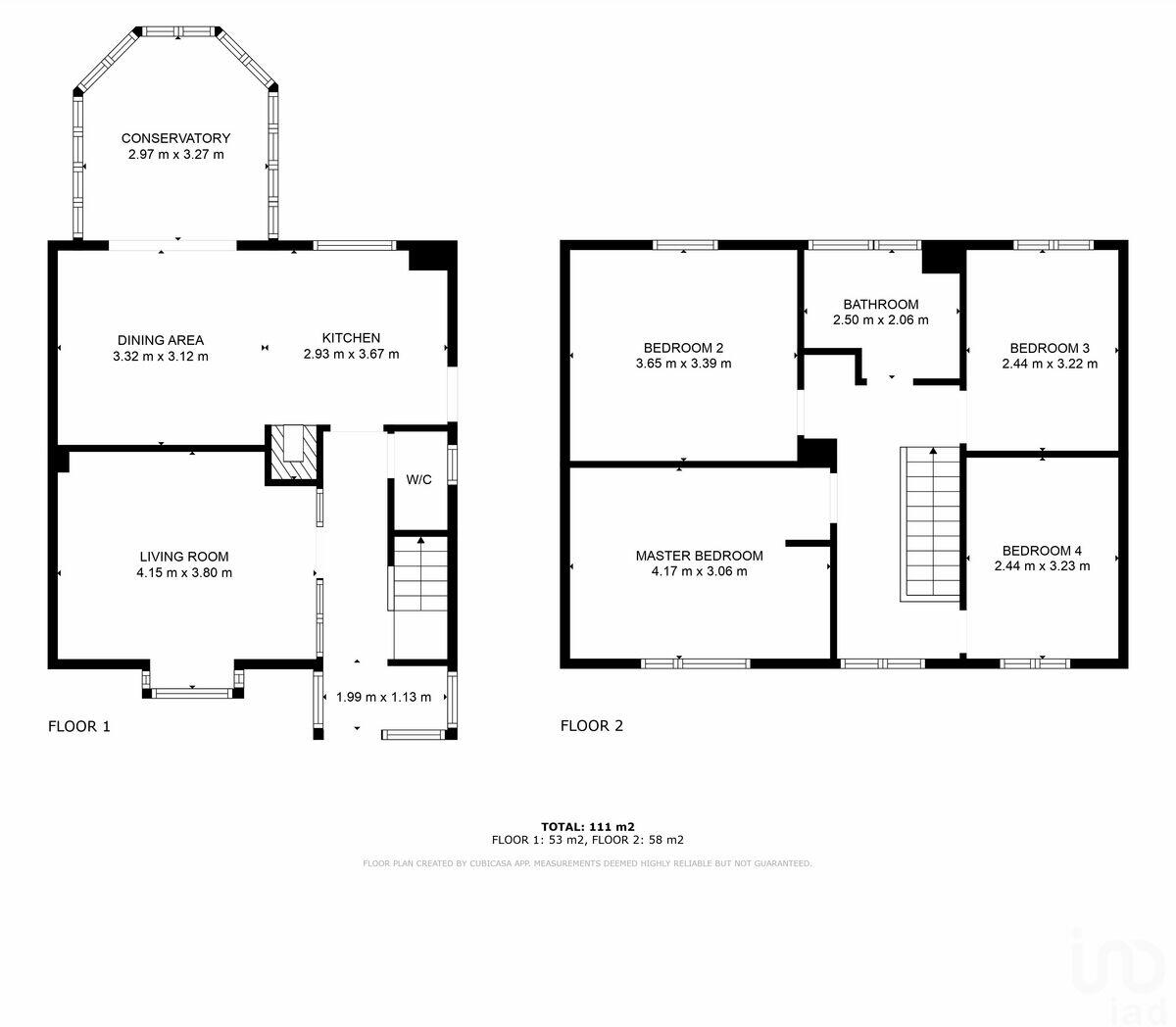
Four bedrooms and family bathroom upstairs, plus ground-floor WC
Situated at the end of a quiet cul-de-sac in Sutton, this four-bedroom semi-detached home offers comfortable family living with practical outdoor space. The ground floor includes a living room, kitchen/diner and a bright conservatory that brings extra natural light and flexible living space. Upstairs are four bedrooms and a family bathroom, with an additional ground-floor WC for convenience.
Outside, the property benefits from a decent plot with a private, low-maintenance rear garden and direct access to a garage and carport — plenty of parking for multiple vehicles. The house is freehold, double-glazed (installed 2002 or later) and heated by a mains-gas boiler with radiators, making it ready for everyday family life in an affluent, village-fringe setting with good local schools and fast broadband.
Practical buyers should note the property dates from the late 1960s–1970s and has cavity walls assumed to have no insulation, so there is scope (and likely cost) to improve thermal performance. The home presents clear renovation potential: straightforward updating could add value and modern comfort while retaining a sensible, family-friendly layout.
4 bedroom house for sale in Mostyn Close, Sutton, Ely, Cambridgeshire, CB6 — £315,000 • 4 bed • 1 bath • 1163 ft²
4 bedroom detached house for sale in Elizabeth Court, Sutton, Cambridgeshire, CB6 — £500,000 • 4 bed • 3 bath • 1883 ft²
4 bedroom detached house for sale in The Row, Sutton, Ely, Cambridgeshire, CB6 — £375,000 • 4 bed • 1 bath • 1113 ft²
4 bedroom detached house for sale in Eastwood Close, Sutton, Ely, Cambridgeshire, CB6 — £425,000 • 4 bed • 2 bath • 1593 ft²
3 bedroom semi-detached house for sale in Windmill Walk, Sutton, ELY, CB6 — £240,000 • 3 bed • 1 bath • 743 ft²
4 bedroom detached house for sale in Sutton Park, Sutton, Ely, Cambridgeshire, CB6 — £625,000 • 4 bed • 2 bath • 1726 ft²


































































































































