**Standout Features:**
- Two double bedrooms
- Secure allocated parking in a gated area
- Bright open-plan lounge/kitchen with large windows
- Located in a modern development with a contemporary design
- Excellent transport links to Bristol and Bath
- Chain-free sale, allowing for a quick move
- Long lease remaining of 190 years
**Concise Property Summary:**
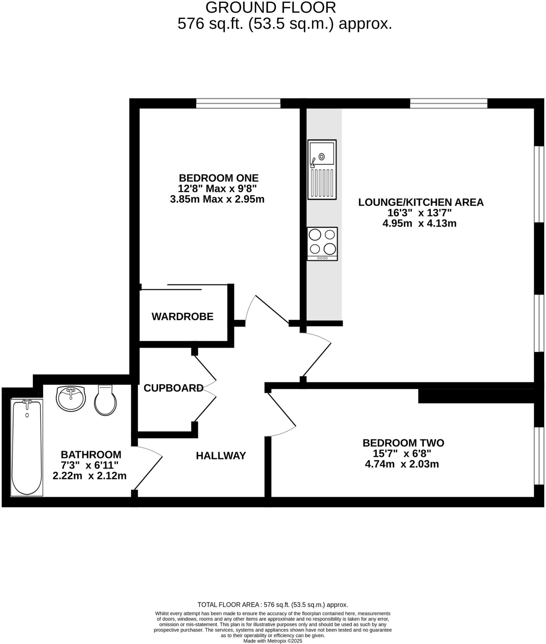
Welcome to this modern two-bedroom apartment in the vibrant Paintworks development, an ideal gem for young professionals or small families. With a total area of 576 square feet, this property features a spacious open-plan lounge and kitchen that floods with natural light through large windows, offering serene views of the adjacent river. The two comfortable double bedrooms come equipped with ample storage, and the stylish bathroom includes a modern suite for added convenience.
Enjoy the peace of mind that comes with secure, designated parking and additional visitor spaces in a gated area. Situated in an attractive urban location, this property offers easy access to Bristol and Bath, perfect for those commuting or looking to soak in the rich cultural offerings of both cities. While the service charge is on the higher side at £4,150 annually, the apartment's exceptional living experience and strategic location outweigh this concern. Don't miss this opportunity—this chain-free property is primed for a quick move and awaits your personal touch.
1 bedroom flat for sale in Paintworks, Arnos Vale, BS4 — £220,000 • 1 bed • 1 bath • 508 ft²
2 bedroom apartment for sale in Paintworks, BRISTOL, BS4 — £315,000 • 2 bed • 2 bath • 681 ft²
2 bedroom flat for sale in Paintworks, Arnos Vale, Bristol, BS4 — £300,000 • 2 bed • 2 bath • 686 ft²
2 bedroom flat for sale in Paintworks, Arnos Vale, BS4 — £300,000 • 2 bed • 2 bath • 761 ft²
1 bedroom flat for sale in Paintworks, Arnos Vale, Bristol, BS4 — £250,000 • 1 bed • 1 bath • 526 ft²
1 bedroom flat for sale in Paintworks, Arnos Vale, Bristol, BS4 — £240,000 • 1 bed • 1 bath • 506 ft²






































